Moat Court, Shaw Close, Ottershaw, Surrey, KT16

£1,395pcm

2 Bedroom Flat for rent in Ottershaw

2
  • Garage In Block
  • Under Floor Heating
  • Top Floor Flat
  • Two Double Bedrooms
  • Communal Gardens
  • Quiet Location
  • Runnymede Council Tax Band: C

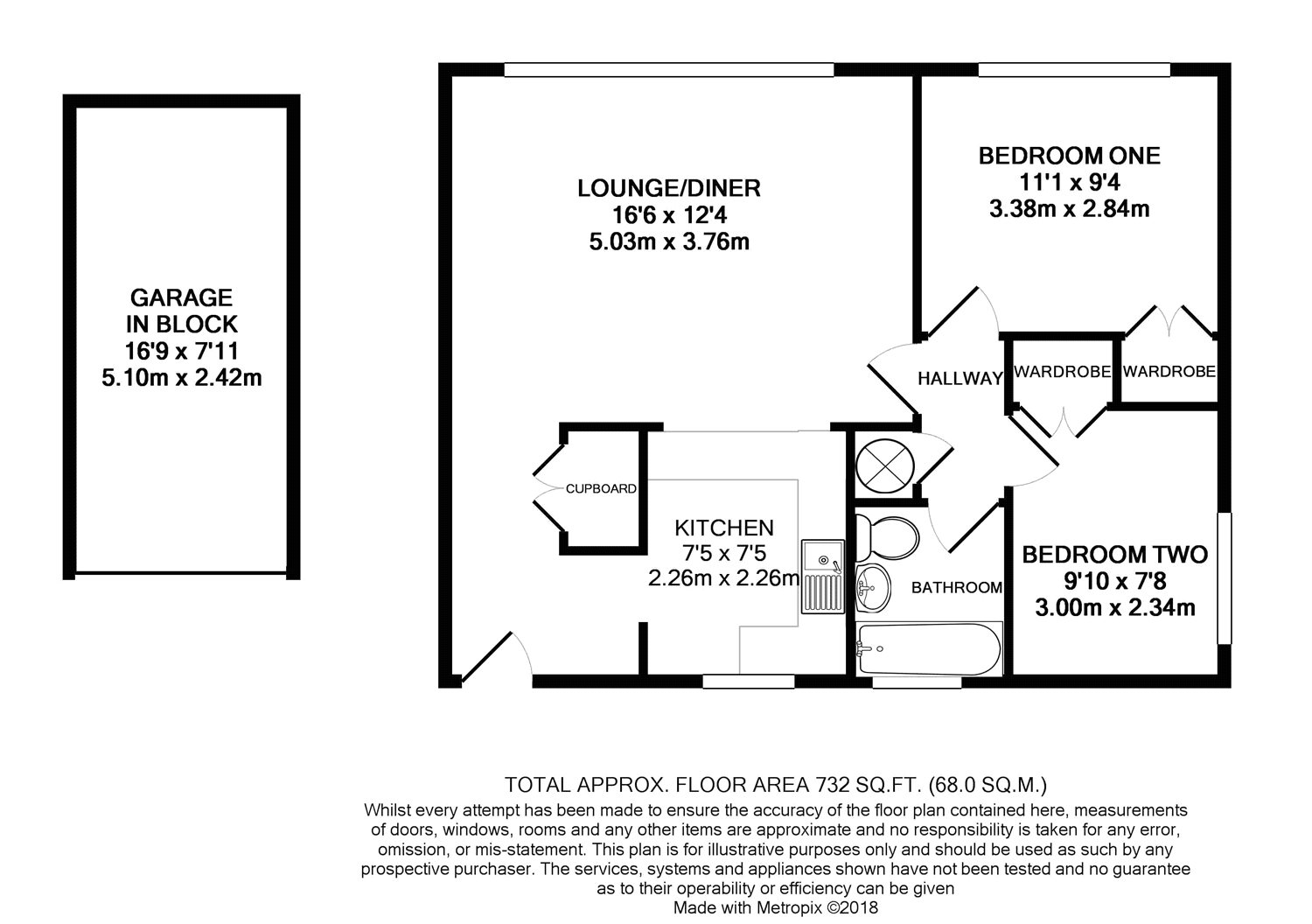
A well presented two bedroom top floor apartment located in a highly desirable development in the heart of the ever popular village of Ottershaw. The property has also had new under floor heating and mega flow system installed. Accommodation comprises; a bright and airy living space enjoying pleasant views over well tended communal gardens, a fitted kitchen with appliances including a dishwasher and washer dryer, three piece bathroom with shower and built in wardrobes to both bedrooms. The communal entrance is accessed via an entry phone system where there is a private lock-up shed and there is also a garage included with the property.

• Garage In Block
• Under Floor Heating
• Top Floor Flat
• Two Double Bedrooms
• Communal Gardens
• Quiet Location
• Runnymede Council Tax Band: C

Property Ref: 57293l_CHL180479_L

Share:

Similar Properties

London Road, Staines-upon-Thames, Surrey, TW18

1 Bedroom Flat | £1,395pcm

LOOKING FOR APARTMENT LIVING? This stylish one bedroom apartment in the Landmark Development. Uncover convenience and ch...

Prestige House, 23-26 High Street, Egham, Surrey, TW20

1 Bedroom Flat | £1,375pcm

Prestige House is a development situated in the heart of Egham town centre. This ia a large one bedroom apartment, Built...

Prestige House, 23-26 High Street, Egham, Surrey, TW20

1 Bedroom Flat | £1,375pcm

Prestige House is a new development situated in the heart of Egham town centre, offering a selection of one and two bedr...

Pyrcroft Road, Chertsey, Surrey, KT16

1 Bedroom Flat | £1,400pcm

**ENQUIRE NOW**MUST SEE** Discover contemporary living at Syward Place, newly built are these modern apartments ranging...

London Road, Staines-upon-Thames, Surrey, TW18

1 Bedroom Flat | £1,425pcm

LOOKING FOR APARTMENT LIVING? This stylish one bedroom apartment in the Landmark Development. Uncover convenience and ch...

London Road, Staines-upon-Thames, Surrey, TW18

1 Bedroom Flat | £1,425pcm

This stylish one bedroom apartment in the Landmark Development. Uncover convenience and charm in this delightful one-bed...

hodders (Chertsey)

Chertsey, Surrey, KT16 8AY

01932 500415

How much is your home worth?

Use our short form to request a valuation of your property.

Request a Valuation
©2025 The Guild of Property Professionals. All rights reserved. Terms and Conditions | Privacy Policy | Cookie Policy | Complaints Policy | Members Login
The Guild of Property Professionals Trading Address: 121 Park Lane, London W1K 7AG. GPEA Limited. Registered in England & Wales.  Company No: 02819824.  Registered Office Address: 2 St. Stephen's Court, St. Stephen's Road, Bournemouth, Dorset, England, BH2 6LA.  VAT Registration No: 576 8795 61
Book a Property Valuation Update Cookies Preferences