Park Close, Oxford

£1,695pcm

2 Bedroom Apartment for rent in Oxford

2 1
  • Master Bedroom
  • Home Office with Storage
  • Open Plan Living Room and Kitchen
  • Bathroom
  • Balcony with Extensive Views
  • Recently Refurbished and Furnished
  • On Street Permit Parking
  • Available October 2023
  • Minimum Tenancy Term 10 Months
  • Council Tax Band D, EPC Rating D

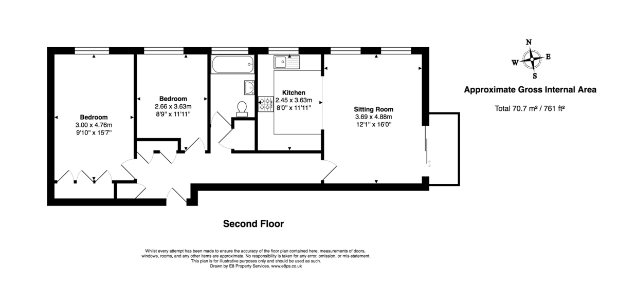
ACCOMMODATION
This bright and airy top floor apartment has been renovated to an excellent standard and benefits from hardwood flooring throughout. The hallway leads to the master bedroom, the second bedroom is furnished as a home office with built in storage. The bathroom has been completed to a modern finish with a shower over the bath. The living space is open plan, with a modern kitchen with Bosch appliances, living area and dining space, leading onto the private balcony with extensive views. The property boasts ample storage throughout and would be suited to a single professional or couple. Available furnished Immediately EPC rating D.

OUTSIDE SPACE
Private balcony, communal gardens. Adjacent to Cutteslowe park with extensive views.

LOCAL INFORMATION
Situated in North Oxford the property is adjacent to the 104 acre Cutteslowe & Sunnymead Park and near to North Oxford Golf Course. The location provides good access to all the day to day shopping facilities of Summertown with slightly further afield the comprehensive amenities of Oxford city centre. The Woodstock and Banbury Roads join directly to the Oxford ring road connecting to the A40 and M40 to London. The Oxford Parkway train station is close by and has regular trains to London Marylebone.

LOCAL AUTHORITY and SERVICES
Oxford City Council - Council tax band D. EPC Rating D. Permit Parking available from the council at the cost of the tenant. Gas Central Heating.

DISCLAIMER
These particulars are a general guide only. They do not form part of any contract. Services, systems and appliances have not been tested. Viewings are offered on a first come first served basis.  

Property Ref: 12083-3_101073014238

Share:

Similar Properties

Eynsham Road, Botley, Oxford, OX2

2 Bedroom Flat | £1,695pcm

BILLS INCLUDED - A modern two bedroom duplex apartment with balcony and parking for one car. Rent is inclusive of water,...

Marston Ferry Court , Oxford

1 Bedroom Apartment | £1,395pcm

A well presented top floor apartment located in Summertown with a private balcony. Available mid-November 2023 for a min...

Delawarr Gardens, 59 Raleigh Park Road, Oxford, OX2

1 Bedroom Flat | £1,300pcm

First floor one bedroom apartment in Botley with allocated parking for 1 car. Furnished. Available from early January 20...

Islip Road, North Oxford, OX2

2 Bedroom Apartment | £1,725pcm

Well presented high quality apartment, wooden flooring, two double bedrooms and secure, gated, allocated parking. EPC ra...

Harpes Road, Oxford

2 Bedroom Apartment | £1,800pcm

Located in a very peaceful and quiet residential area of North Oxford, this two bedroom ground floor apartment is within...

Banbury Road, Oxford, OX2

2 Bedroom Flat | £1,850pcm

A two bedroom ground floor apartment with study and allocated parking. Available Immediately for a minimum of 10 months....

Penny & Sinclair (Summertown)

256 Banbury Road, Mayfield House, Summertown, Oxfordshire, OX2 7DE

01865 318013

How much is your home worth?

Use our short form to request a valuation of your property.

Request a Valuation
©2025 The Guild of Property Professionals. All rights reserved. Terms and Conditions | Privacy Policy | Cookie Policy | Complaints Policy | Members Login
The Guild of Property Professionals Trading Address: 121 Park Lane, London W1K 7AG. GPEA Limited. Registered in England & Wales.  Company No: 02819824.  Registered Office Address: 2 St. Stephen's Court, St. Stephen's Road, Bournemouth, Dorset, England, BH2 6LA.  VAT Registration No: 576 8795 61
Book a Property Valuation Update Cookies Preferences