Hooe, Plymouth

£1,900pcm
Let Agreed
This property listing is now Let Agreed

4 Bedroom Detached House for rent in Plymouth

1 4 2
  • Beautifully-presented detached house
  • Unfurnished accommodation, available now
  • Entrance porch & hallway, downstairs cloakroom/wc
  • Stunning open-plan living room & kitchen & separate utility
  • First floor landing
  • 4 bedrooms
  • Family bathroom & master ensuite shower room
  • Gravel driveway providing plentiful parking
  • West-facing rear garden
  • Double-glazing, central heating & solar panels with battery

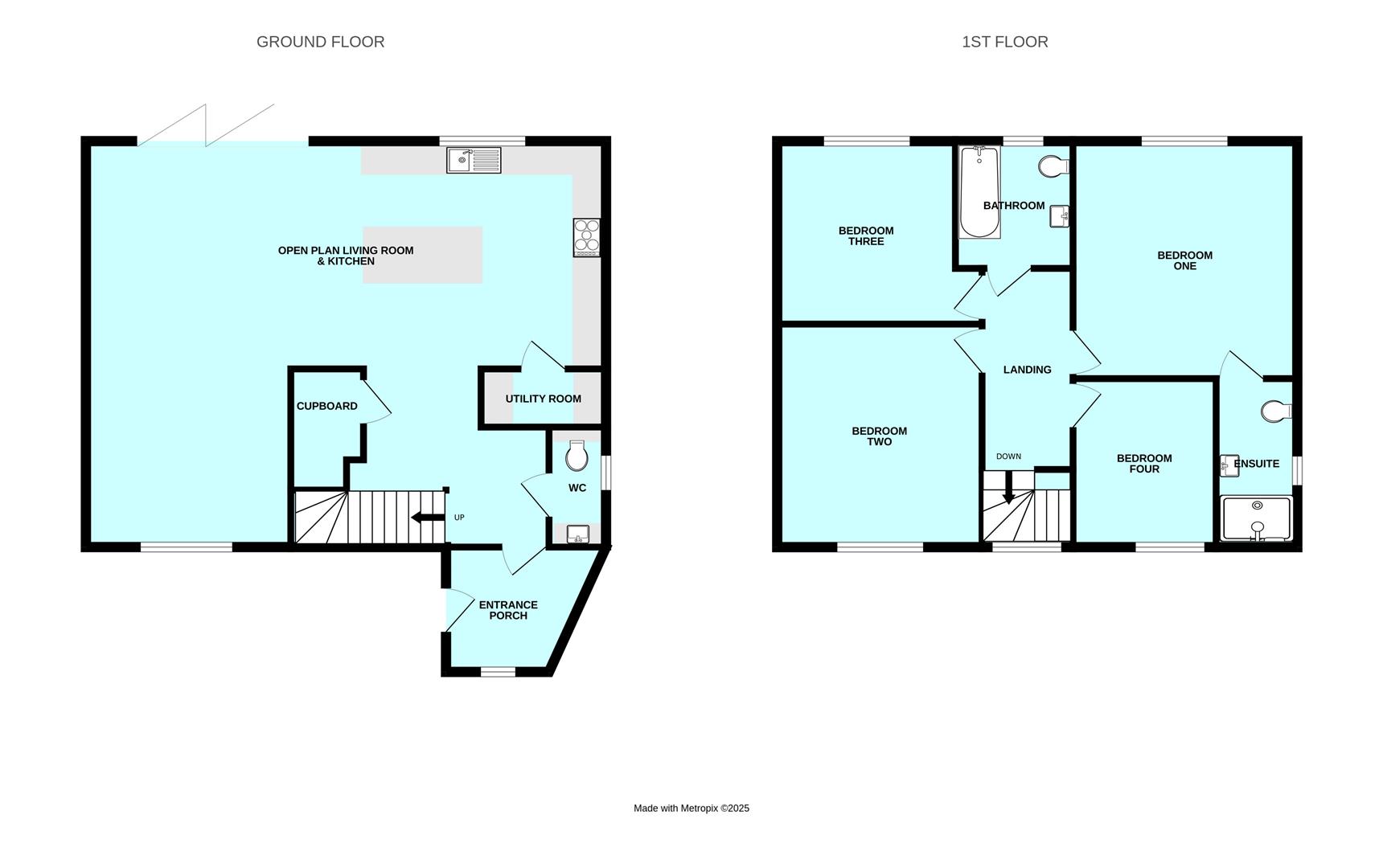
Available now is this superbly-presented executive-style detached house with unfurnished accommodation briefly comprising an entrance porch & inner hallway with downstairs cloakroom/wc, beautiful open-plan living room & kitchen to the rear with bi-folding doors opening onto the garden & a separate utility. On the first floor a landing provides access to 4 bedrooms, family bathroom & ensuite shower room to bedroom one. Gravel driveway providing plentiful off-road parking. Double-glazing, central heating & solar panels with battery storage.

11B Westfield Avenue, Hooe, Pl9 9Pe -

Accommodation - Front door opening into the entrance porch.

Entrance Porch - 2.18m x 2.16m (7'2 x 7'1) - Window to the front elevation. Inset ceiling spotlights. Doorway opening to the hallway.

Hallway - 3.23m x 3.38m (10'7 x 11'1) - Providing access to the first floor via a staircase. Open-plan access through into the living space. Under-stairs cupboard with lighting housing the solar panel inverter together with the battery.

Downstairs Cloakroom/Wc - 2.03m x 0.99m (6'8 x 3'3) - Fitted with a wc and basin with a cabinet beneath. Towel rail/radiator. Partly-tiled walls. Obscured window to the side elevation.

Open-Plan Living Room & Kitchen - 9.09m x 7.14m (29'10 x 23'5) - A superb open-plan room with ample space for seating and dining. The room is dual aspect with a windows to the front and rear elevations together with bi-folding doors overlooking the westerly-facing garden. Modern kitchen cabinets with matching island, matching work surfaces and splash-backs. Inset one-&-a-half bowl single drainer sink unit. Built-in double oven and grill. Inset hob with a glass splash-back and a cooker hood above. Integral fridge, freezer, and dishwasher. Bin storage. Inset ceiling spotlights.

Utility Room - 2.08m x 0.79m (6'10 x 2'7) - Space for washing machine. Wall-mounted boiler. 2 work surfaces. Inset ceiling spotlights.

First Floor Landing - 3.45m x 1.63m (11'4 x 5'4) - Providing access to the first floor accommodation. Loft hatch with fold-down wooden ladder. Window to the front elevation.

Bedroom One - 4.17m x 3.66m (13'8 x 12') - A generous double bedroom with a window to the rear elevation. Doorway opening into the ensuite shower room.

Ensuite Shower Room - 2.84m x 1.37m (9'4 x 4'6) - Comprising an enclosed double shower, wc and basin with storage beneath. Mirrored cabinet with lighting. Towel rail/radiator. Tiled floor. Fully-tiled walls. Inset ceiling spotlights. Obscured window to the side elevation.

Bedroom Two - 3.78m x 3.61m (12'5 x 11'10) - Window to the front elevation.

Bedroom Three - 3.23m x 3.12m (10'7 x 10'3) - Window to the rear elevation.

Bedroom Four - 2.90m x 2.16m (9'6 x 7'1) - Window to the front elevation.

Family Bathroom - 2.21m x 2.03m (7'3 x 6'8) - Comprising a bath with a shower system and a glass shower screen, large basin with storage beneath and wc. Wall-mounted towel rail/radiator. Tiled floor. Fully-tiled walls. Inset ceiling spotlights. Obscured window to the rear elevation.

Outside - A gravel driveway/parking area to the front provides ample off-road parking. To the rear, the garden is laid to lawn together with a patio area.

Council Tax - Plymouth City Council
Council tax band B

Rental Holding Deposit - The agent may require a holding deposit equivalent to a week's rent in order to secure the property. This amount would then be deducted from the 1st month's rent.

Property Ref: 34261540

Share:

Similar Properties

Mannamead, Plymouth

4 Bedroom Terraced House | £1,900pcm

A beautiful period terraced property offering lovely sized accommodation with a great deal of charm and character. The a...

Sherford, Plymouth

4 Bedroom House | £1,850pcm

Available from May 2025 is this stunning modern property located on the edge of Sherford. The accommodation is arranged...

Newton Ferrers, Plymouth

2 Bedroom House | £1,850pcm

Available now is this wonderful detached property located in a rural location within the South Hams. The accommodation t...

Heybrook Bay, Plymouth

3 Bedroom House | £2,100pcm

Stunning detached residence with panoramic views across the local countryside toward Plymouth Sound & the Rame peninsula...

Sherford, Plymouth

5 Bedroom Detached House | £2,100pcm

Substantial detached double-fronted 3-storey house occupying a prominent corner position with south-southwesterly facing...

Elburton, Plymouth

4 Bedroom Barn Conversion | £2,200pcm

A beautifully converted barn on the outskirts of Elburton set within generous grounds with countryside views. Exceptiona...

Julian Marks Estate Agents (Plymstock)

2 The Broadway, Plymstock, Plymstock, Devon, PL9 7AW

01752 401128

How much is your home worth?

Use our short form to request a valuation of your property.

Request a Valuation
©2026 The Guild of Property Professionals. All rights reserved. Terms and Conditions | Privacy Policy | Cookie Policy | Complaints Policy | Members Login
The Guild of Property Professionals Trading Address: 121 Park Lane, London W1K 7AG. GPEA Limited. Registered in England & Wales.  Company No: 02819824.  Registered Office Address: 2 St. Stephen's Court, St. Stephen's Road, Bournemouth, Dorset, England, BH2 6LA.  VAT Registration No: 576 8795 61
Book a Property Valuation Update Cookies Preferences