Elburton, Plymouth

£2,200pcm
Let Agreed
This property listing is now Let Agreed

4 Bedroom Barn Conversion for rent in Plymouth

1 4 3
  • Grade II listed converted barn
  • Unfurnished accommodation
  • 53' open plan living room with vaulted ceiling
  • Office/optional fourth bedroom
  • Available April 2024
  • 3 spacious double bedrooms
  • Master ensuite/principal bathroom/plus additional shower room
  • Double garage
  • Driveway providing ample parking
  • Beautiful gardens offering countryside views, privacy & seclusion

A beautifully converted barn on the outskirts of Elburton set within generous grounds with countryside views. Exceptional accommodation comprising plentiful reception space, 3/4 bedrooms, bathroom, shower room & ensuite shower room. Impressive sized garage & ample parking.

Honey Barn, Haye Road, Pl9 8At -

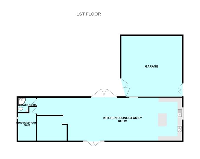
Accommodation - This superbly converted Grade 11 listed threshing barn has accommodation of exceptional proportions and is located on the outskirts of Elburton. Many characterful features have been retained including restored and exposed beams throughout the principal room - being some 53' in length and nearly 20' high.

Reception Hall - 5.66 x 3.05 (18'6" x 10'0") - Slate tiling at the entrance area. Partly-glazed hard wood front door with matching panel to side. The main floor area is laid to laminate. Exposed post. High-rise ceiling with wooden staircase ascending to the upper floor. An under-stairs storage cupboard has a further built-in cupboard which houses the Vaillant combination boiler.

Open-Plan Living Room - 16.03 x 5.21 (52'7" x 17'1") - A superb feature room with vaulted ceiling throughout incorporating restored original ceiling beams. This area includes kitchen, living and dining space.

Kitchen Area - Fitted with a range of base and wall-mounted storage units with solid oak fascias, concealed work top lighting, fitted island with matching work tops and units. Ceramic one-&-a-half-bowl single-drainer sink unit. Built-in Neff ovens. Built-in dishwasher. 5-burner gas hob. Stainless steel extractor. Matching tiled splash-backs. Built-in wine racks. Glazed display cabinets. 2 windows on the gable end of the building. Open plan access leads through to the dining area.

Dining Area - Ample space for table and chairs which in turn provides open plan access through into the sitting area. There are double French doors which lead out to an external balcony which has original stone steps leading to the ground floor. Wall-mounted contemporary fire.

Study/Optional Fourth Bedroom - 3.28 x 2.39 (10'9" x 7'10") - Exposed beams. A folding staircase to the mezzanine.

Mezzanine - 5.16 x 2.44 (16'11" x 8'0") - A timber gallery overlooks the open plan living space. Arrow slit window to the gable end. Exposed trusses.

Shower Room/Wc - 2.39 x 1.75 max dimensions (7'10" x 5'8" max dimen - Recently re-fitted with an attractive white suite including a glazed shower cubicle with a wall-mounted shower system, wc and wash handbasin. Travertine tiling to walls and floor. Heated towel rail.

Passageway - Approximately 46' in length, leading from the reception hall and providing access to the bedrooms. Inset lighting.

Bedroom One - 4.57 x 3.15 (14'11" x 10'4") - Exposed beams. Partly-glazed door which provides access to outside. Doorways provide access to a walk-in wardrobe which is also beamed and has internal lighting. From the bedroom a further door leads to the ensuite shower room.

Ensuite Shower Room - 2.21 x 1.73 (7'3" x 5'8") - Recently re fitted contempory suite which includes a walk in oversized shower with rainfall shower. Wash basin with storage beneath. Recessed vanity mirror with light. Inset spot lights.

Bedroom Two - 4.14 x 4.90 (into alcove) (13'6" x 16'0" (into alc - A spacious double bedroom with beamed ceiling and window to the front elevation.

Bedroom Three - 3.63 x 3.61 (11'10" x 11'10") - A spacious double bedroom with window to the front elevation. Beamed ceiling.

Bathroom - 3.40 x 1.96 (11'1" x 6'5") - A recently re fitted beautiful contemporay suite which includes twin sinks with vanity mirrors. Free standing bath. Toilet. Heated towel rail. Built in storage cupboard. Inset spotlights.

Garage - 7.14 x 7.09 (23'5" x 23'3") - A superb open room which is attached to the main building and is built of stone beneath a vaulted ceiling. There are wide doorways to the front and rear elevations giving through access to the garden. There is also plumbing for a washing machine.

Outside - The barn is approached via a driveway which provides off-road parking for a number of vehicles and in turn accesses the main front entrance and garage. To the rear of the barn lie the generous gardens which are mainly laid to lawn and offer a high degree of privacy and seclusion. There are also areas laid to paving together with attractive stone walling. The garden enjoys a backdrop of mature trees and open countryside views.

Property Ref: 33027305

Share:

Similar Properties

Heybrook Bay, Plymouth

3 Bedroom House | £2,100pcm

Stunning detached residence with panoramic views across the local countryside toward Plymouth Sound & the Rame peninsula...

Sherford, Plymouth

5 Bedroom Detached House | £2,100pcm

Substantial detached double-fronted 3-storey house occupying a prominent corner position with south-southwesterly facing...

Mannamead, Plymouth

4 Bedroom Terraced House | £1,900pcm

A beautiful period terraced property offering lovely sized accommodation with a great deal of charm and character. The a...

Spriddlestone, Plymouth

3 Bedroom House | £2,300pcm

Available now is this stunning detached residence located in a wonderful rural location, convenient to Plymouth as well...

Wembury, Plymouth

4 Bedroom House | £2,500pcm

Stunning individually-designed residence located in the South Hams offering spacious accommodation with 4 double bedroom...

Spring Road, Wembury Point, Plymouth

3 Bedroom Detached House | £2,500pcm

An exceptionally rare opportunity to rent this incredible house in a unique coastal position enjoying panoramic sea view...

Julian Marks Estate Agents (Plymstock)

2 The Broadway, Plymstock, Plymstock, Devon, PL9 7AW

01752 401128

How much is your home worth?

Use our short form to request a valuation of your property.

Request a Valuation
©2026 The Guild of Property Professionals. All rights reserved. Terms and Conditions | Privacy Policy | Cookie Policy | Complaints Policy | Members Login
The Guild of Property Professionals Trading Address: 121 Park Lane, London W1K 7AG. GPEA Limited. Registered in England & Wales.  Company No: 02819824.  Registered Office Address: 2 St. Stephen's Court, St. Stephen's Road, Bournemouth, Dorset, England, BH2 6LA.  VAT Registration No: 576 8795 61
Book a Property Valuation Update Cookies Preferences