Plymstock, Plymouth

£1,250pcm
Let Agreed
This property listing is now Let Agreed

3 Bedroom End of Terrace House for rent in Plymouth

1 3 1
  • End-terraced house
  • Superbly-presented throughout
  • Available early December 2025
  • Open-plan lounge/dining room
  • Fitted kitchen
  • Unfurnished accommodation
  • 3 bedrooms & bathroom
  • Garage with remote door & off-road parking
  • Southerly-facing rear garden
  • Long term rental

Superbly-presented end-terraced house enjoying a south-facing rear garden, garage & parking. The accommodation briefly comprises an entrance porch and hallway, open-plan full-width lounge/dining room, fitted kitchen, 3 bedrooms & bathroom. Double-glazing & central heating throughout. Unfurnished accommodation. Available from early December 2025.

Lower Park Drive, Plymstock, Pl9 9Da -

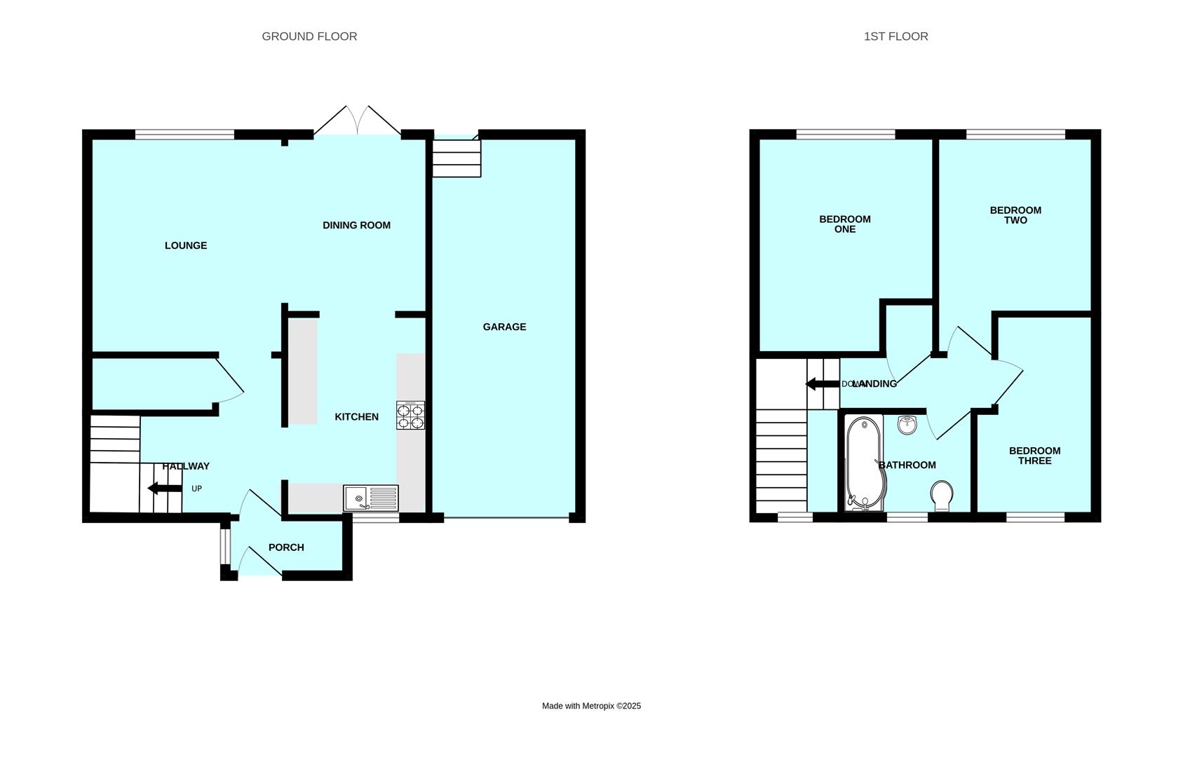
Accommodation - Front door opening into the entrance porch.

Entrance Porch - Window to the side elevation. Tiled floor. Doorway opening into the entrance hall.

Entrance Hall - 3.38m x 2.72m incl stairs (11'1 x 8'11 incl stairs - Providing access to the ground floor accommodation. Staircase rising to the first floor. Open-plan storage area beneath the stairs. Generous walk-in storage cupboard with coat hooks and shelf, also housing the consumer unit.

Lounge/Dining Room - 5.94m x 3.78m max depth (19'6 x 12'5 max depth) - An open-plan room running the full-width of the property. Window and French doors to the rear elevation overlooking the garden.

Kitchen - 3.45m x 2.44m (11'4 x 8') - Range of modern base and wall-mounted cabinets with matching work surfaces and tiled splash-backs. One-&-a-half bowl single drainer sink unit. Built-in double oven and grill. Inset hob. Free-standing fridge-freezer. Space for washing machine. Integral dishwasher. Window to the front elevation.

First Floor Landing - Providing access to the first floor accommodation. Cupboard housing the boiler. Loft hatch.

Bedroom One - 3.81m x 3.07m (12'6 x 10'1) - Window to the rear elevation.

Bedroom Two - 3.05m x 2.77m (10' x 9'1) - Window to the rear elevation.

Bedroom Three - 3.45m x 2.06m (11'4 x 6'9) - Window to the front elevation.

Bathroom - 2.34m x 1.68m (7'8 x 5'6) - Comprising a bath with a shower system over and a curved glass screen, wc and pedestal basin. Chrome towel rail/radiator. Wall-mounted mirror with integral lighting. Fully-tiled walls. Tiled floor. Obscured window to the front elevation.

Garage - 6.71m x 2.46m (22' x 8'1) - Remote door to the front elevation. LED panel lighting. Power. Rear access door.

Outside - There is a paved terrace outside the front door together with an off-road parking area. A driveway provides further off-road parking and access to the garage. The rear garden, which enjoys a southerly aspect, is laid to lawn and patio. There is a rear access gate.

Council Tax - Plymouth City Council
Council tax band B

Rental Holding Deposit - The agent may require a holding deposit equivalent to a week's rent in order to secure the property. This amount would then be deducted from the 1st month's rent.

Property Ref: 34309584

Share:

Similar Properties

Stoke, Plymouth

3 Bedroom Penthouse | £1,250pcm

Beautifully-appointed furnished duplex penthouse apartment with 2 secure parking spaces & wonderful views, briefly compr...

Plympton, Plymouth

3 Bedroom Semi-Detached House | £1,250pcm

A re furbished semi detached house available now. The accommodation includes three bedrooms with modern bathroom, lounge...

Plympton, Plymouth

3 Bedroom Semi-Detached House | £1,250pcm

Semi-detached family home available now with accommodation comprising 3 bedrooms, lounge/dining room, fitted kitchen & b...

Plymstock, Plymouth

3 Bedroom Semi-Detached House | £1,300pcm

Available now is this lovely modern 3-bedroom semi-detached property which is well-presented throughout. The accommodati...

Plympton, Plymouth

3 Bedroom Semi-Detached House | £1,300pcm

Available from early November 2023 is this delightful extended semi-detached family property. It is unfurnished with acc...

Sherford, Plymouth

3 Bedroom Semi-Detached House | £1,300pcm

Available from early July is this delightful & beautifully-presented semi-detached family home. The accommodation briefl...

Julian Marks Estate Agents (Plymstock)

2 The Broadway, Plymstock, Plymstock, Devon, PL9 7AW

01752 401128

How much is your home worth?

Use our short form to request a valuation of your property.

Request a Valuation
©2026 The Guild of Property Professionals. All rights reserved. Terms and Conditions | Privacy Policy | Cookie Policy | Complaints Policy | Members Login
The Guild of Property Professionals Trading Address: 121 Park Lane, London W1K 7AG. GPEA Limited. Registered in England & Wales.  Company No: 02819824.  Registered Office Address: 2 St. Stephen's Court, St. Stephen's Road, Bournemouth, Dorset, England, BH2 6LA.  VAT Registration No: 576 8795 61
Book a Property Valuation Update Cookies Preferences