Sherford, Plymouth

£1,500pcm
Let Agreed
This property listing is now Let Agreed

3 Bedroom Semi-Detached House for rent in Plymouth

1 3 2
  • Modern 3-storey townhouse
  • Available now
  • Unfurnished accommodation
  • Downstairs cloakroom/wc
  • Good-sized kitchen/dining room
  • First floor lounge
  • 3 bedrooms
  • Family bathroom & master ensuite shower room
  • Low maintenance garden
  • Off-road parking & garage

Available on a long-term rental is this lovely 3-storey townhouse located in Sherford. The accommodation briefly comprises entrance hall & downstairs cloakroom/wc, good-sized ground floor kitchen/dining room, first floor lounge, 3 bedrooms, family bathroom & master ensuite shower room. Low maintenance terraced rear garden. Off-road parking space & garage in a nearby block.

Capricorn Way, Sherford, Pl9 8Fu -

Accommodation - Access to the property is gained via the part-glazed entrance door leading into the entrance hall.

Entrance Hall - Built-in storage cupboard housing the electric fuse box and meter. Porcelain tiled floor. Turning staircase rising to the first floor accommodation. Doors providing access to the ground floor accommodation.

Downstairs Cloakroom/Wc - 2.07 x 1.42 (6'9" x 4'7") - Low level toilet and pedestal wash basin. Double-glazed sash window to the front elevation.

Kitchen/Dining Room - 6.73 x 4.84 at widest points incl kitchen units (2 - Within the kitchen area there is an island unit which has storage and a breakfast bar. Range of rolled-edge work surfaces. Inset stainless-steel one-&-a-half bowl single drainer sink unit with mixer tap. Built-in washing machine. Built-in dishwasher. Built-in electric oven. Built-in gas hob with an extractor hood above. Integrated fridge-freezer. 2 under-stairs storage cupboards. Porcelain tiled floor. Double-glazed window and double doors to the rear elevation opening onto the rear garden.

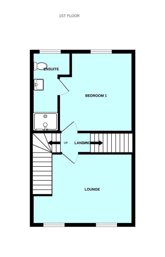
First Floor Landing - Stairs rising to the second floor. Doors providing access to the first floor accommodation.

Lounge - 3.38 x 3.77 excl the recess (11'1" x 12'4" excl th - 2 double-glazed sash windows to the front elevation.

Bedroom One - 3.54 x 3.70 (11'7" x 12'1") - Double-glazed window to the rear elevation. Door leading to the ensuite shower room.

Ensuite Shower Room - 3.01 x 1.80 (9'10" x 5'10") - Comprising a shower cubicle with tiled area surround, shower unit, spray attachment and sliding shower screen door, pedestal wash basin and low level toilet. Double-glazed window to the rear elevation.

Second Floor Landing - Loft hatch. Please note that there is no loft access. Built-in cupboard housing the gas boiler.

Bedroom Two - 4.84 x 2.08 taken at a height of 1.5 (15'10" x 6'9 - Sloping ceiling to the front elevation. Double-glazed window to the front elevation.

Bedroom Three - 4.84 x 1.42 taken at a height of 1.5 (15'10" x 4'7 - Sloping ceiling to the rear elevation. Double-glazed window to the rear elevation.

Bathroom - 2.02 x 1.71 (6'7" x 5'7") - Comprising a panel bath with twin hand grips, mixer tap, tiled area surround and a shower unit with spray attachment, pedestal wash basin and low level toilet.

Outside - At the rear there is a fenced enclosed garden with paved patio area adjacent to the rear of the property. A gate leads to the side of the property. Steps lead up to an artificial grassed area. Further gate leading to the parking space. Across from the parking space is the single garage.

Council Tax - South Hams District Council
Council tax band D

Rental Holding Deposit - The agent may require a holding deposit equivalent to a week's rent in order to secure the property. This amount would then be deducted from the 1st month's rent.

Property Ref: 11002660_32553893

Share:

Similar Properties

Elburton, Plymouth

4 Bedroom Detached House | £1,500pcm

Detached family home with unfurnished accommodation - available November 2024 & briefly comprising 2 receptions, kitchen...

Manadon Park, Plymouth

4 Bedroom House | £1,500pcm

Available from August 2022 is this most impressive character residence. It occupies a private setting in Manadon & has s...

Elburton, Plymouth

4 Bedroom Detached House | £1,500pcm

Available now is beautifully-presented & high quality detached 4 bedroom house. It enjoys good-sized accommodation inclu...

Palmerston Heights, Plymouth

4 Bedroom Semi-Detached House | £1,600pcm

Available now on a long-term basis, is this modern contemporary-styled semi-detached family property enjoying accommodat...

Saltram Meadow, Plymouth

3 Bedroom Detached House | £1,600pcm

Available from July 2024 is this lovely detached modern property which benefits from good-sized accommodation. Briefly,...

Sherford, Plymouth

4 Bedroom Semi-Detached House | £1,600pcm

Available from end of October/early November 2025 is this 3-storey family property offering flexible accommodation. On t...

Julian Marks Estate Agents (Plymstock)

2 The Broadway, Plymstock, Plymstock, Devon, PL9 7AW

01752 401128

How much is your home worth?

Use our short form to request a valuation of your property.

Request a Valuation
©2025 The Guild of Property Professionals. All rights reserved. Terms and Conditions | Privacy Policy | Cookie Policy | Complaints Policy | Members Login
The Guild of Property Professionals Trading Address: 121 Park Lane, London W1K 7AG. GPEA Limited. Registered in England & Wales.  Company No: 02819824.  Registered Office Address: 2 St. Stephen's Court, St. Stephen's Road, Bournemouth, Dorset, England, BH2 6LA.  VAT Registration No: 576 8795 61
Book a Property Valuation Update Cookies Preferences