Woolwell, Plymouth

£1,600pcm
Let Agreed
This property listing is now Let Agreed

4 Bedroom Detached House for rent in Plymouth

2 4 2
  • Detached family property
  • Available from January 2026
  • Unfurnished accommodation, available on a long-term basis
  • Lounge & conservatory
  • Modern fitted kitchen/diner & utility room
  • 4 bedrooms
  • Family bathroom & master ensuite
  • Office/bedroom five with ensuite toilet
  • Parking for 2 cars
  • Enclosed rear garden

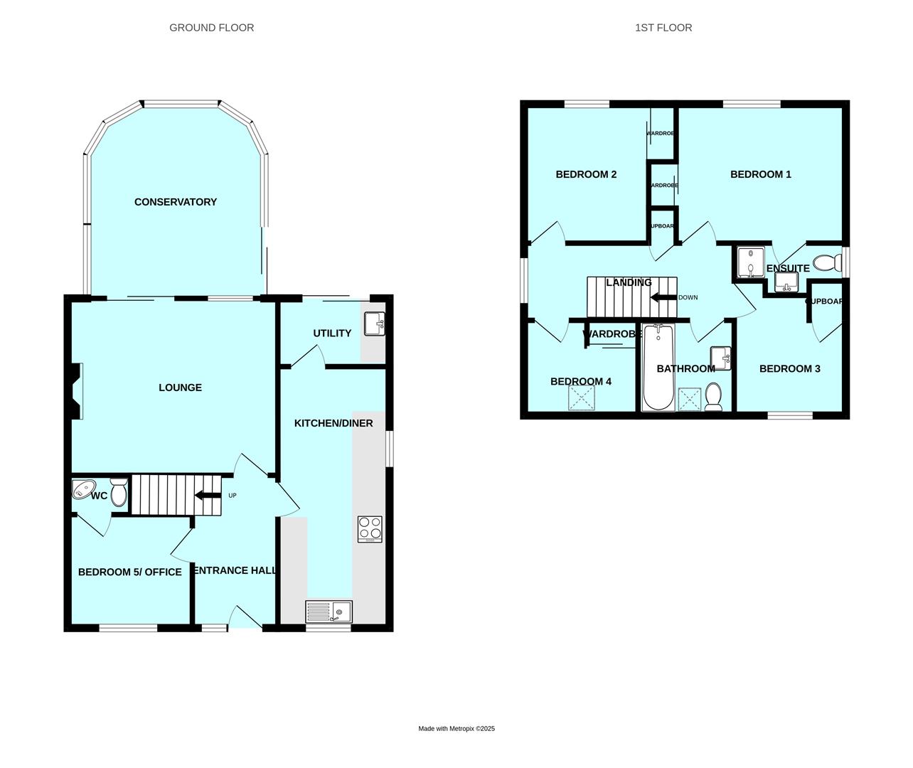
Available from January 2026 is this lovely detached family home located in the Woolwell district of Plymouth. The accommodation briefly comprises an entrance hall, office/bedroom five with an ensuite wc, good-sized lounge leading to a conservatory, modern fitted kitchen/dining room with built-in appliances and a utility on the ground floor. On the first floor are 4 bedrooms, family bathroom and a new master ensuite. Outside there is a moderate-sized garden to the rear & off-road parking to the front.

Campion View, Woolwell, Pl6 7Ta -

Accommodation - Access to the property is gained via a covered entrance with a uPVC part double-glazed entrance door leading into the entrance hall.

Entrance Hall - 3.35 x 1.82 (10'11" x 5'11") - Providing access to the ground floor accommodation. Stairs rising to the first floor.

Office/Bedroom Five - 3.70 x 2.34 (12'1" x 7'8") - Double-glazed window to the front elevation. Doorway leading to the ensuite wc.

Ensuite Wc - 1.88 x 1.09 (6'2" x 3'6") - Fitted with a low level toilet and a corner sink unit. Window to the side elevation.

Lounge - 4.69 x 3.95 (15'4" x 12'11") - Inset 'Living Flame' gas fire. Double-glazed window to the rear elevation. Sliding doors leading to the conservatory.

Conservatory - uPVC double-glazed windows and doors providing a pleasant outlook and access onto the rear garden.

Kitchen/Diner - 5.83 x 2.49 (19'1" x 8'2") - Range of matching white high gloss eye-level and base units with work surfaces. Inset one-&-a-half bowl sink unit. Built-in 4-ring electric hob. Under-counter fridge. Under-counter freezer. Integrated dishwasher. Cupboard concealing the gas boiler. Double-glazed windows to the front and side elevations. Doorway leading to the utility.

Utility - 1.52 x 2.49 (4'11" x 8'2") - Work surface with sink unit. Space and plumbing for washing machine. Double-glazed patio doors leading out to the rear.

First Floor Landing - Providing access to the first floor accommodation. Built-in storage cupboard. Double-glazed window to the side elevation.

Bedroom One - 3.76 x 3.08 (12'4" x 10'1") - Double-glazed window. Fitted wardrobe. Doorway leading to the ensuite shower room.

Ensuite Shower Room - 2.77 x 1.68 at widest points (9'1" x 5'6" at wides - A newly-fitted ensuite comprising a corner shower cubicle, sink unit and a low level toilet. Vertical towel rail/radiator. Obscured double-glazed window to the side elevation.

Bedroom Two - 2.86 x 3.08 (9'4" x 10'1") - Double-glazed window to the rear elevation. Fitted wardrobe.

Bedroom Three - 2.72 x 2.51 at widest points (8'11" x 8'2" at wide - Double-glazed window to the front elevation. Built-in storage.

Bedroom Four - 2.33 x 2.54 at a height of 1.5m (7'7" x 8'3" at a - Sloping ceiling to the front elevation. Fitted wardrobe.

Bathroom - 2.29 x 1.82 at a height of 1.5m (7'6" x 5'11" at a - Sloping ceiling with a Velux-style window to the front elevation. Comprising a panel, low level toilet and a sink unit.

Outside - To the front of the property there is off-road parking for 2 vehicles together with a lawned and planted garden with mature shrubs and bushes. A path leads down the side of the property through to the rear garden, which is enclosed and mainly laid to lawn. There is a patio area and space for a timber shed.

Council Tax - South Hams District Council
Council tax band D

Rental Holding Deposit - The agent may require a holding deposit equivalent to a week's rent in order to secure the property. This amount would then be deducted from the 1st month's rent.

Property Ref: 34313397

Share:

Similar Properties

Palmerston Heights, Plymouth

4 Bedroom Semi-Detached House | £1,600pcm

Available now on a long-term basis, is this modern contemporary-styled semi-detached family property enjoying accommodat...

Saltram Meadow, Plymouth

3 Bedroom Detached House | £1,600pcm

Available from July 2024 is this lovely detached modern property which benefits from good-sized accommodation. Briefly,...

Sherford, Plymouth

4 Bedroom Semi-Detached House | £1,600pcm

Available from end of October/early November 2025 is this 3-storey family property offering flexible accommodation. On t...

Derriford, Plymouth

4 Bedroom End of Terrace House | £1,650pcm

A fantastic three storey town house which is available from April 2024. It has unfurnished accommodation over three leve...

Sherford, Plymouth

4 Bedroom Terraced House | £1,650pcm

Lovely modern terraced townhouse offering flexible accommodation. It is arranged with 3 or 4 bedrooms & 1 or 2 reception...

Staddiscombe, Plymouth

4 Bedroom Detached House | £1,695pcm

Impressive, detached family home available from June 2023. The accommodation briefly comprises lounge, kitchen/breakfast...

Julian Marks Estate Agents (Plymstock)

2 The Broadway, Plymstock, Plymstock, Devon, PL9 7AW

01752 401128

How much is your home worth?

Use our short form to request a valuation of your property.

Request a Valuation
©2026 The Guild of Property Professionals. All rights reserved. Terms and Conditions | Privacy Policy | Cookie Policy | Complaints Policy | Members Login
The Guild of Property Professionals Trading Address: 121 Park Lane, London W1K 7AG. GPEA Limited. Registered in England & Wales.  Company No: 02819824.  Registered Office Address: 2 St. Stephen's Court, St. Stephen's Road, Bournemouth, Dorset, England, BH2 6LA.  VAT Registration No: 576 8795 61
Book a Property Valuation Update Cookies Preferences