Southsea, Hampshire

£1,200pcm

2 Bedroom Terraced House for rent in Portsmouth

2 1
  • A Mid-Terrace House
  • Two Double Bedrooms
  • Two Reception Rooms
  • Downstairs Bathroom
  • Courtyard Style Garden
  • Close to Amenities, Motorway & Rail Links
  • Available November 2025 / Unfurnished
  • Viewing Highly Recommended
  • Council Tax Band B - Portsmouth City Council

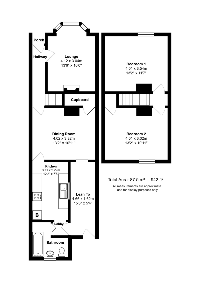
PROPERTY SUMMARY A single bay mid-terrace house with forecourt to the front and paved courtyard garden to the rear. The house offers 942 sq ft of living space and comprises: hallway, lounge with bay window, dining room leading to kitchen and bathroom on the ground floor, on the first floor are two double bedrooms. The house is ideally located in the centre of Southsea with access to commutable road links, close to Fratton Railway station, shops, amenities and schools. Available in November 2025, viewing recommended.  

ENTRANCE HALL Front door opening to hallway, door leading to front reception room, stairs to bedrooms, door to the dining room.  

RECEPTION ROOM ONE Bay window to front elevation, fireplace with mantel over, radiator. 

DINING ROOM Window to rear elevation, under-stairs storage, radiator, opening to kitchen. 

KITCHEN Range of base and wall units, stainless steel sink with drainer to one side, free standing cooker, washing machine, counter top dishwasher, door to bathroom, wall mounted boiler supplying domestic hot water and central heating (not tested), door to lean-to storage area, window to side aspect overlooking lean-to. 

BATHROOM White suite comprising bath with shower mixer tap, pedestal wash basin, wc, radiator, window to rear. 

BEDROOM ONE Double room with built in storage cupboard and window to front elevation, radiator. 

BEDROOM TWO Double room with built in storage cupboard and window to rear elevation, radiator. 

COSTS If an application for a tenancy is successful, below is an example of the amounts required are shown below:

Holding Fee (1 weeks rent): £ 276.92

One Month's rent in advance: £ 1,200.00

Deposit (equivalent to 5 weeks rent): £1,384.60

(Please note the above move in figures are for guidance purposes only).

TENANCY TERMS AND CONDITIONS – TENANTS Revised 30th October 2025

Approved Tenant Charges

The only payments you can expect in connection with a tenancy are:

a) the rent

b) a refundable tenancy deposit capped at no more than five weeks' rent. This will be held in a Deposit Scheme as security for the performance of all obligations in connection with the tenancy for example in the case of any damage at the end of the tenancy or a charge to an independent company providing a deposit alternative service, if offered.

c) A refundable holding deposit (to reserve a property) capped at no more than one week's rent. Example - equivalent to One Weeks Rent – i.e. £1,000.00 p.c.m rent equates to £230.76 holding deposit).

We can retain in this holding deposit if you:

• Provide false or misleading information which reasonably affects our decision to let the property to you (i.e. calls into question your suitability as a tenant, this can include your behaviour in providing the false or misleading information).
• Fail a right to rent check
• Withdraw from the proposed agreement (decide not to let) or
• Fail to take reasonable steps to enter an agreement (i.e. responding to reasonable requests for information required to progress the agreement) when the landlord and / or agent has done so.

Where we wish to retain the holding deposit, we will set out in writing the reason for this within 7 days of deciding not to enter the agreement or the 'deadline for agreement'. The 'deadline for agreement' for both parties is usually 15 days after a holding deposit has been received by a landlord or agent (unless otherwise agreed in writing).

d) Payments to change the tenancy when requested by the tenant (e.g. a change of sharer or permission to keep pets at the property) capped at £60.00 inc. VAT.
e) Payments associated with early termination of the tenancy, when requested by the tenant and agreed by the landlord. This would not exceed the financial loss that a landlord will suffer in permitting , or reasonable cost that have been incurred by the agent in arranging for, the tenant t leave early.
f) Payments in respects of utilities, communication services, TV licence and council tax
g) A default fee for late payment of rent and replacement of lost key/security device. 

Property Ref: 57518_100157005159

Share:

Similar Properties

Southsea, Hampshire

2 Bedroom Apartment | £1,150pcm

A ground floor apartment within the heart of Southsea, nearby are local amenities including the cosmopolitan Albert Road...

Havant, Hampshire

2 Bedroom Apartment | £1,100pcm

A second floor, two double bedroom purpose built apartment located close to the centre of Havant with easy access to loc...

Cosham, Hampshire

2 Bedroom Apartment | £1,100pcm

Town & Country Southern Lettings Limited have pleasure in offering for rent a purpose built first floor apartment which...

Stamshaw, Hampshire

3 Bedroom Terraced House | £1,350pcm

A mid-terrace three bedroom family home which is located close to amenities, bus routes, recreation ground, catchment fo...

Horndean, Hampshire

3 Bedroom Semi-Detached House | £1,395pcm

A well presented, three bedroom semi-detached family home which is situated in a popular residential area yet within eas...

Drayton, Hampshire

2 Bedroom End of Terrace House | £1,450pcm

An updated, two bedroom end of terrace home which is situated in a popular residential location yet within easy access o...

Town & Country Southern (Drayton, Portsmouth)

Drayton, Portsmouth, Hampshire, PO6 2AA

02393 277 288

How much is your home worth?

Use our short form to request a valuation of your property.

Request a Valuation
©2025 The Guild of Property Professionals. All rights reserved. Terms and Conditions | Privacy Policy | Cookie Policy | Complaints Policy | Members Login
The Guild of Property Professionals Trading Address: 121 Park Lane, London W1K 7AG. GPEA Limited. Registered in England & Wales.  Company No: 02819824.  Registered Office Address: 2 St. Stephen's Court, St. Stephen's Road, Bournemouth, Dorset, England, BH2 6LA.  VAT Registration No: 576 8795 61
Book a Property Valuation Update Cookies Preferences