88 Harrisons Wharf, Purfleet, Essex, RM19

£1,475pcm

2 Bedroom Apartment for rent in Purfleet

1 2 2
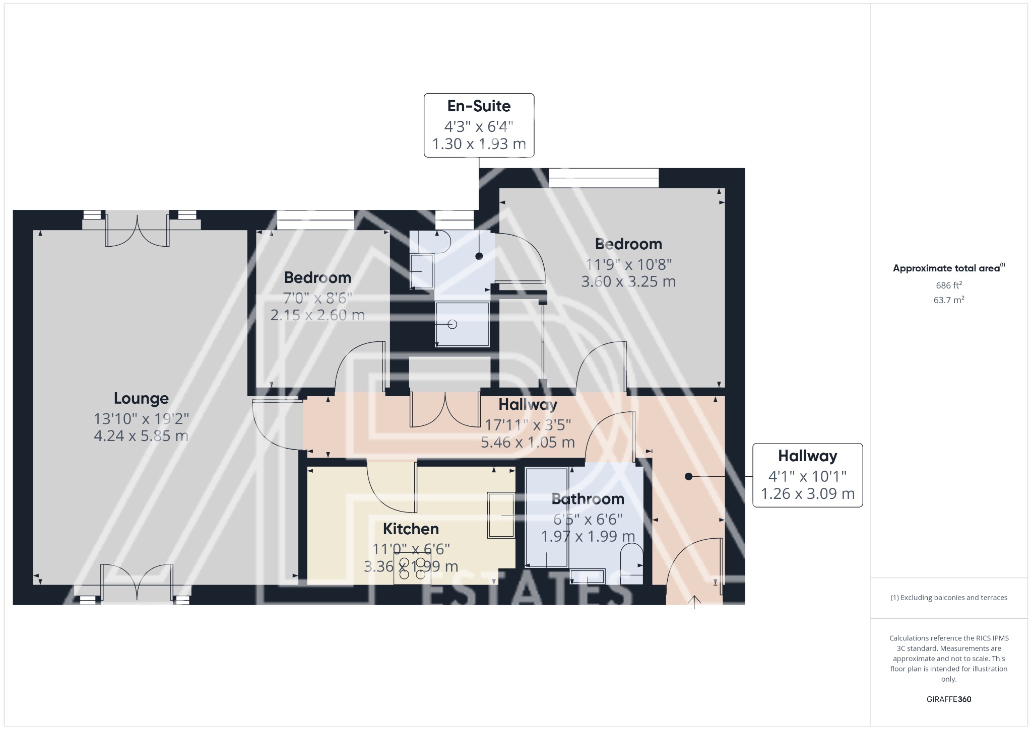
  • TWO BEDROOM
  • UPPER FLOOR FLAT
  • EN-SUITE TO MASTER BEDROOM & BUILT IN STORAGE
  • MODERN BATHROOM
  • KITCHEN WITH BUILT IN OVEN AND AMPLE STORAGE
  • RESIDENCE PARKING
  • BALCONY WITH VIEWS OF THE THAMES
  • EPC RATING : B
  • COUNCIL TAX BAND : D
  • CLOSE TO PURFLEET STATION (C2C LINE) 5 MINIUTE WALK

Welcome to Harrisons Wharf, Purfleet, Ideal for those seeking a well-located home with excellent transport links and scenic surroundings, this property is presented in good condition and is ready for immediate occupancy.
Upon entering, you are greeted by a thoughtfully designed layout that maximises space and natural light. The heart of the home is a welcoming reception area, providing a versatile space for relaxation and entertaining. The kitchen, while not overtly stylish, is highly functional, featuring a built-in oven and ample storage solutions, ensuring practicality for everyday living. This space is designed to cater to your culinary needs efficiently.
The flat comprises two well-proportioned bedrooms. The master bedroom benefits from the added convenience of an en-suite bathroom and built-in storage. The second bedroom is equally comfortable, providing flexibility for guests or a home office.
One of the standout features of this property is the private balcony, which offers delightful views of the River Thames, providing a serene spot for morning coffee or evening relaxation. Further enhancing the appeal is the provision of residence parking, a valuable asset in this popular location. The property boasts an impressive EPC Rating of B, indicating good energy efficiency, and falls within Council Tax Band D.
Harrisons Wharf in Purfleet is well positioned for easy access to local amenities and transport links. Residents can enjoy riverside walks while remaining connected to wider areas via nearby road networks and Purfleet C2C station, offering direct services into London and beyond.
This property is available now and represents a fantastic opportunity to secure a well-maintained home in a sought-after area. We invite you to experience the charm and convenience this flat has to offer. Contact M&P Estates today to arrange your viewing and take the first step towards making this your new home.

Important Information

  • This Council Tax band for this property is: D

Property Ref: 52922_459004

Share:

Similar Properties

Argent Court, Argent Street, Grays, Essex, RM17 6QT

2 Bedroom Flat | £1,475pcm

Two Bedroom Apartment // First Floor // Riverview // En-suite to bedroom one // Entry phone system

Riverside Place, Lower Southend Road, Wickford, Essex, SS11 8GD

3 Bedroom Apartment | £1,450pcm

Don't miss out on this ground floor 3-bedroom flat in Wickford with stylish features, allocated parking, and a modern ki...

Bernice Close, Rainham, Greater London, RM13

2 Bedroom Flat | £1,400pcm

Newly decorated modern two-bedroom ground floor apartment in Bernice Close, Rainham, offering contemporary amenities, se...

Lennard Row, Aveley, South Ockendon, Essex, RM15

2 Bedroom End of Terrace House | £1,500pcm

Charming Two-Bedroom End-of-Terrace Residence in Lennard Row, Aveley - Ideal for Families Seeking Modern Comfort and Con...

Mill Road, Aveley, South Ockendon, Essex, RM15

3 Bedroom Semi-Detached House | £1,500pcm

Book a viewing for this stunning 3-bedroom house in Mill Road, South Ockendon. Enjoy open living spaces and modern ameni...

Kennet Green, South Ockendon, Essex, RM15

2 Bedroom Terraced House | £1,500pcm

Don't miss out on this recently decorated 2 bedroom house with a contemporary bathroom, modern kitchen, and a rear garde...

M & P Estates (South Ockendon)

South Ockendon, Essex, RM15 5EH

01708 851999

How much is your home worth?

Use our short form to request a valuation of your property.

Request a Valuation
©2025 The Guild of Property Professionals. All rights reserved. Terms and Conditions | Privacy Policy | Cookie Policy | Complaints Policy | Members Login
The Guild of Property Professionals Trading Address: 121 Park Lane, London W1K 7AG. GPEA Limited. Registered in England & Wales.  Company No: 02819824.  Registered Office Address: 2 St. Stephen's Court, St. Stephen's Road, Bournemouth, Dorset, England, BH2 6LA.  VAT Registration No: 576 8795 61
Book a Property Valuation Update Cookies Preferences