High Street, Fovant, Salisbury

£1,375pcm
Let Agreed
This property listing is now Let Agreed

3 Bedroom Cottage for rent in Salisbury

2 3 1
  • Character semi-detached cottage
  • Three bedrooms
  • Two bathrooms
  • Large sun room
  • Open plan kitchen-dining
  • Working log burner
  • Popular location
  • Oil central heating
  • Off-street parking
  • 12 Month let

A characterful semi-detached stone cottage in a popular Nadder Valley village, featuring generously proportioned rooms, a double-glazed conservatory, and a courtyard garden. Available for 12 months.

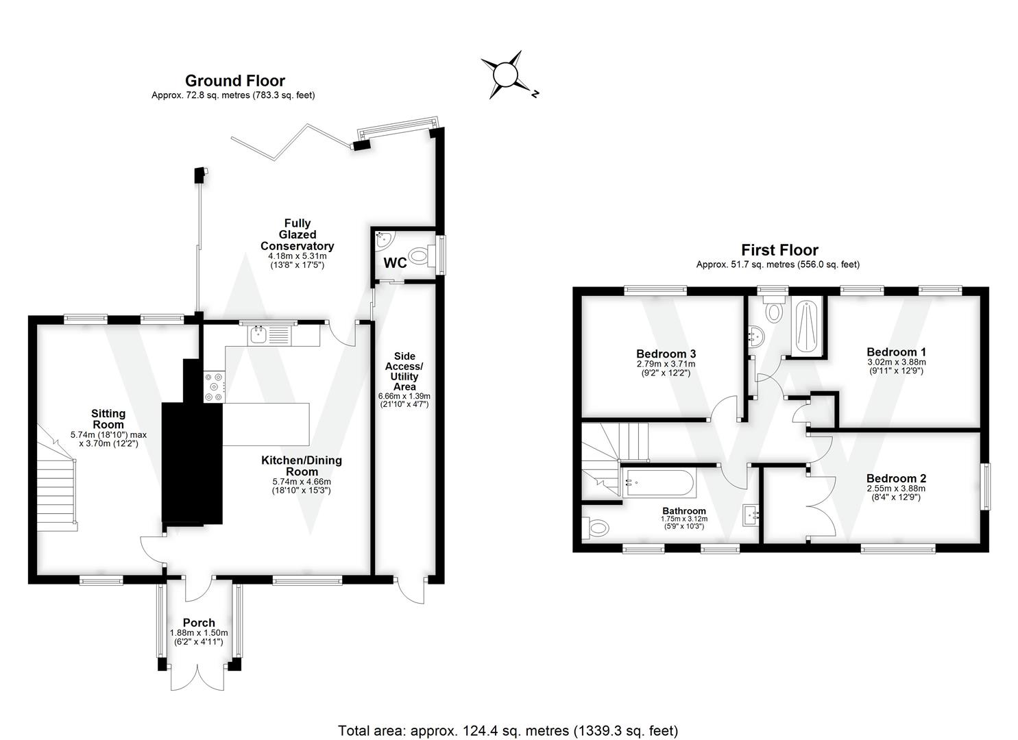
Description - This property is a charming semi-detached stone cottage situated in a central position within a popular village in the Nadder Valley. The current owner has sympathetically updated and extended the house, ensuring that all the rooms are generously sized and full of character.

At the rear of the cottage, Fovant Brook enhances its appeal. The accommodation features an oak entrance porch that leads into a spacious kitchen/dining room equipped with integrated appliances and attractive African Rosewood work surfaces. A highlight of the cottage is the cedar-clad, double-glazed conservatory, which includes a low-profile sunseeker door.

There is also a side storage area with a utility space and a cloakroom/WC. The ground floor is completed by a sitting room that boasts a large Inglenook fireplace with an inset wood burner.

On the first floor, you'll find three bedrooms, including a master bedroom with an en-suite shower room, as well as a family bathroom. At the front of the property, there is a driveway that provides off-road parking for two cars, and the rear features a cozy courtyard garden. Heating is supplied by oil and underfloor heating.

Fovant is a picturesque village situated on the southern slopes of the Nadder Valley, within the Cranborne Chase National Landscape. Surrounded by meadows, chalk downs, and ancient woodlands, it provides a tranquil rural setting along with a well-connected and active community.

The village is equipped with everyday amenities, including a shop and a Post Office, a GP surgery, a pharmacy, and a garage. The busy village hall hosts regular events and activities, while local news is shared through a monthly magazine and website. Fovant also benefits from a regular bus service and community-run transport. The surrounding countryside is excellent for walking, and the larger towns of Wilton and Tisbury, which has a mainline railway station, are easily accessible. The property is available for a 12-month let.

A Note From The Whites Letting Team - Thank you for considering Whites as your letting agent. As a proud member of the Royal Institution of Chartered Surveyors (RICS), we aspire to uphold its core values by providing a fair, efficient, and transparent service for all prospective tenants. Below we've outlined how we manage property enquiries and applications to help set expectations and guide you through the letting application process.

To begin the process of enquiring about one of our properties, please click the 'Request Further Details/Info' button on the property listing. This will send us your contact information, and we'll get back to you as soon as possible with a short questionnaire to complete. Once we've received your completed questionnaire, your enquiry will be registered with the relevant Property Manager. Please note, only those who complete this step will be considered as having formally enquired about the property.

Due to the high level of interest we often receive, we regret that we aren't often able to offer everyone a viewing. Where possible, we handle enquiries in the order they are received and arrange viewings in groups of up to 4 for the first round. If the property remains available, an additional round of viewings may be scheduled. To manage expectations, we may also temporarily pause viewings to review enquiries. If this happens, we'll do our best to update the property listing accordingly.

Please note that applications are not decided on a first-come, first-served basis. We aim to ensure a fair process for everyone, and all applications will be carefully considered on its merits by us, in conjunction with the landlord, before a final decision is made.

The availability date listed is provisional and will only be confirmed once referencing has been successfully completed.

Property Ref: 665745_33384911

Share:

Similar Properties

Love Lane, Salisbury

3 Bedroom Townhouse | £1,350pcm

A well-presented, three/four-bedroom terraced townhouse arranged over three floors, offering flexible accommodation, sit...

Elmfield Close, Woodfalls, Salisbury

3 Bedroom Semi-Detached House | £1,350pcm

*** VIEWINGS ON HOLD DUE TO HIGH DEMAND***This three-bedroom semi-detached property in Woodfalls features a spacious lou...

West Woodyates, Salisbury

3 Bedroom Semi-Detached House | £1,350pcm

Modernized three-bedroom semi-detached house with garden, parking, and updated amenities in a private estate. Unfurnishe...

Odstock, Salisbury

1 Bedroom Barn Conversion | £1,400pcm

A wonderful spacious FURNISHED one-bedroom barn conversion with an open plan ground floor, in a Sought after village loc...

Pilots View, Amesbury, Salisbury

3 Bedroom Detached House | £1,400pcm

*** VIEWINGS ON HOLD***A well presented detached three bedroom family home with the benefit of a garden office, garage a...

Heath Road, Salisbury

3 Bedroom Semi-Detached House | £1,400pcm

A spacious, unfurnished, three bedroom semi-detached house situated in a popular location with large garden and off road...

Whites Estate Agents (Salisbury)

47 Castle Street, Salisbury, Wilts, SP1 3SP

01722 336 422

How much is your home worth?

Use our short form to request a valuation of your property.

Request a Valuation
©2026 The Guild of Property Professionals. All rights reserved. Terms and Conditions | Privacy Policy | Cookie Policy | Complaints Policy | Members Login
The Guild of Property Professionals Trading Address: 121 Park Lane, London W1K 7AG. GPEA Limited. Registered in England & Wales.  Company No: 02819824.  Registered Office Address: 2 St. Stephen's Court, St. Stephen's Road, Bournemouth, Dorset, England, BH2 6LA.  VAT Registration No: 576 8795 61
Book a Property Valuation Update Cookies Preferences