Byron Way, Stamford

£995pcm
Let Agreed
This property listing is now Let Agreed

2 Bedroom Semi-Detached House for rent in Stamford

1 2 1
  • Semi-Detached House
  • Two Bedrooms
  • Kitchen/Dining Room
  • Single Garage & Driveway Parking
  • Close to Schools and Amenities
  • Easy Access to the A1
  • Enclosed South Facing Garden
  • EPC Rating C
  • Please see Key facts for Tenants for Material Information Disclosures


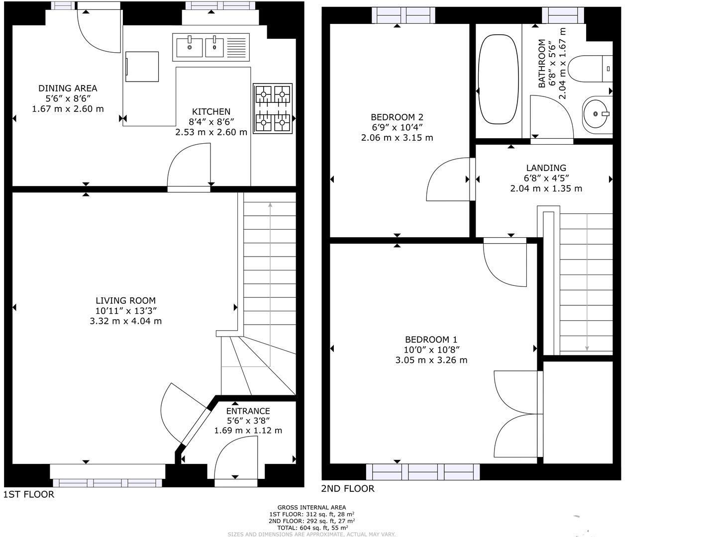
In brief the property comprises: a small entrance hall with room for coats and shoes, a pleasant living room to the front of the property and a kitchen/dining room running across the rear, with door opening to the garden beyond. Upstairs there are two bedrooms, the master with built-in cupboard and finally there is a bathroom with shower over the bath.
Externally there is a single garage and driveway providing off-street parking for 1 vehicle. To the rear is a fully enclosed south facing garden which is mainly laid to lawn with a small patio area.

Agents Note:
Holding Deposit - £229
Tenancy Security Deposit – £1148
Local Authority – South Kesteven District Council
Council Tax Band – B
EPC Rating - C

Entrance

Living Room
4.04m x 3.33m (13'3 x 10'11)

Kitchen/Dining
4.22m x 2.59m (13'10 x 8'6)

First Floor Landing

Bedroom 1
3.25m x 3.05m (10'8 x 10'0)

Bedroom 2
3.15m x 2.06m (10'4 x 6'9)

Bathroom

Single Garage + Off Street Parking

Enclosed Rear Garden


Sizes and dimensions are calculated using a laser measuring modelling device and as such whilst representative it must be noted that they are all approximate, actual sizes may vary

Important Information

  • This Council Tax band for this property is: B
  • EPC Rating is C

Property Ref: 34503123

Share:

Similar Properties

St. Marys Street, Stamford

3 Bedroom Flat | £995pcm

A characterful 3 bedroom second-floor apartment set in the heart of Stamford town centre, offering generous living space...

Empingham Road, Stamford

2 Bedroom Terraced House | £995pcm

This extremely well presented 2 Bedroom mid terrace character cottage, set towards the bottom of Empingham Road, is just...

Willow Road, Stamford

2 Bedroom Semi-Detached House | £950pcm

Located in a quiet cul-de-sac on Willow Road, this modern 2 bedroom semi-detached property is situated close to local am...

New Cross Road, Stamford

2 Bedroom Terraced House | £1,100pcm

A well-presented Victorian terrace in a sought-after Stamford location, just a short walk from the town centre and the R...

Gas Lane, Stamford, Lincolnshire

2 Bedroom End of Terrace House | £1,100pcm

This charming end-terrace property is beautifully presented throughout and must be viewed to fully appreciate the genero...

Doughty Street, Stamford

3 Bedroom Semi-Detached House | £1,150pcm

Extremely well presented 3 bedroom semi detached home in a sought after Stamford location, offering two reception rooms,...

Goodwin Property (Stamford)

St Johns Street, Stamford, Lincolnshire, PE9 2DA

01780 750000

How much is your home worth?

Use our short form to request a valuation of your property.

Request a Valuation
©2026 The Guild of Property Professionals. All rights reserved. Terms and Conditions | Privacy Policy | Cookie Policy | Complaints Policy | Members Login
The Guild of Property Professionals Trading Address: 121 Park Lane, London W1K 7AG. GPEA Limited. Registered in England & Wales.  Company No: 02819824.  Registered Office Address: 2 St. Stephen's Court, St. Stephen's Road, Bournemouth, Dorset, England, BH2 6LA.  VAT Registration No: 576 8795 61
Book a Property Valuation Update Cookies Preferences