Somerfield Road, Walsall

£1,000pcm

3 Bedroom Terraced House for rent in Walsall

1 3 1

Webbs Estate Agents are pleased to present this spacious three-bedroom terraced home for rent. Situated in a convenient and popular area of Bloxwich.

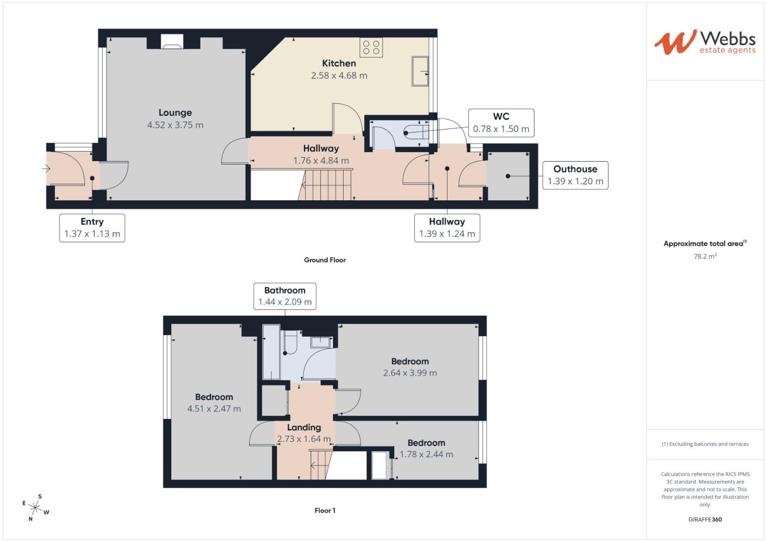
To the front, you'll find a garden leading to the entrance porch. Inside, the property boasts a large lounge, a well-appointed kitchen diner, a convenient guest WC and a outhouse to the rear of the property. Upstairs, the first floor offers three generously sized bedrooms and a fitted bathroom.

To the rear, there is a private enclosed garden. The property also benefits from parking facilities, ensuring convenience for homeowners and visitors alike.

Property Details - Holding Deposit: £230
Security Deposit: £1,153
Minimum Household Income Required: £30,000
EPC Band: C (77/89)
Council Tax Band: A (Walsall)

CONNECTIVITY (information obtained via Ofcom as of December 2025):
Broadband Availability: Standard, superfast & ultrafast available - Virgin Media & Openreach
Mobile Coverage: EE: Good outdoor. O2: Good outdoor. Three: Good outdoor. Vodafone: Good outdoor, variable in-home.

UTILITIES:
Electric: Mains connected
Water: Mains connected
Sewerage: Mains connected
Heating: Gas central heating

PARKING:
There is off road parking to the front of the property on a first come first serve basis. There is also off road parking at the rear of the property.

ACCESSIBILITY:
There is one step to access the ground floor of the property. The accommodation is set over two floors, with stairs to access the bedrooms and bathroom.

Entrance Hallway - 1.37 x 1.13 (4'5" x 3'8") -

Lounge - 4.52 x 3.75 (14'9" x 12'3") -

Kitchen/Diner - 2.58 x 4.68 (8'5" x 15'4") -

Guest Wc - 0.78 x 1.50 (2'6" x 4'11") -

Landing - 2.73 x 1.64 (8'11" x 5'4") -

Bedroom - 4.51 x 2.47 (14'9" x 8'1") -

Bedroom - 2.64 x 3.99 (8'7" x 13'1") -

Bedroom - 1.78 x 2.44 (5'10" x 8'0") -

Bathroom - 1.44 x 2.09 (4'8" x 6'10") -

Please Note - Any measurements provided are approximate and some may be maximum on irregular walls. Some images may have been taken with a wide angle lens and occasionally a zoom lens. The property particulars imply the opinion of the agent at the time these details were prepared and are subjective. It may be that opinions may differ. Every attempt has been made to ensure accuracy, photographs and distances referred to are given as a guide. In accordance with the Property Mis-descriptions Act (1991) these particulars have been prepared in good faith and they are not intended to constitute part of an offer or contract. We have not carried out a structural survey and the services, appliances and specific fittings have not been tested.

Property Ref: 761284_34351194

Share:

Similar Properties

High Street, Bloxwich

Retail Property (High Street) | £1,000pcm

Exceptional Retail Opportunity in a Prime Bloxwich Location - Webbs Estate Agents are thrilled to present this self-cont...

Edison Close, Hednesford, Cannock

3 Bedroom Semi-Detached House | £1,000pcm

Webbs Estate Agents are pleased to offer to let this three-bedroom semi-detached property situated in a popular area of...

Sunfield Road, Cannock

2 Bedroom Detached Bungalow | £995pcm

Webbs Estate Agents are delighted to offer to let this well-presented two-bedroom bungalow situated in a sought-after ar...

Hancox Close, Burntwood

2 Bedroom Semi-Detached House | £1,050pcm

Webbs Estate Agents are pleased to present this fabulous 2 bedroom house to rent set within a modern residential estate...

Forge Close, Churchbridge, Cannock

3 Bedroom Terraced House | £1,100pcm

Webbs Estate Agents are delighted to offer to let, this well presented three-storey modern end terrace house, situated o...

Hednesford Road, Rugeley

3 Bedroom Detached Bungalow | £1,100pcm

Webbs Estate Agents are delighted to present this spacious three-bedroom detached dormer bungalow, located on Hednesford...

Webbs Estate Agents (Cannock)

Cannock, Staffordshire, WS11 1LF

01543 468846

How much is your home worth?

Use our short form to request a valuation of your property.

Request a Valuation
©2025 The Guild of Property Professionals. All rights reserved. Terms and Conditions | Privacy Policy | Cookie Policy | Complaints Policy | Members Login
The Guild of Property Professionals Trading Address: 121 Park Lane, London W1K 7AG. GPEA Limited. Registered in England & Wales.  Company No: 02819824.  Registered Office Address: 2 St. Stephen's Court, St. Stephen's Road, Bournemouth, Dorset, England, BH2 6LA.  VAT Registration No: 576 8795 61
Book a Property Valuation Update Cookies Preferences