Albert Road, Widnes

£1,250pcm

Commercial Property for rent in Widnes

  • Commercial Property
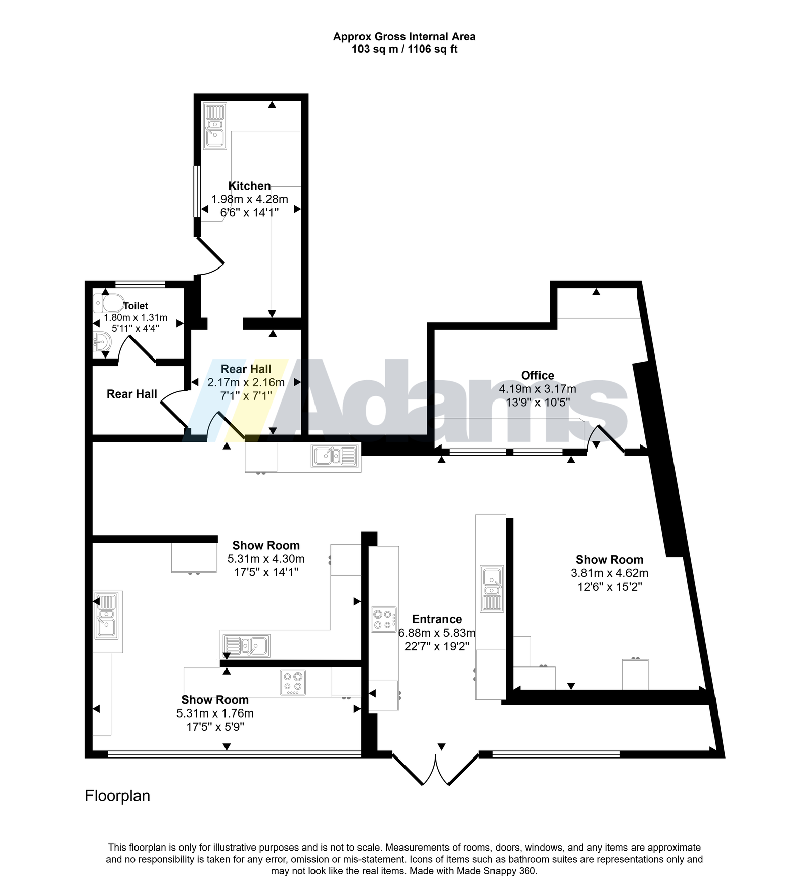
  • Ground Floor
  • Show Room
  • Office
  • Kitchen
  • Toilet
  • Prominent Position
  • Widnes Town Centre
  • Available to View

Prime Commercial Space in Widnes Town Centre


An exceptional opportunity awaits with this ground floor commercial property located on Albert Road, Widnes, WA8 6LB, available for £1,250 pcm. Situated in a prominent Widnes Town Centre position, this property offers excellent visibility and accessibility for your business.


The premises feature a versatile showroom area, perfect for displaying products or creating an inviting customer-facing space. Additionally, there is a dedicated office, providing a private area for administrative tasks or client meetings. The property also includes a convenient kitchen and toilet facilities, ensuring comfort for both staff and customers.


Widnes Town Centre location provides superb access to local amenities and transport links, making it an ideal spot for a thriving business operation.


This commercial property is available to view now. Contact us today to arrange your viewing and discover the potential for your business.

Property Ref: 9_53673

Share:

Similar Properties

Howson Road, Warrington, WA2 9UD

3 Bedroom End of Terrace House | £1,250pcm

Adams Estate Agents are delighted to bring to market this three-bedroom end-terrace property, ideally situated in the po...

Snowdrop Close, Beechwood, Runcorn, WA7 4PL

3 Bedroom Semi-Detached House | £1,250pcm

Discover this beautifully presented three-bedroom semi-detached house, ideally situated in the desirable WA7 4PL area. T...

Marina Village, Preston Brook, Runcorn, WA7 3BH

3 Bedroom Terraced House | £1,200pcm

Adams Real Estate is delighted to offer this three-bedroom mid-terrace property on Marina village thoughtfully arranged...

Birchfield Road, Widnes, WA8 7TE

3 Bedroom Terraced House | £1,300pcm

This beautifully presented, fully refurbished three-bedroom home on Birchfield Road offers spacious living with two rece...

Runcorn, Cheshire, WA7 1JD

3 Bedroom Semi-Detached House | £1,300pcm

Adams Real Estate are delighted to bring to the market this charming and contemporary three-bedroom semi-detached home,...

Birchdale Road, Appleton, Warrington, WA4 5AW

3 Bedroom Ground Floor Flat | £1,300pcm

Adams Estate Agents is delighted to welcome to the rental market this particularly spacious three bedroom ground floor a...

Adams Estate Agents - Stockton Heath (Stockton Heath)

Walton Road, Stockton Heath, Cheshire, WA4 6NL

01925 398343

How much is your home worth?

Use our short form to request a valuation of your property.

Request a Valuation
©2026 The Guild of Property Professionals. All rights reserved. Terms and Conditions | Privacy Policy | Cookie Policy | Complaints Policy | Members Login
The Guild of Property Professionals Trading Address: 121 Park Lane, London W1K 7AG. GPEA Limited. Registered in England & Wales.  Company No: 02819824.  Registered Office Address: 2 St. Stephen's Court, St. Stephen's Road, Bournemouth, Dorset, England, BH2 6LA.  VAT Registration No: 576 8795 61
Book a Property Valuation Update Cookies Preferences