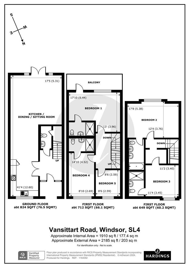
Vansittart Road, Windsor, SL4

£4,500pcm

4 Bedroom Terraced House for rent in Windsor

1 4 4
  • Collection of 4 beautiful Newbuild Townhouses by Prestigious Developer, BellView Group
  • Principal Bedroom with En-Suite Bedroom and Terrace
  • 3 Further Double Bedrooms, 3 Ensuite Bathrooms
  • Study
  • Large Open Plan Kitchen/ Dining Room/Reception Room
  • Bi-Fold Doors onto Garden
  • Utility Room with WC
  • Town Centre Location
  • Off Street Parking for Two Cars
  • Available mid October

Forming part of a terrace of four properties, this is a luxurious four-bedroom mid terraced townhouse, with parking for 2 cars, built by luxury builders 'The BellView Group'. Located on a quiet residential road just a short walk to Windsor town centre, the property encompasses stylish and beautifully appointed accommodation throughout.

On the ground floor, there is an open-plan kitchen/dining room blending seamlessly into a spacious reception area replete with high ceilings and bi-fold doors opening onto a private west-facing private garden. Further benefits include a separate utility room with a cloakroom.

The principal bedroom, which is located on the first floor, enjoys a private terrace, ample storage and en-suite bathroom. There are a further three double bedrooms all offered with en-suite bathrooms.

The property is ideally located for the mainline British Rail links to London (Waterloo & Paddington), M25 & M40, excellent schools and Heathrow Airport.

Offered Unfurnished.

Property Ref: 6500824_34203715

Share:

Similar Properties

Clarence Road, Windsor, SL4

4 Bedroom Semi-Detached House | £3,950pcm

A delightful, Windsor town centre home of substantial size. Offering four bedrooms, four bathrooms and a sizeable open p...

Alexandra Road, Windsor , SL4

4 Bedroom Terraced House | £3,250pcm

An attractive 4 bedroom terraced period villa located on the fringes of the Golden Triangle, just a short walk to Windso...

Adelaide Square, Windsor, SL4

3 Bedroom House | £3,000pcm

A beautifully presented three bedroom, Grade II listed Georgian house located in the heart of Windsor's sought after 'Go...

Vansittart Road, Windsor, SL4

4 Bedroom End of Terrace House | £4,650pcm

Forming part of a terrace of four properties, this is a luxurious four-bedroom mid terraced townhouse, with parking for...

Claremont Road, Windsor, SL4

4 Bedroom Villa | £5,500pcm

Welcome to Claremont Road, Windsor - a stunning property that exudes elegance and charm! This beautiful villa boasts 2 r...

Hanover Way, Windsor

1 Bedroom Apartment | Guide Price £140,000

A spacious one bedroom flat located on the first floor of a purpose built development on the outskirts of Windsor Town C...

Hardings Estate Agents (Windsor)

Windsor, Berkshire, SL4 1LD

01753 833118

How much is your home worth?

Use our short form to request a valuation of your property.

Request a Valuation
©2025 The Guild of Property Professionals. All rights reserved. Terms and Conditions | Privacy Policy | Cookie Policy | Complaints Policy | Members Login
The Guild of Property Professionals Trading Address: 121 Park Lane, London W1K 7AG. GPEA Limited. Registered in England & Wales.  Company No: 02819824.  Registered Office Address: 2 St. Stephen's Court, St. Stephen's Road, Bournemouth, Dorset, England, BH2 6LA.  VAT Registration No: 576 8795 61
Book a Property Valuation Update Cookies Preferences