12 Sites, Kilraughts Road, Dunaghy, Ballymoney

Offers in excess of
£375,000
SSTC
This property listing is now SSTC

Land for sale in Ballymoney

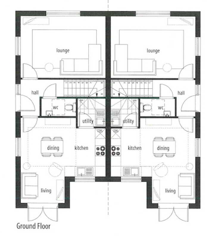
We are delighted to offer for sale 12 building plots with Full Planning Permission for semi detached and detached homes. The sites are located approximately 1 mile from Ballymoney and the A26 and we strongly recommend inspection

Property Ref: ST0608216_644072

Share:

Similar Properties

53 Drumsaragh Road, Kilrea, Coleraine

5 Bedroom Detached House | £349,950

241a Finvoy Road, Ballymoney

4 Bedroom Detached House | £349,950

92 Garryduff Road, Ballymoney

3 Bedroom Detached House | Offers in region of £345,000

New Build, 89 Benvardin Road, Ballymoney, Ballybogy

3 Bedroom Detached Bungalow | £395,000

97 Garryduff Road, Ballymoney

4 Bedroom Detached Bungalow | Offers in region of £397,500

The Whins, 17b Mullan Road, Ballymoney

6 Bedroom Detached House | Offers in region of £425,000

McAfee Properties (Ballymoney)

Ballymoney, Ballymoney, County Antrim, BT53 6AN

028 2766 7676

How much is your home worth?

Use our short form to request a valuation of your property.

Request a Valuation

Mortgage Calculator

Amount Borrowed: £
Total Amount Repayable: £
Total Monthly Payment: £
©2025 The Guild of Property Professionals. All rights reserved. Terms and Conditions | Privacy Policy | Cookie Policy | Complaints Policy | Members Login
The Guild of Property Professionals Trading Address: 121 Park Lane, London W1K 7AG. GPEA Limited. Registered in England & Wales.  Company No: 02819824.  Registered Office Address: 2 St. Stephen's Court, St. Stephen's Road, Bournemouth, Dorset, England, BH2 6LA.  VAT Registration No: 576 8795 61
Book a Property Valuation Update Cookies Preferences