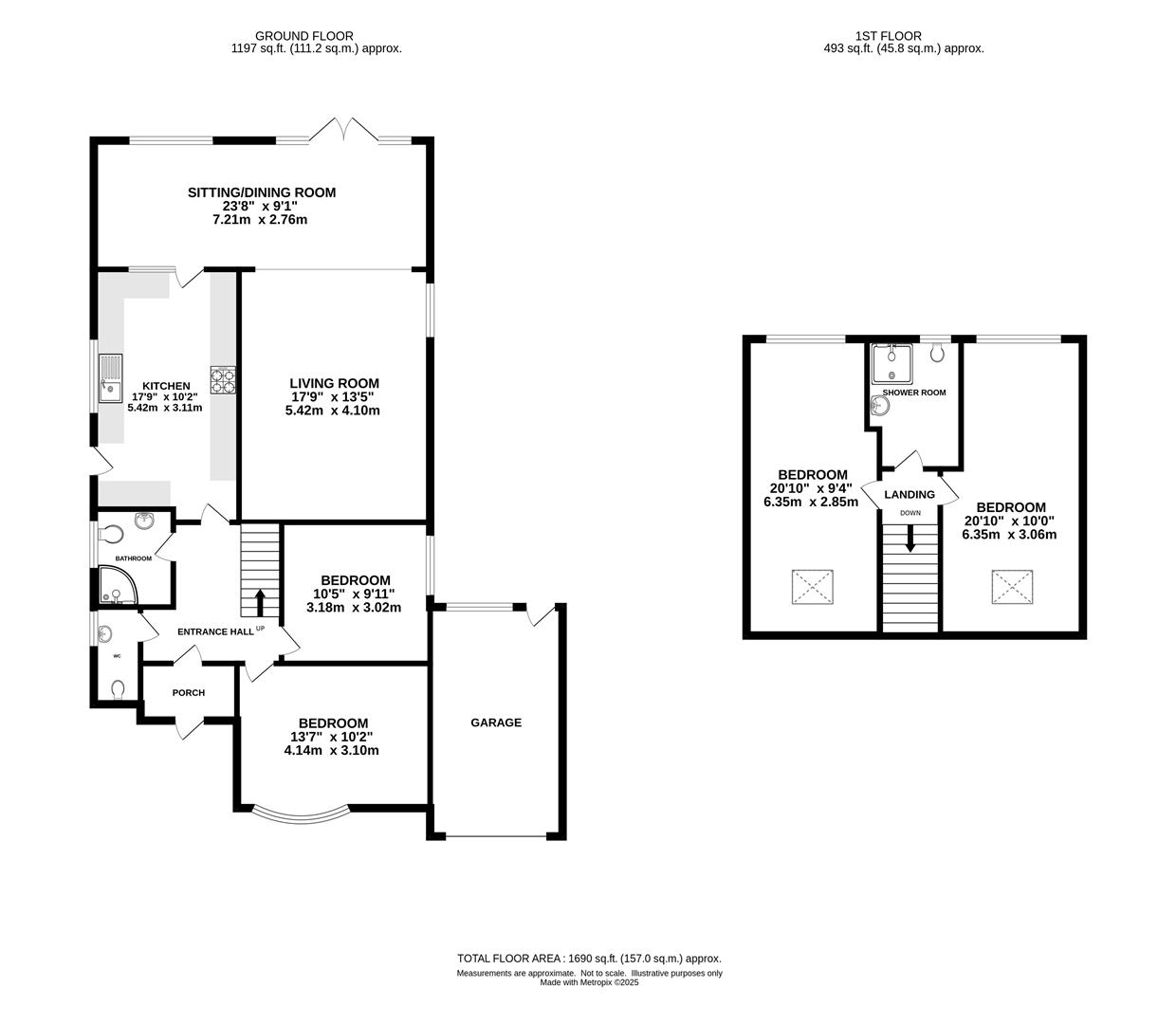
- EXTENDED DETACHED CHALET STYLE PROPERTY
- FOUR DOUBLE BEDROOMS
- OPEN PLAN LIVING ROOM / DINING ROOM
- WELL-FITTED, CONTEMPORARY STYLE KITCHEN
- GROUND FLOOR BATHROOM & FIRST FLOOR SHOWER ROOM
- GROUND FLOOR CLOAKROOM
- 65' GARDEN BACKING ONTO FIELDS
- SPACIOUS DRIVEWAY & ATTACHED GARAGE