Warescot Road, Brentwood

Guide Price
£800,000
SSTC
This property listing is now SSTC

4 Bedroom Semi-Detached House for sale in Brentwood

1 4 3
  • FOUR BEDROOM FAMILY HOME
  • BEAUTIFULLY PRESENTED THROUGHOUT
  • EXTENDED TO THE REAR AND LOFT
  • LARGE LANDSCAPED GARDEN
  • EASY REACH OF BRENTWOOD STATION
  • HIGHLY REGARDED SCHOOLS CLOSE BY
  • BUILT CIRCA 1930
  • WALKING DISTANCE OF BRENTWOOD HIGH STREET

**Guide Price £800,000 - £850,000** We are delighted to present this beautifully appointed four-bedroom family home, ideally situated less than a mile from Brentwood High Street. Thoughtfully extended to the rear and into the loft, this charming property offers generous living space, blending comfort with contemporary style throughout.

Perfectly positioned for convenience, the home is within easy reach of Brentwood train station, providing excellent transport links to London and beyond. It is also close to highly regarded local schools, making it an ideal choice for families seeking both quality and location.

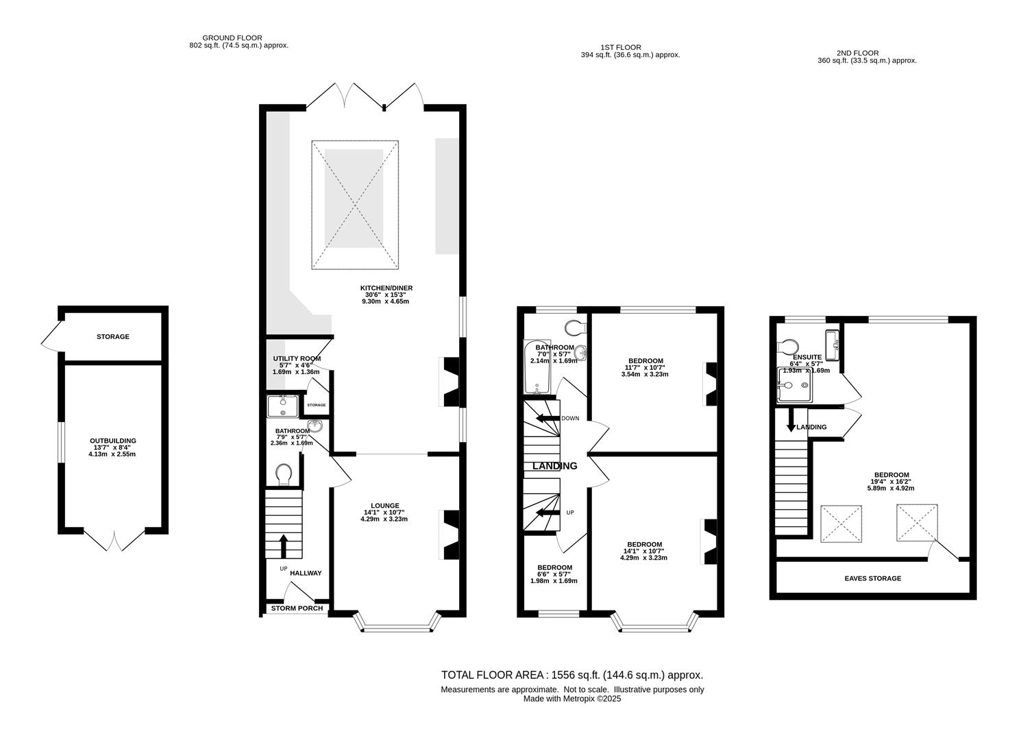
The internal layout begins with a welcoming entrance hall, setting the tone for the elegance found throughout the home. To the front, a stylish lounge features an attractive bay window and a charming feature fireplace, creating a warm and inviting space to relax. Flowing seamlessly from here is the show-stopping kitchen/diner - a bright and spacious hub of the home. Bathed in natural light from a ceiling lantern and bi-fold doors that open onto the garden, this room is perfect for both everyday living and entertaining. The kitchen is beautifully designed with sleek eye and base level units, granite worktops, and a central island with breakfast bar. Completing the ground floor is a practical utility room and a contemporary shower room.

Ascending to the first floor, the landing leads to two generous double bedrooms, both elegantly styled and each featuring a charming fireplace. A third single bedroom sits to the front of the property, while a modern family bathroom is positioned to the rear. On the top floor, the spacious principal bedroom benefits from ample built-in storage and a luxurious ensuite shower room, offering a peaceful retreat.

Outside, the large, landscaped garden begins with a generous paved patio-ideal for al fresco dining and entertaining. A brick-built outbuilding provides flexible use as a home office, gym, or garden bar, while a low-maintenance artificial lawn completes the space. To the front, a neat resin driveway offers convenient off-street parking.

Entrance Hall -

Lounge - 4.29 x 3.23 (14'0" x 10'7") -

Kitchen/Diner - 9.30 x 4.65 (30'6" x 15'3") -

Utility Room - 1.69 x 1.36 (5'6" x 4'5") -

Bathroom - 2.36 x 1.69 (7'8" x 5'6") -

Landing -

Bedroom - 4.29 x 3.23 (14'0" x 10'7") -

Bedroom - 3.54 x 3.23 (11'7" x 10'7") -

Bedroom - 1.98 x 1.69 (6'5" x 5'6") -

Bathroom - 2.14 x 1.69 (7'0" x 5'6") -

Bedroom - 5.89 x 4.92 (19'3" x 16'1") -

Ensuite - 1.93 x 1.69 (6'3" x 5'6") -

Outbuilding - 4.13 x 2.55 (13'6" x 8'4") -

Agents Note - As part of the service we offer we may recommend ancillary services to you which we believe may help you with your property transaction. We wish to make you aware, that should you decide to use these services we will receive a referral fee. For full and detailed information please visit 'terms and conditions' on our website www.keithashton.co.uk

Property Ref: 33954721

Share:

Similar Properties

Nags Head Lane, Brentwood

4 Bedroom Detached House | Guide Price £800,000

**GUIDE PRICE £800,000 - £850,000** Set in the semi-rural location of Nags Head Lane is this beautifully presented and u...

Middle Road, Ingrave, Brentwood

4 Bedroom Semi-Detached House | Guide Price £775,000

** GUIDE PRICE £775,000 - £800,000 ** With views to the front and rear, we are delighted to bring to market this beautif...

Chalk End, Roxwell, Chelmsford

4 Bedroom Semi-Detached House | £775,000

We are delighted to introduce this impressive family home, set within the picturesque hamlet of Chalk End, Roxwell. Imma...

Warley Gap, Little Warley, Brentwood

Land | Guide Price £820,000

We are delighted to present a rare and exceptional opportunity to acquire a prime plot of land in the prestigious and pi...

41 Shenfield Road, Shenfield, Brentwood

2 Bedroom Apartment | Guide Price £825,000

We are proud to present 41 Shenfield Road Apartments - an exclusive, gated development of just nine brand-new luxury apa...

St. Nicholas Grove, Ingrave, Brentwood

3 Bedroom Detached House | £850,000

We are delighted to bring to market this beautifully presented detached family home available with No onward chain, idea...

Keith Ashton Estates - Brentwood Office (Brentwood)

26 St. Thomas Road, Brentwood, Essex, CM14 4DB

01277 260858

How much is your home worth?

Use our short form to request a valuation of your property.

Request a Valuation

Mortgage Calculator

Amount Borrowed: £
Total Amount Repayable: £
Total Monthly Payment: £
©2026 The Guild of Property Professionals. All rights reserved. Terms and Conditions | Privacy Policy | Cookie Policy | Complaints Policy | Members Login
The Guild of Property Professionals Trading Address: 121 Park Lane, London W1K 7AG. GPEA Limited. Registered in England & Wales.  Company No: 02819824.  Registered Office Address: 2 St. Stephen's Court, St. Stephen's Road, Bournemouth, Dorset, England, BH2 6LA.  VAT Registration No: 576 8795 61
Book a Property Valuation Update Cookies Preferences