Leigh Woods, Bristol

Guide Price
£495,000
SSTC
This property listing is now SSTC

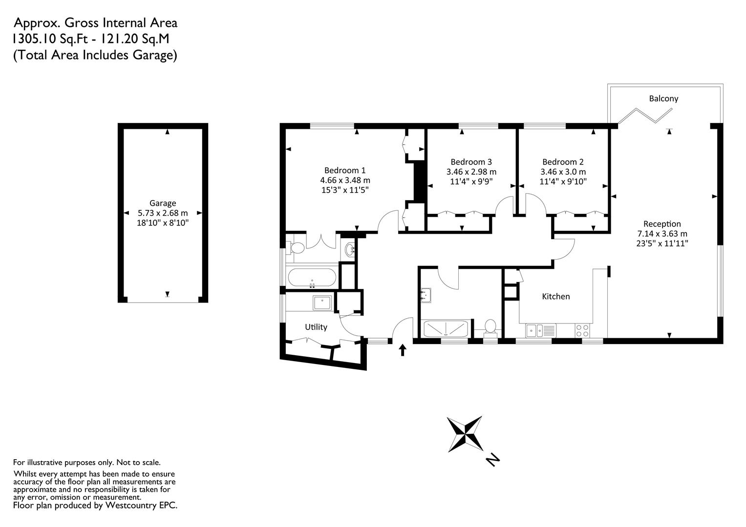
3 Bedroom Apartment for sale in Bristol

1 3 2
  • Ground floor flat
  • Fantastic outlook over gardens
  • Beautifully refurbished throughout
  • Single Garage
  • High standard of finish & specification

A beautifully appointed three bedroom, two bathroom ground floor apartment in an exclusive setting within the desirable, leafy suburb of Leigh Woods. The property has been comprehensively modernised and refurbished under the current ownership resulting in first class presentation throughout and a standard of finish rarely seen.
Advantages include a comprehensively equipped fitted kitchen with granite worksurfaces and Neff appliances, wifi controlled underfloor heating, LED lighting and luxuriously appointed bath/shower rooms with marble dressings. Other notable features comprise a 23'5 living room with bi fold doors opening to a private terrace allowing a stunning outlook over the well-tended communal gardens. There is also the benefit of a single garage and visitors parking.

Location - Leigh Woods House is conveniently placed within approximately ten minutes walk of nearby Clifton Village, offering a wide range of high street shops, boutiques and restaurants. Junction 19 of the is approximately 3.5 miles travelling distance thereby allowing immediate access to the M4/M5 motorway network. Bristol city centre is approximately 3 miles travelling distance. There is a wide selection of both private and state schooling within the immediate vicinity to include Clifton College, Clifton High School and Christchurch Primary to name but a few. Nearby Ashton Court Estate (approximately 0.5 miles) provides for excellent recreational facilities. Forestry England's stunning Leigh Woods is also moments away. Bristol & Clifton Golf Club is approximately two miles travelling distance.

Directions - Leave Clifton across the Suspension Bridge (£1 toll). After crossing the bridge you are now entering Leigh Woods. Take the first available turning on your right-hand side into North Road. Carry on along North Road until you come to the third turning of the left hand side (Church Road). Take this turning and observe the entrance to Leigh Woods House immediately on your right.

Other Information - TENURE: We understand to be leasehold for the remainder of a 999 year lease with 941 years unexpired.

SERVICE CHARGE: £2,584 per annum (Jan to Dec 2021) to include buildings insurance and ground rent.

PARKING: Communal visitors car parking space on a first come, first serve basis and private garage situated in block (Number 4)

LOCAL AUTHORITY - North Somerset Council
T: 01934 888888 W: www.n-somerset.gov.uk

COUNCIL TAX BAND - Band 'E' - £2,312.70 (2021/2022)

VIEWING: Strictly by prior arrangement with Hydes of Bristol.
T: 0117 973 1516 E: post@hydes.co.uk

EPC RATING: D

Specification - Underfloor heating throughout (Wifi Controlled)
LED Lighting throughout
Neff Appliances to kitchen, Franke hot tap and Granite Worktops (including the Utility room)
Bi fold doors on Balcony with access direct to garden
Fitted Wardrobes in bedrooms 2 & 3
Marble Fitted En-suite (Laufen Toilet/sink) Grohe Taps and toilet fittings.

Important Note - Hydes of Bristol and any joint agents give notice that (i) they have no authority to make or give representations or warranties in relation to the property. These particulars do not form part of any offer or contract and must not be relied upon as statements or representations of fact. (ii) Any areas, distances or measurements are approximate. The text, photographs and plans are for guidance only and are not necessarily comprehensive. It should not be assumed that the property has all the necessary planning, building regulations or other consents and Hydes of Bristol have not tested any services, equipment or facilities. Purchasers must satisfy themselves by inspection or otherwise. (iii) In accordance with the Property Misdescriptions Act, please note that the working condition of these services, or kitchen appliances has not been checked by the Agents but at the time of taking particulars we were informed that all were in working order. Please also note that current government legislation demands that as selling agents for this property, Hydes of Bristol require written evidence of the origin/source of finance for funding for any prospective purchaser wishing to purchase this property. This confirmation shall be required prior to the vendor entering into any contract of sale and our instructions from the vendor are to this effect.

Property Ref: 14213_31195135

Share:

Similar Properties

1/3 Oakfield Road, Clifton, Bristol, BS8

2 Bedroom Apartment | Offers in excess of £495,000

A beautifully presented and particularly light two double bedroom hall floor apartment set within this impressive grade...

North Road, Leigh Woods, Bristol, BS8

2 Bedroom Duplex | Guide Price £495,000

A beautifully presented two-bedroom, top floor duplex apartment with stunning views over the Avon Gorge to the west and...

Oldfield Road, Hotwells, Bristol, BS8

2 Bedroom House | Offers in region of £495,000

(Offers are invited between £465,000 and £495,000) A most attractive two bedroom Victorian terraced house situated withi...

Bear Yard Mews, Hotwells, Bristol, BS8

4 Bedroom House | Guide Price £499,500

An attractive 3/4-bedroom, terraced mews house, tucked away in a hidden enclave of Hotwells, with the benefit of two off...

37 Julian Road, Sneyd Park, Bristol, BS9

3 Bedroom Flat | Guide Price £499,950

A particularly light and beautifully presented three double bedroom apartment, set on the second floor of this highly re...

Royal York Crescent, Clifton, Bristol, BS8

2 Bedroom Apartment | Offers in region of £525,000

OFFERS ARE INVITED BETWEEN £525,000 & £575,000. A stunning two bedroom apartment set within a handsome Grade II* listed...

Hydes (Clifton)

28 Princess Victoria Street, Clifton, Bristol, BS8 4BU

0117 9731516

How much is your home worth?

Use our short form to request a valuation of your property.

Request a Valuation

Mortgage Calculator

Amount Borrowed: £
Total Amount Repayable: £
Total Monthly Payment: £
©2025 The Guild of Property Professionals. All rights reserved. Terms and Conditions | Privacy Policy | Cookie Policy | Complaints Policy | Members Login
The Guild of Property Professionals Trading Address: 121 Park Lane, London W1K 7AG. GPEA Limited. Registered in England & Wales.  Company No: 02819824.  Registered Office Address: 2 St. Stephen's Court, St. Stephen's Road, Bournemouth, Dorset, England, BH2 6LA.  VAT Registration No: 576 8795 61
Book a Property Valuation Update Cookies Preferences