Bournemouth Road, Chandler's Ford, Eastleigh

£260,000
SSTC
This property listing is now SSTC

2 Bedroom Terraced House for sale in Chandler's Ford

1 2 1

A modern two-bedroom terraced house that presents an excellent opportunity for both first-time buyers and those seeking a comfortable home. Upon entering, you will find a welcoming sitting and dining room that provides great space for relaxation and entertaining. The kitchen opens directly onto a delightful 43-foot rear garden, ideal for outdoor gatherings or simply enjoying a quiet moment in the fresh air. This property also benefits from parking to the front, adding to the convenience of modern living. Its prime location offers easy access to the vibrant central amenities of Chandler's Ford, as well as the bustling town of Eastleigh and the city of Southampton. For those who commute, the excellent transport links via the M3 and M27 motorways, alongside nearby mainline railway stations and an international airport, make this home a practical choice for busy professionals. The property is offered for sale with no onward chain.

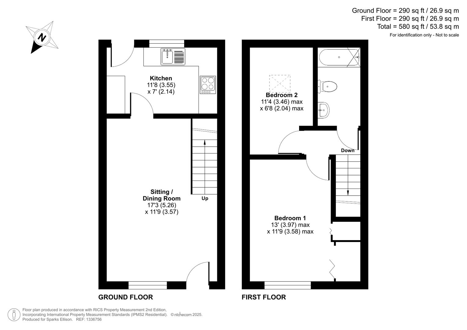
Accommodation -

Ground Floor -

Sitting/Dining Room: - 17'3" x 11'9" (5.26m x 3.57m) Stairs to first floor.

Kitchen: - 11'8" x 7' (3.55m x 2.14m) Built-in oven, built-in electric hob, space for fridge freezer, space and plumbing for washing machine.

First Floor -

Landing: - Access to loft space.

Bedroom 1: - 13' x 11'9" (3.97m x 3.58m) Built-in wardrobe, built-in airing cupboard.

Bedroom 2: - 11'4" x 6'8" (3.46m x 2.04m)

Bathroom: - Comprising bath with shower over, wash hand basin, WC, tiled floor, tiled walls.

Outside -

Front: - Area laid to lawn, shingle bed, pathway to front door.

Rear Garden: - Measures approximately 43' x 13' Area laid to timber deck, area laid to lawn, paved patio area, area laid to shingle.

Parking: - There is allocated parking at the front of the property. This is the middle of three parking spaces on the right as you enter the development. There are also 2 shared parking spaces between the four properties.

Other Information -

Tenure: - Freehold

Approximate Age: - 1988/1990

Approximate Area: - 580sqft/53.8sqm

Sellers Position: - No forward chain

Heating: - Electric storage heaters

Windows: - UPVC double glazed windows

Infant/Junior School: - Fryern Infant/Junior School

Secondary School: - Toynbee Secondary School

Council Tax: - Band B

Local Council: - Eastleigh Borough Council - 02380 688000

Agents Note: - If you have an offer accepted on a property we will need to, by law, conduct Anti Money Laundering Checks. There is a charge of £60 including vat for these checks regardless of the number of buyers involved.

Property Ref: 6224678_34099509

Share:

Similar Properties

Church Road, Bishopstoke, Eastleigh

2 Bedroom End of Terrace House | £260,000

Situated at the top of Old Bishopstoke, this charming two bedroom end of terrace cottage offers the perfect opportunity...

Conway Close, Valley Park, Chandler's Ford

1 Bedroom End of Terrace House | £239,950

Located in Conway Close, Valley Park, this charming end-terrace house presents an excellent opportunity for those lookin...

Knightwood Mews, Valley Park, Chandler's Ford

2 Bedroom Retirement Property | £239,950

An exceptional two bedroom first floor apartment forming part of this exclusive Brendoncare development designed for the...

Ashdown Close, Hiltingbury, Chandler's Ford

3 Bedroom Maisonette | £275,000

Situated in the popular cul-de-sac of Ashdown Close, this charming three-bedroom duplex maisonette boasts well-proportio...

Coach Hill Close, South Millers Dale, Chandler's Ford

2 Bedroom End of Terrace House | £275,000

Situated in the popular cul-de-sac of Coach Hill Close in South Millers Dale, this modern end-terrace house presents an...

Milford Gardens, Chandler's Ford, Eastleigh

3 Bedroom End of Terrace House | £280,000

A three bedroom end of terrace home constructed in the 1960s and conveniently situated in the centre of Chandler's Ford...

Sparks Ellison (Chandler's Ford)

Chandler's Ford, Hampshire, SO53 2GJ

02380 255333

How much is your home worth?

Use our short form to request a valuation of your property.

Request a Valuation

Mortgage Calculator

Amount Borrowed: £
Total Amount Repayable: £
Total Monthly Payment: £
©2025 The Guild of Property Professionals. All rights reserved. Terms and Conditions | Privacy Policy | Cookie Policy | Complaints Policy | Members Login
The Guild of Property Professionals Trading Address: 121 Park Lane, London W1K 7AG. GPEA Limited. Registered in England & Wales.  Company No: 02819824.  Registered Office Address: 2 St. Stephen's Court, St. Stephen's Road, Bournemouth, Dorset, England, BH2 6LA.  VAT Registration No: 576 8795 61
Book a Property Valuation Update Cookies Preferences