Conway Close, Valley Park, Chandler's Ford

£239,950

1 Bedroom End of Terrace House for sale in Chandler's Ford

1 1 1

Located in Conway Close, Valley Park, this charming end-terrace house presents an excellent opportunity for those looking to create their dream home. With one reception room, one bedroom, and one bathroom, this property is ideal for first-time buyers or those seeking a cosy retreat. The house boasts an attractive design, characteristic of the popular style, and is set in a sought after neighbourhood that offers a sense of community. One of the key advantages of this property is that it comes with no forward chain. While the house is in need of modernisation, this presents a wonderful chance for buyers to personalise the space to their taste and requirements. Additionally, the property includes a garage, providing valuable storage space or the possibility of off-road parking. In summary, this end-terrace house in Valley Park is a promising opportunity for anyone looking to invest in a property with potential. With its attractive features and convenient location, it is sure to appeal to a variety of buyers.

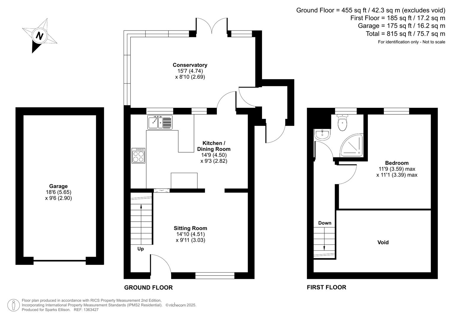
Accommodation -

Ground Floor -

Sitting Room: - 14'10" x 9'11" (4.51m x 3.03m) Stairs to first floor.

Kitchen/Breakfast Room: - 14'9" x 9'3" (4.50m x 2.82m) Built in oven, built in electric hob, fitted extractor hood, space for fridge freezer, space and plumbing for washing machine.

Conservatory: - 15'7" x 8'10" (4.74m x 2.69m) Door to storage cupboard.

First Floor -

Landing: -

Bedroom: - 11'9" x 11'1" (3.59m x 3.39m) A charming galleried room overlooking the sitting room.

Bathroom: - A walk in bath, with seat, set up for disability use, wash hand basin, WC.

Outside -

Front: - Planted open plan garden. Outside storage cupboard housing boiler.

Rear Garden: - Measures approximately 17' x 17' with area laid to shingle, variety of mature plants.

Garage: - With up and over door.

Other Information -

Tenure: - Freehold

Approximate Age: - 1984

Approximate Area: - 75.5sqm/815sqft (Including garage)

Sellers Position: - No forward chain

Heating: - Gas central heating

Windows: - UPVC double glazed windows

Infant/Junior School: - St. Francis Primary School

Secondary School: - Toynbee Secondary School

Council Tax: - Band B

Local Council: - Eastleigh Borough Council - 02380 688000

Agents Note: - If you have an offer accepted on a property we will need to, by law, conduct Anti Money Laundering Checks. There is a charge of £60 including vat for these checks regardless of the number of buyers involved.

Property Ref: 6224678_34231920

Share:

Similar Properties

Knightwood Mews, Valley Park, Chandler's Ford

2 Bedroom Retirement Property | £239,950

An exceptional two bedroom first floor apartment forming part of this exclusive Brendoncare development designed for the...

Parkway Gardens, Chandler's Ford, Eastleigh

2 Bedroom Maisonette | £235,000

Located in Parkway Gardens in the heart of Chandler's Ford, this delightful first-floor maisonette offers a perfect blen...

Shannon Way, Chandler's Ford

2 Bedroom Retirement Property | £235,000

A well presented two bedroom first floor apartment forming part of this exclusive Brendon Care Development designed for...

Church Road, Bishopstoke, Eastleigh

2 Bedroom End of Terrace House | £260,000

Situated at the top of Old Bishopstoke, this charming two bedroom end of terrace cottage offers the perfect opportunity...

Bournemouth Road, Chandler's Ford, Eastleigh

2 Bedroom Terraced House | £260,000

A modern two-bedroom terraced house that presents an excellent opportunity for both first-time buyers and those seeking...

Ashdown Close, Hiltingbury, Chandler's Ford

3 Bedroom Maisonette | £275,000

Situated in the popular cul-de-sac of Ashdown Close, this charming three-bedroom duplex maisonette boasts well-proportio...

Sparks Ellison (Chandler's Ford)

Chandler's Ford, Hampshire, SO53 2GJ

02380 255333

How much is your home worth?

Use our short form to request a valuation of your property.

Request a Valuation

Mortgage Calculator

Amount Borrowed: £
Total Amount Repayable: £
Total Monthly Payment: £
©2025 The Guild of Property Professionals. All rights reserved. Terms and Conditions | Privacy Policy | Cookie Policy | Complaints Policy | Members Login
The Guild of Property Professionals Trading Address: 121 Park Lane, London W1K 7AG. GPEA Limited. Registered in England & Wales.  Company No: 02819824.  Registered Office Address: 2 St. Stephen's Court, St. Stephen's Road, Bournemouth, Dorset, England, BH2 6LA.  VAT Registration No: 576 8795 61
Book a Property Valuation Update Cookies Preferences