A well presented two bedroom first floor apartment forming part of this exclusive Brendon Care Development designed for the over 60's. The residents enjoy a secure setting with a host of facilities and personal care and the apartment itself occupies an attractive position with a balcony overlooking the a lawned area with views to the woodland. The spacious well planned accommodation comprises of a fully fitted kitchen, two double bedrooms and bathroom and is offered for sale with no forward chain. Homeowners within the Brendon Care community benefit from a host of amazing features and services that include pull alarms in each room backed up by 24 hour on call care together with a licensed restaurant, coffee shop, residents lounge, library, shop, hairdressing salon, clubs and activities. The communal areas can be reserved for functions and the restaurant can provide catering and several days a week hairdressers, beauticians and chiropodists visit the complex for appointments. Residents also enjoy maintenance free living with an onsite handyman who can change light bulbs, check smoke alarms and look after all appliances in the kitchen together with window cleaning being
included.
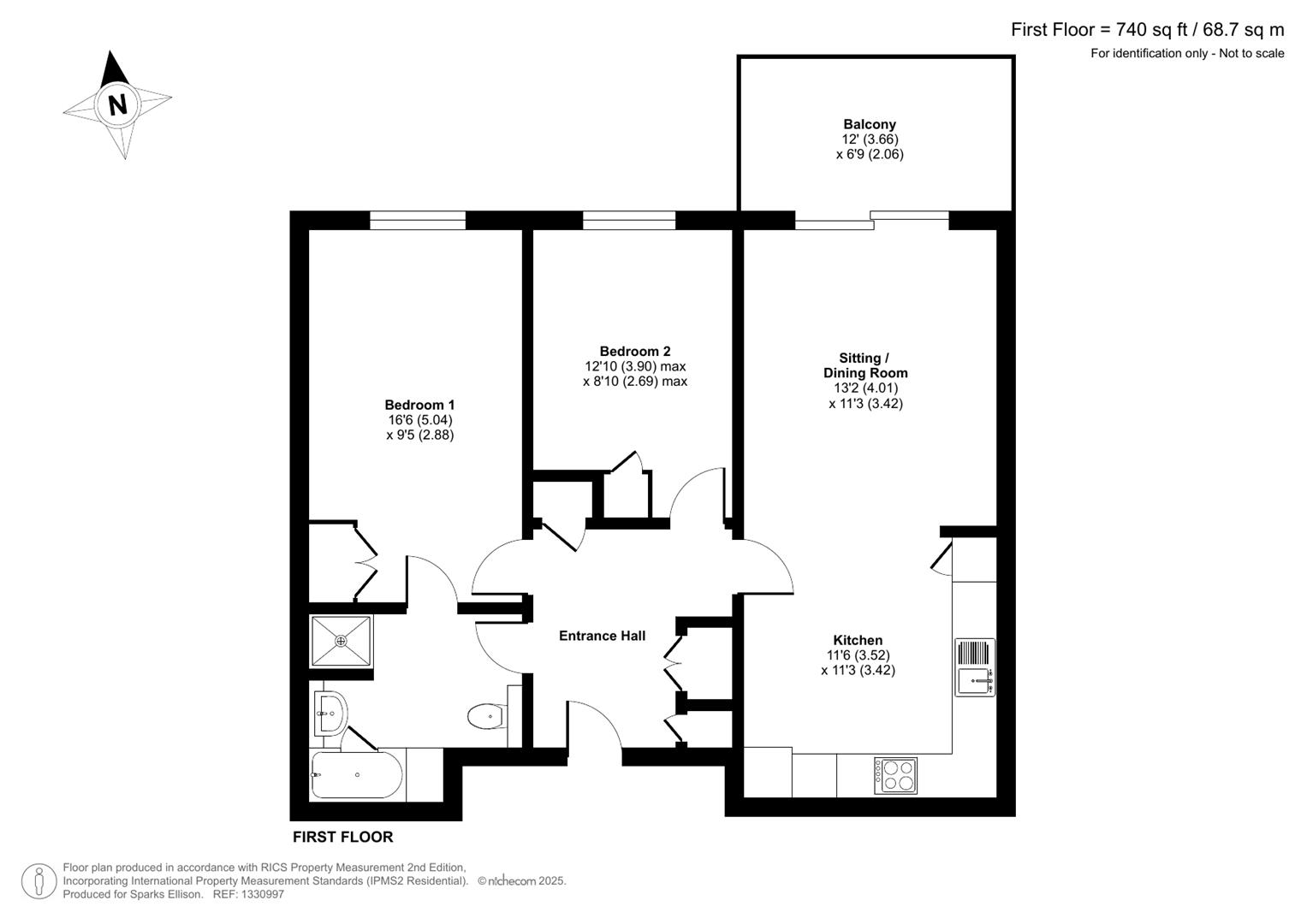
Accommodation -
Reception Hall: - Double coats cupboard, separate storage cupboard, cupboard housing water tank.
Sitting Room: - 13'2" x 11'3" (4.01m x 3.42m) Fireplace with inset electric fire, patio doors to balcony.
Balcony: - 12' x 6'9" (3.66m x 2.06m)
Kitchen/Dining Room: - 11'6" x 11'2" (3.52m x 3.42m) A comprehensive range of fitted units, electric oven, electric hob with extractor hood over, microwave, integrated washer dryer, dishwasher, fridge/freezer.
Bedroom 1: - 16'6" x 9'5" (5.04m x 2.88m) Fitted wardrobe.
Bedroom 2: - 12'10" x 8'10" (3.90m x 2.69m) Fitted wardrobe.
Bathroom: - 9'6" x 8'2" (2.90m x 2.49m) White suite with chrome fitments comprising walk in bath with seat, separate walk in shower area, wash basin, wc.
Outside -
Front: - Knightwood Mews occupies delightful communal gardens for residents to enjoy.
Parking: - Resident and visitor parking available.
Other Information -
Tenure: - Leashold
Term Of Lease - 125 years from 2006
Maintenance Charge: - £940.00 per month, billed at end of month
Approximate Age: - 2006
Approximate Area: - 68.7sqm/740sqft
Sellers Position: - No forward chain
Heating: - Electric underfloor and ceiling heating
Windows: - UPVC double glazed windows
Local Council: - Test Valley Borough Council - 01264 368000
Council Tax: - Band D
Agents Note: - If you have an offer accepted on a property we will need to, by law, conduct Anti Money Laundering Checks. There is a charge of £60 including vat for these checks regardless of the number of buyers involved.
Property Ref: 6224678_34073070
Parkway Gardens, Chandler's Ford, Eastleigh
2 Bedroom Maisonette | £235,000
Located in Parkway Gardens in the heart of Chandler's Ford, this delightful first-floor maisonette offers a perfect blen...
Knightwood Mews, Shannon Way Valley Park, Chandlers Ford
2 Bedroom Retirement Property | £230,000
A well presented two bedroom first floor apartment forming part of this exclusive Brendon Care Development designed for...
Charnwood Crescent, Hiltingbury, Chandler's Ford
2 Bedroom Maisonette | £230,000
Sitting within Hiltingbury and Thornden catchment, this fantastic ground floor two bedroom maisonette is perfect for a v...
Conway Close, Valley Park, Chandler's Ford
1 Bedroom End of Terrace House | £239,950
Located in Conway Close, Valley Park, this charming end-terrace house presents an excellent opportunity for those lookin...
Knightwood Mews, Valley Park, Chandler's Ford
2 Bedroom Retirement Property | £239,950
An exceptional two bedroom first floor apartment forming part of this exclusive Brendoncare development designed for the...
Church Road, Bishopstoke, Eastleigh
2 Bedroom End of Terrace House | £260,000
Situated at the top of Old Bishopstoke, this charming two bedroom end of terrace cottage offers the perfect opportunity...
Sparks Ellison (Chandler's Ford)
Chandler's Ford, Hampshire, SO53 2GJ
Use our short form to request a valuation of your property.
Request a Valuation