Mermaid Court, Christian Malford

£575,000
SSTC
This property listing is now SSTC

4 Bedroom Semi-Detached House for sale in Christian Malford

1 4 3
  • Superbly appointed semi-detached house
  • Immaculate, tastefully presented accommodation
  • Built in 2023 to an individual design
  • Air source heat pump and underfloor heating
  • Kitchen/dining room with integrated appliances
  • Dual-aspect living room
  • 4 bedrooms, 3 bathrooms
  • Sunny south-east garden
  • Parking and garage
  • Exclusive small development on the edge of the village

Description

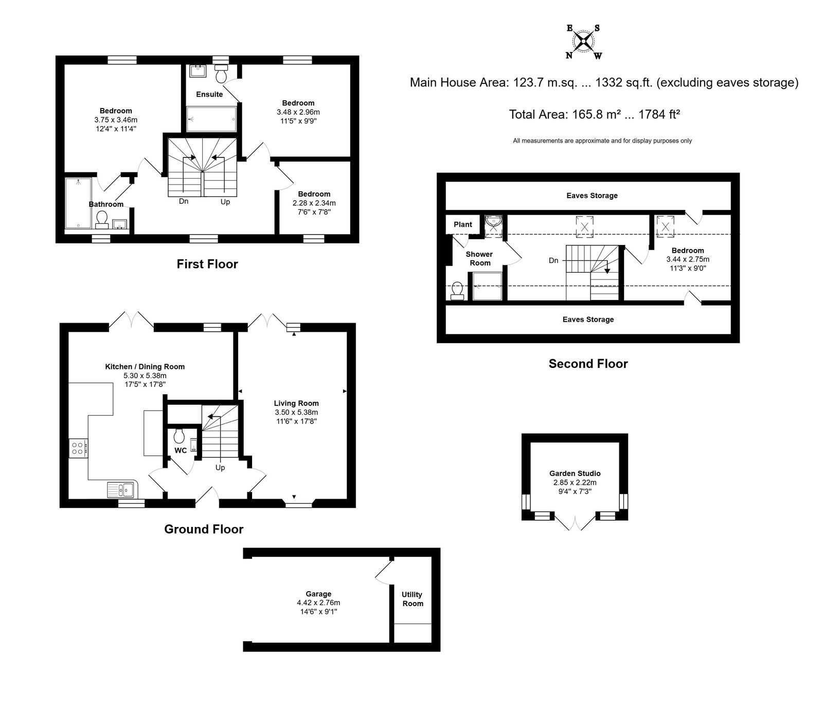
The Malthouse is an immaculate semi-detached house positioned on the edge of the village of Christian Malford. Completed in 2023, Mermaid Court is an exclusive small development comprising only four individual modern houses set around a very attractive courtyard style arrangement of the original Grade II listed Mermaid Inn which has been converted into three further homes. The property has been completed to an excellent specification boasting an air source heat pump and underfloor heating across the ground floor while the current owners have made fantastic further upgrades such as Karndean flooring and fitted shutters. Spanning over three floors, the accommodation is tastefully decorated and presented to be 'move in ready', extending to around 1,332 sq.ft. 

The ground floor opens to a central entrance hall with a WC off and galleried stairs rising to the first floor. Both the living room and kitchen/dining room are dual-aspect and have been designed to flow out to the garden through double doors offering fashionable 'inside-outside' living. The spacious kitchen/dining room is configured in an L-shape and fitted with Quartz worktops and Bosch appliances including a dishwasher, oven and integrated combi oven/microwave, fridge/freezer and hob, as well as a breakfast bar. On the first floor, there are three bedrooms, two of which with en-suites. The family bathroom has been upgraded to a stylish shower room and serves as a Jack & Jill en-suite. On the top floor there is a further bedroom and shower room, plus a large landing providing a versatile area making the whole an ideal teenager/child's floor. Eaves running along the entire length of the house offers great storage. 

The property is tucked away within a corner plot with a good degree of privacy. A garage in front provides parking as well as the driveway. Within the garage there is a utility room and attic storage above. The rear garden is south-east facing and has been attractively landscaped for easy low maintenance with patio and a raised decked terrace, fully enclosed by timber fencing. Included within the garden is a superb studio which is insulated and connected with power and lighting. 

Situation
Christian Malford is considered to be one of the most sought after villages in North Wiltshire. It benefits from excellent amenities to include a highly regarded primary school, shop/post office, village pub, church, village hall and local recreation ground. Couple this with a thriving local community as well as access to Chippenham approx. 6 miles (mainline railway links to London Paddington) and Malmesbury 8 miles. The M4 Motorway is only 4 miles and communication by road is excellent with many different options. Larger towns/cities of Bath, Bristol & Swindon are within easy commuting distance. The highly regarded secondary schools of Hardenhuish and Sheldon in Chippenham can be accessed via bus from the village.
Additional Information
The property is Freehold with air source heat pump heating, mains drainage, water and electricity. There is a management fee for the close of c.£180 p/a. Cat 6 ultrafast broadband is available and there are some limitations to mobile phone coverage. Information taken from the Ofcom mobile and broadband checker, please see the website for more information. Wiltshire Council Tax Band E.

Important Information

  • This is a Freehold property.
  • This Council Tax band for this property is: E

Property Ref: 1218959

Share:

Similar Properties

Foscote, Grittleton

2 Bedroom Semi-Detached House | £550,000

With views over the adjoining farmland, this pretty semi-detached period cottage occupies a generous 0.21 acre corner pl...

Manor Close, Sherston

3 Bedroom Detached House | £550,000

Having been wholly transformed both inside and out, this detached house is very impressive with a fantastic configuratio...

Magdalen Road, Tetbury

4 Bedroom Semi-Detached House | £550,000

Situated within a popular no-through road close to amenities, a semi-detached family-sized home with light-filled living...

High Street, Sherston

3 Bedroom Terraced House | £595,000

Situated in the highly sought-after High Street in Sherston within a moments walk of its many amenities, a lovely period...

Hollis Gardens, Luckington

3 Bedroom Detached House | £595,000

Situated within a desirable mature close, this detached modern house has extended accommodation with further potential t...

The Berrells, Tetbury

3 Bedroom Detached House | £595,000

Situated within this highly desirable private no-through lane beside the Cutwell valley, this detached chalet home enjoy...

James Pyle & Co (Sherston)

Swan Barton, Sherston, Wiltshire, SN16 0LJ

01666 840886

How much is your home worth?

Use our short form to request a valuation of your property.

Request a Valuation

Mortgage Calculator

Amount Borrowed: £
Total Amount Repayable: £
Total Monthly Payment: £
©2026 The Guild of Property Professionals. All rights reserved. Terms and Conditions | Privacy Policy | Cookie Policy | Complaints Policy | Members Login
The Guild of Property Professionals Trading Address: 121 Park Lane, London W1K 7AG. GPEA Limited. Registered in England & Wales.  Company No: 02819824.  Registered Office Address: 2 St. Stephen's Court, St. Stephen's Road, Bournemouth, Dorset, England, BH2 6LA.  VAT Registration No: 576 8795 61
Book a Property Valuation Update Cookies Preferences