Trewint, Launceston, Cornwall

£525,000

4 Bedroom Detached House for sale in Cornwall

1 4 2
  • Four bedroom detached barn conversion.
  • Retaining a wealth of character throughout.
  • High quality
  • free flowing accommodation.
  • Two ground floor double bedrooms.
  • Well fitted kitchen with ample storage.
  • Spacious lounge/dining room.
  • Utility area.
  • Ground floor shower room/WC and first floor bathroom/WC.
  • Multi zone air source underfloor heating.

Four bedroom detached barn conversion.
Retaining a wealth of character throughout.
High quality, free flowing accommodation.
Two ground floor double bedrooms.
Well fitted kitchen with ample storage.
Spacious lounge/dining room.
Utility area.
Ground floor shower room/WC and first floor bathroom/WC.
Multi zone air source underfloor heating.
Level, enclosed rear lawned garden.
Side patio area and gravelled off road parking.
EV charging point.
Convenient access to extensive village amenities.
Many free standing furniture fitments available by separate negotiation.
Offered for sale with no onward chain.

This former cattle barn was converted by our clients in recent years and has, for many years, served as a valuable holiday let. Now offered for sale with no onward chain, the barn provides spacious and flexible four bedroom accommodation with bedrooms on both the ground and first floors.

The internal finish is of a high standard, with modern conveniences blending seamlessly with original features, allowing the building's heritage and history to shine through. From a bright and sociable kitchen, fitted with a wide range of units and integrated appliances, to a cosy sitting area and striking A-frame beams, the property would suit a broad range of buyers.

Superior fixtures include a luxurious bathroom featuring a high level WC and his and hers wash hand basins. The property is warmed via air source underfloor multi zone heating beneath the acacia engineered flooring.

A particular highlight is the dual aspect first floor bedroom with Juliet balcony, offering far reaching views across to the peaks of Bodmin Moor, arguably the best outlook in the house.

The gardens provide space for both relaxation and recreation, while the gravelled driveway offers generous off road parking and includes an EV charging point.
   
The attractive Moorland village of Altarnun is within one mile, boasting amenities including a Post Office facility, village shop, County Primary School and Parish Church famously known as the "Cathedral On The Moor". From this property miles upon miles of walks can be enjoyed over Bodmin Moor. The ancient former market town of Launceston lies within ten miles to the East and offers a range of shopping, commercial, educational and recreational facilities and is convenient to the A30 trunk road giving access to Truro and West Cornwall in one direction and Exeter and beyond in the opposite direction.

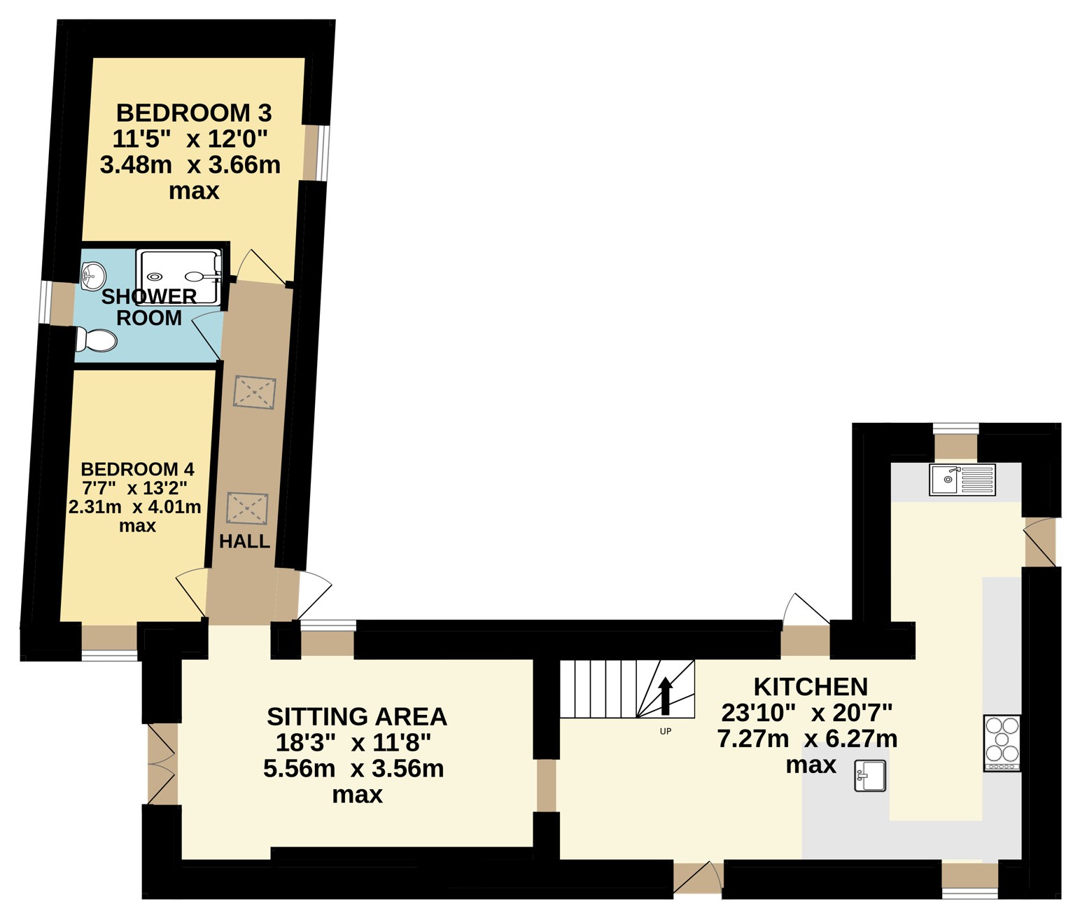
Kitchen 23'10" (7.26m) max x 20'7" (6.27m) max.

Sitting Room 18'3" (5.56m) max x 11'8" (3.56m) max.

Bedroom 3 11'5" (3.48m) max x 12' (3.66m) max.

Bedroom 4 7'7" max x 13'2" max (2.3m max x 4.01m max).

Shower Room/WC 7'7" x 6'2" (2.3m x 1.88m).

Bedroom 1 14'5" x 10'7" (4.4m x 3.23m).

Bedroom 2 7'1" (2.16m) max x 10'7" (3.23m) max.

Bathroom/WC 14' x 4'3" (4.27m x 1.3m).

SERVICES    Mains water, electricity and drainage.

COUNCIL TAX    Current rateable value of £3,000.
Council Tax Band: TBA.

TENURE    Freehold.

VIEWING ARRANGEMENTS    Strictly by appointment with the selling agent.

From Launceston proceed along the A388 (Western Road). Upon reaching the Pennygillam Roundabout take the first left hand exit signposted towards Bodmin heading East bound along the A30 dual carriage way. Proceed for approximately 9 miles passing the service area at Plusha. Take the next left hand turning signposted towards Altarnun/Trewint and Five Lanes. Continue under the A30 bearing left at the T junction leading into the village into Trewint. Continue into Trewint where The Old Cattle Barn will be identified on the right hand side.
   
what3words.com - ///node.gears.handyman

Important Information

  • This is a Freehold property.

Property Ref: 55816_LAU230207

Share:

Similar Properties

Lawhitton, Launceston, Cornwall

4 Bedroom Detached House | £525,000

This detached spacious house has been sympathetically modernised with three reception rooms, a fitted kitchen and large...

Laneast, Launceston, Cornwall

3 Bedroom Detached Bungalow | £499,950

A substantial three double bedroom modern bungalow in need of modernisation. The property which is offered for sale with...

Mayne Close, Launceston, Cornwall

4 Bedroom Detached House | £499,000

An executive, four bedroom, two en-suite, family house situated within a highly regarded area close to Launceston town w...

Ashmill, Ashwater, Beaworthy

4 Bedroom Semi-Detached House | £530,000

** OPEN TO OFFERS ** A substantial and unique modern conversion situated near to the popular West Devon village of Ashwa...

Badharlick, Egloskerry, Launceston

3 Bedroom Detached House | Guide Price £530,000

Located towards the end of a no through lane is this delightful character home with outstanding views. The spacious prop...

Dunheved Road, Launceston, Cornwall

3 Bedroom Detached Bungalow | £535,000

A brand new three bedroom (one en-suite) spacious detached bungalow with premium specification located on a large corner...

Webbers Launceston (Launceston)

Launceston, Cornwall, PL15 8AD

01566 776211

How much is your home worth?

Use our short form to request a valuation of your property.

Request a Valuation

Mortgage Calculator

Amount Borrowed: £
Total Amount Repayable: £
Total Monthly Payment: £
©2026 The Guild of Property Professionals. All rights reserved. Terms and Conditions | Privacy Policy | Cookie Policy | Complaints Policy | Members Login
The Guild of Property Professionals Trading Address: 121 Park Lane, London W1K 7AG. GPEA Limited. Registered in England & Wales.  Company No: 02819824.  Registered Office Address: 2 St. Stephen's Court, St. Stephen's Road, Bournemouth, Dorset, England, BH2 6LA.  VAT Registration No: 576 8795 61
Book a Property Valuation Update Cookies Preferences