Blunstone Close, Crewe

Fixed Price
£350,000
SSTC
This property listing is now SSTC

4 Bedroom Detached House for sale in Crewe

4
  • Beautifully presented detached family home
  • 4 Double bedrooms
  • En-Suite To Master
  • Cloakroom
  • Spacious family dining kitchen
  • Fully landscaped gardens
  • Viewings Highly Recommended

We are delighted to offer for sale this stunning family home in Blunstone Close. Having been beautifully updated to an incredible standard the property in brief comprises: 4 double bedrooms, 2 bathrooms, family dining kitchen, superb sitting room with media wall, landscaped gardens and off road parking for several vehicles.

Council Tax Band: D (Cheshire East)
Tenure: Freehold
Parking options: Driveway
Garden details: Rear Garden
Electricity supply: Mains
Heating: Gas Mains
Water supply: Mains
Sewerage: Mains

Access
Approached over a tarmacadam driveway leading to the entrance porch and a composite door providing access into:

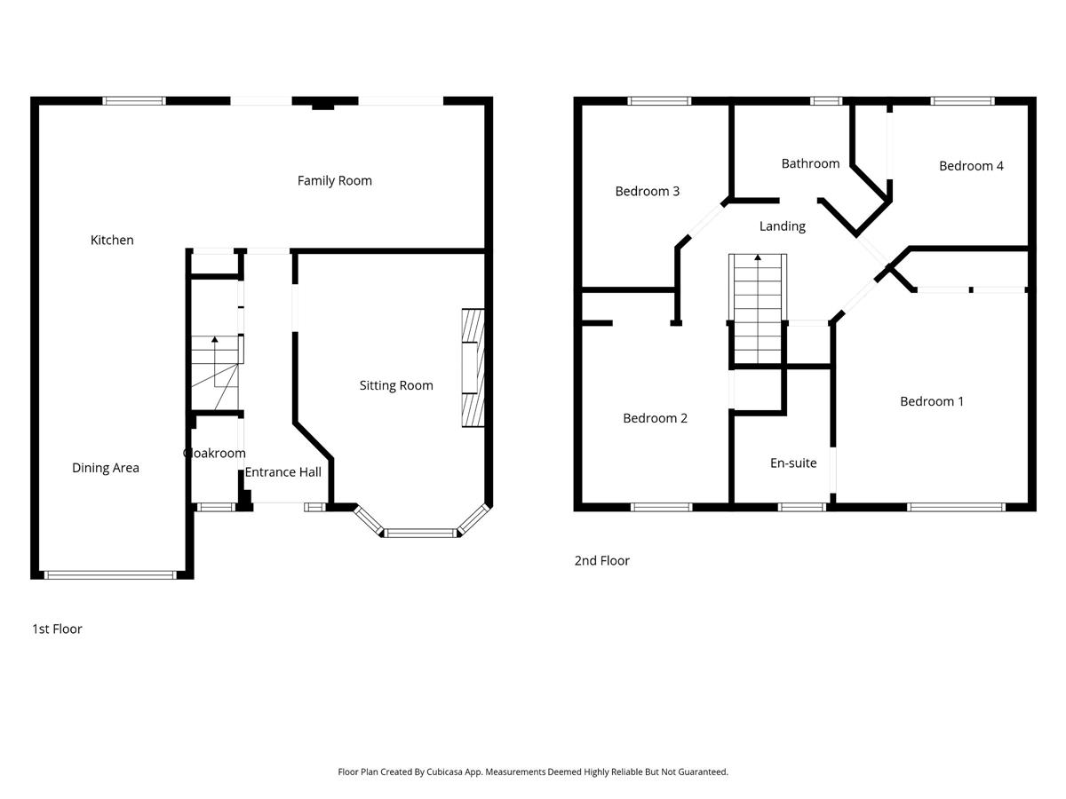
Reception Hall
Having polished tile flooring throughout, double panelled radiator, stairs rising to the first floor landing, bespoke understairs storage cupboards. Doors off to all further room and also into:

Cloakroom
Fitted with a 2 piece suite comprising: Low level, push button W.C., vanity unit wash hand basin with mixer tap over and storage drawers below, uPvc modeaty glazed window to front elevation. Chrome ladder style heated towel rail. Polished tile flooring continued through from the reception hall.

Sitting Room w: 3.45m x l: 5.08m (w: 11' 4" x l: 16' 8")
Superb, spacious sitting room with media wall with contemporary multi flame, log effect, remote control fire, shelving with concealed lighting, uPvc double glazed, walk in bay window to the front elevation having Plantation shutters, oak flooring, double panelled radiator.

Open plan living area & Kitchen w: 5.52m x l: 8.62m (w: 18' 1" x l: 28' 3")
To the kitchen area the space is fitted with a range of soft close, wall, base and drawer units with quartz effect worksurfaces over incorporating a stainless steel sink unit with mixer tap, integrated washer/dryer, integrated dishwasher, integrated fridge, integrated freezer, integrated electric oven and microwave/combination oven, four ring induction hob, inset spotlighting, polished tiled flooring continued through from the reception hall. Built in breakfast bar. uPvc double glazed windows to front elevation again having Plantation shutters. Vintage style wall mounted radiator. uPvc double glazed windows to rear elevation, uPvc French doors to rear elevation and uPvc double glazed Bi-fold doors to rear elevation. Built in wine fridge with additional shelving over. Ample room for dining table and chairs and having fitted banquet seating.

Stairs
Rising to first floor, galleried landing with loft access point, double panelled radiator and storage cupboard with shelving. Doors to all bedrooms and family bathroom.

Bedroom 1 w: 3.54m x l: 4.27m (w: 11' 7" x l: 14' )
Spacious double room with built in double wardrobes, uPvc double glazed windows to front elevation having Plantation shutters, double panelled radiator and door into:

En-suite
Fitted with a 3 piece suite comprising vanity unit wash hand basin with mixer tap over with acoustic panelling splashback and storage drawers and shelving below, push button, concealed cistern W.C., walk in shower cubicle with glazed pivot door and housing a mixer shower with rainfall and additional hand held shower attachment, wall mounted shaver point, double radiator, uPvc modesty glazed window to front elevation. Inset spotlighting.

Bedroom 2 w: 2.7m x l: 3.27m (w: 8' 10" x l: 10' 9")
A further double room with uPvc double glazed window to front elevation having Plantation shutters, built in storage cupboard and built in double wardrobe. Double panelled radiator.

Bedroom 3 w: 2.7m x l: 3.37m (w: 8' 10" x l: 11' 1")
Another double room having double radiator and uPvc double glazed window to rear elevation.

Bedroom 4 w: 3.09m x l: 2.87m (w: 10' 2" x l: 9' 5")
4th double room having built in double wardrobe, uPvc double glazed windows to rear elevation, double panelled adiator.

Bathroom
Fitted with a 4 piece suite comprising low level W.C., pedestal wash hand basin with mixer tap and complimentary splashback tiling, panelled bath with mixer tap and hand held shower over, walk in shower cubicle with glazed pivot door and housing a mixer shower.uPvc modesty glazed window to rear elevation, complimentary tiling, Radiator. Inset spotlighting.

Externally
To the front of the property a tarmacadam driveway provides ample room for several vehicles and leads to the front door. Outside lighting. The rear garden has been beautifully landscaped with fenced boundaries all round, mainly laid to lawn and having resin bond patio area allowing ample room for garden furniture and outside entertaining. Raised gravel borders housing a variety of shrubs and plants. Timber shed. Outside tap. Access path to the side of the property leading to the front garden.

Energy Performance
Current rating is 80 with a potential of 84.

Viewings
Viewings are strictly by appointment only. Please call or email the office to arrange. Thank you.

Looking to sell?
If you are thinking of selling please call or email the office to arrange a free Market Appraisal. Thank you.

Important Information

  • This is a Freehold property.

Property Ref: RS0737

Share:

Similar Properties

Love Lane, Betchton, Sandbach

4 Bedroom Semi-Detached House | Offers Over £350,000

A spacious four bedroom semi detached family home situated in a rural setting on the outskirts of Sandbach. The property...

Mill Hill Drive, Sandbach

4 Bedroom Detached House | £350,000

An opportunity to purchase a substantial property requiring modernisation on a generous corner plot in a highly regarded...

Waterloo Road, Crewe

3 Bedroom Detached Bungalow | Offers in region of £350,000

Situated in the heart of the popular village of Haslington, this deceptively spacious dormer bungalow is offered for sal...

Old Willow Barns, Congleton Road, Sandbach

3 Bedroom Semi-Detached House | £375,000

Stunning 3 double bedroomed, Grade 2 listed barn conversion with views over the rolling Cheshire countryside. Seamlessly...

Emes Close, Crewe

4 Bedroom Detached House | Offers in region of £380,000

A beautifully presented detached family home in the popular village of Shavington.

Main Road, Shavington, Crewe

3 Bedroom Cottage | Offers in region of £400,000

WE ARE DELIGHTED TO HAVE BEEN INSTRUCTED TO OFFER FOR SALE A PIECE OF SHAVINGTON HISTORY. One of a row of three cottages...

Wheatcroft & Lloyd (Sandbach)

Sandbach, Cheshire, CW11 1AL

01270 382283

How much is your home worth?

Use our short form to request a valuation of your property.

Request a Valuation

Mortgage Calculator

Amount Borrowed: £
Total Amount Repayable: £
Total Monthly Payment: £
©2026 The Guild of Property Professionals. All rights reserved. Terms and Conditions | Privacy Policy | Cookie Policy | Complaints Policy | Members Login
The Guild of Property Professionals Trading Address: 121 Park Lane, London W1K 7AG. GPEA Limited. Registered in England & Wales.  Company No: 02819824.  Registered Office Address: 2 St. Stephen's Court, St. Stephen's Road, Bournemouth, Dorset, England, BH2 6LA.  VAT Registration No: 576 8795 61
Book a Property Valuation Update Cookies Preferences