Castle Hill Gardens, Torrington, Devon

Offers in excess of
£270,000
SSTC
This property listing is now SSTC

3 Bedroom House for sale in Devon

1 3 1
  • 3 BEDROOMS
  • INTEGRAL GARAGE
  • LARGE GARDEN TO REAR
  • FRONT GARDEN
  • UTILITY ROOM
  • DOWNSTAIRS WC
  • SHORT WALK TO TOWN CENTRE
  • CLOSE TO SCHOOLS & DOCTORS SURGERIES

3 BEDROOMS
INTEGRAL GARAGE
LARGE GARDEN TO REAR
FRONT GARDEN
UTILITY ROOM
DOWNSTAIRS WC
SHORT WALK TO TOWN CENTRE
CLOSE TO SCHOOLS & DOCTORS SURGERIES

Nestled in a sought after neighbourhood of Castle Hill Gardens this charming link detached house offers a perfect blend of modern comfort. Boasting three well appointed bedrooms, this property is ideal for families looking to settle in a peaceful and friendly community.

The house features a beautiful garden, perfect for outdoor relaxation and entertaining guests. Additionally, an integral garage provides convenient parking and extra storage space. The interior is thoughtfully designed with a spacious layout, allowing for ample natural light to flow through the living spaces.

Situated in a prime location, residents will enjoy easy access to local amenities, schools, and transport links, making daily life convenient and hassle free. Don't miss out on the chance to make this delightful house your new home.

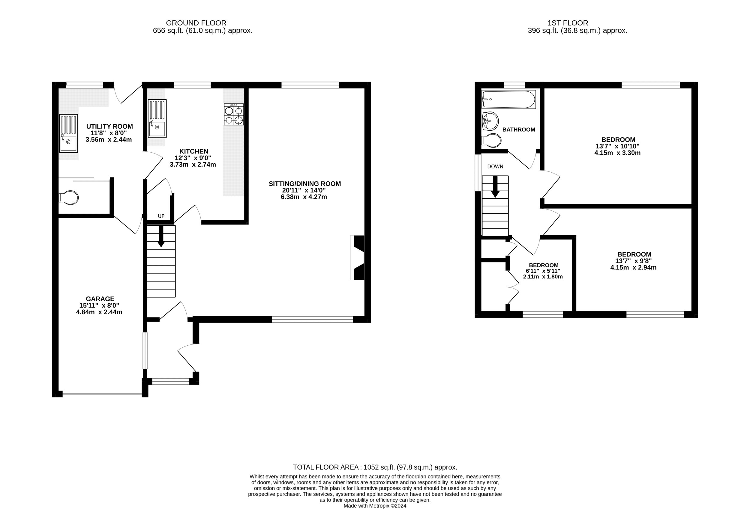
Sitting / Dining Room 20'11"x14' (6.38mx4.27m).

Kitchen 12'3"x9' (3.73mx2.74m).

Utility Room 11'8"x8' (3.56mx2.44m).

Garage 15'11"x8' (4.85mx2.44m).

Bedroom 13'7"x10'10" (4.14mx3.3m).

Bedroom 13'7"x9'8" (4.14mx2.95m).

Bedroom 6'11"x5'11" (2.1mx1.8m).

EPC    C

Council Tax    C

Tenure    Freehold

Viewing Arrangements    Strictly by appointment only with sole selling agent

Services    All mains services connected. We encourage you to check before viewing a property the potential broadband speeds and mobile signal coverage. You can do so by visiting https://checker.ofcom.org.uk

From Torrington town centre take the Well Street exit and turn right at the T junction with New Road. Take the next right turn into Well Park Road and immediately left into Castle Hill Gardens. Take the first left and the property will be found on the left hand side . What3words ///epic.informer.carbonate

Important Information

  • This is a Freehold property.

Property Ref: TOR250151

Share:

Similar Properties

Castle Hill Gardens, Torrington, Devon

3 Bedroom Detached House | Guide Price £270,000

Three bedroom detached home set at the end of a quiet cul de sac on a corner plot, within easy walking distance of Great...

Beaford, Winkleigh, Devon

4 Bedroom Terraced House | Guide Price £270,000

A charming period home in the SOUGHT AFTER VILLAGE of Beaford, combining CHARACTER FEATURES with modern ECO-FRIENDLY UPG...

Burwood Road, Torrington, Devon

4 Bedroom Semi-Detached House | Guide Price £270,000

Spacious 4 bedroom semi-detached family home, located in a prime position within Torrington. Offering a private garden t...

The Village, Wembworthy, Chulmleigh

3 Bedroom Semi-Detached House | Guide Price £275,000

Charming three bedroom semi detached character cottage set in the picturesque village of Wembworthy, surrounded by the D...

Black Torrington, Beaworthy, Devon

6 Bedroom Equestrian Facility | Guide Price £275,000

Set in a semi rural location, this is a WONDERFUL OPPORTUNITY awaiting someone to CONVERT a former agricultural steel fr...

Whites Lane, Great Torrington, Devon

4 Bedroom House | Guide Price £290,000

Set within the heart of the popular market town of Great Torrington this home presents an ideal opportunity for someone...

Webbers Torrington (Torrington)

Torrington, Devon, EX38 8HN

01805 624334

How much is your home worth?

Use our short form to request a valuation of your property.

Request a Valuation

Mortgage Calculator

Amount Borrowed: £
Total Amount Repayable: £
Total Monthly Payment: £
©2026 The Guild of Property Professionals. All rights reserved. Terms and Conditions | Privacy Policy | Cookie Policy | Complaints Policy | Members Login
The Guild of Property Professionals Trading Address: 121 Park Lane, London W1K 7AG. GPEA Limited. Registered in England & Wales.  Company No: 02819824.  Registered Office Address: 2 St. Stephen's Court, St. Stephen's Road, Bournemouth, Dorset, England, BH2 6LA.  VAT Registration No: 576 8795 61
Book a Property Valuation Update Cookies Preferences