Exeter Road, Dawlish, EX7

£205,000

2 Bedroom Cottage for sale in Exeter Road

1 2 1

Period end of terrace Grade II listed thatched cottage a few yards from the town centre, railway station and beach. This charming property also offers a sunny garden and parking. Sitting/Dining Room, Kitchen Utility, Lobby, 2 Bedrooms, Shower Room. Tenure: Freehold. Council Tax Band: C. EPC: D

Location: The property offers a convenient location a short walk from the town centre which offers a range of independent shops, eateries and pubs. Also on the doorstep is the beach, mainline railway station and regular bus services.

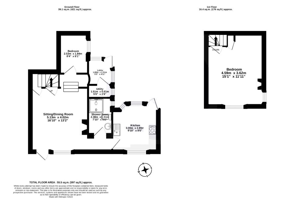
Accommodation: The cottage retains its period charm with beam ceilings and is principally arranged with the rooms on the ground floor. Entry to the property is into the sitting/dining room which has wood flooring and feature fireplace. The country style kitchen is fitted with a range of base and wall units with wood effect work surfaces and space for appliances. This double aspect room also has a glazed door to the rear garden. There is a useful utility with plumbing for washing machine and a lobby area has a stable door opening to the garden.
A single bedroom has a window overlooking the garden. The shower room is fitted with a white suite with shower enclosure with mains shower.
A staircase from the sitting room leads up to the main bedroom which is an interesting double room with beams and feature fireplace with timber mantle and slate hearth.

Outside: The garden rises to the rear of the property where it enjoys a sunny aspect from a decked area where there is also a small log cabin. There are a variety of mature shrubs and plants and at a lower level is a paved patio area.

Parking: To the side of the property is a hardstanding parking area for one vehicle.

Measurements

Sititng Room: 5.13m x 4.02m (16'10" x 13'2")

Kitchen: 3.00m x 2.90m (9'10" x 9'6")

Utility: 5'0" x 2'8" (1.52m x 0.81m)

Lobby: 5'3" x 4'11" (1.60m x 1.50m)

Bedroom 2: 8'4" x 6'1" (2.54m x 1.85m)

Shower Room: 2.39m x 1.51m (7'10" x 4'11")

First Floor

Bedroom 1: 15'1" x 11'11" (4.60m x 3.63m)

Important Information

  • This is a Freehold property.

Property Ref: FAW004317

Share:

Similar Properties

Priory Park Road, Dawlish, EX7

3 Bedroom Apartment | £200,000

NO ONWARD CHAIN. A stunning ground floor apartment situated just off the town centre with the advantage of its own priva...

South Town Cottages, Kenton, EX6

2 Bedroom Terraced House | £199,950

A 2 double bedroom grade II listed thatched cottage with parking situated in the popular village of Kenton within walkin...

Barton Villas, Dawlish, EX7

3 Bedroom Flat | £185,000

*NO ONWARD CHAIN* Extremely spacious first floor flat situated in a well regarded and convenient area of town. Reception...

Morningside, Dawlish, EX7

2 Bedroom Semi-Detached House | £210,000

Well presented semi detached house enjoying an excellent position at the end of a cul-de-sac. The accommodation offers g...

Taylor Close, Dawlish, EX7

2 Bedroom House | £210,000

A smart 2 bedroom corner link house benefitting from a good size garden, parking, gas central heating, uPVC double glaze...

Oakland Walk, Dawlish, EX7

2 Bedroom Bungalow | £224,950

NO ONWARD CHAIN. A fantastic opportunity to purchase this two-bedroom bungalow situated within the popular Oaklands deve...

Fraser & Wheeler (Dawlish) (Dawlish)

Dawlish, Devon, EX7 9HB

01626 862379

How much is your home worth?

Use our short form to request a valuation of your property.

Request a Valuation

Mortgage Calculator

Amount Borrowed: £
Total Amount Repayable: £
Total Monthly Payment: £
©2026 The Guild of Property Professionals. All rights reserved. Terms and Conditions | Privacy Policy | Cookie Policy | Complaints Policy | Members Login
The Guild of Property Professionals Trading Address: 121 Park Lane, London W1K 7AG. GPEA Limited. Registered in England & Wales.  Company No: 02819824.  Registered Office Address: 2 St. Stephen's Court, St. Stephen's Road, Bournemouth, Dorset, England, BH2 6LA.  VAT Registration No: 576 8795 61
Book a Property Valuation Update Cookies Preferences