3 Newtownards Road

Offers in region of
£549,950

5 Bedroom House for sale in Greyabbey

3 5 3

An ideal opportunity to acquire a truly exceptional detached family home, this property perfectly showcases how to tastefully renovate and modernise while retaining the character and charm associated with homes of this era. It delivers everything expected from a residence of this calibre- and more.

Bright, spacious, and flexible, the accommodation adapts easily to various lifestyles. The ground floor features a welcoming drawing room with attractive granite fireplace, open fire, and mature outlook. A stunning kitchen includes a wide range of bespoke hand-painted solid wood units, granite worktops, and quality integrated appliances, opening via archway to a cosy family room with feature electric fire and dual aspect windows. A formal dining room with views of the mature front garden completes this level.

Upstairs, the home offers three well-proportioned bedrooms. The main bedroom includes a built-in speaker system, mature outlook, and en suite shower room. A family bathroom features a four-piece suite with freestanding claw-foot roll-top bath and separate shower. On the lower level are two further bedrooms, including a guest suite with en suite and built-in speaker system- each with access to private courtyards.

The property sits on a mature site of around one-third of an acre, with beautifully landscaped gardens to the front, side, and rear, filled with colourful plants, trees, and shrubs. The enclosed rear garden is ideal for children, entertaining, or relaxing outdoors. Ample parking is available via front and side driveways- suitable for multiple vehicles, caravans, boats, or horse boxes- finished with brick paviour. Wrought iron gates lead to a garage with home office above and two large outbuildings.

Further features include oil-fired central heating, sliding sash double-glazed windows, utility room, cloakroom with WC, working window shutters, cornice ceilings, and a stained glass window. Convenient to Greyabbey and surrounding towns.

.Outstanding Detached Family Home
.Arguably One of the Finest Examples of How to Renovate and Modernise a Property Yet Retain a Lot of the Character Associated with Properties of This Era
.Bright, Spacious and Versatile Accommodation
.Drawing Room with Attractive Granite Fireplace and Hearth, Open Fire, Cornice Ceiling, Ceiling Rose, Dual Aspect Windows and Mature Outlook
.Superb Fitted Kitchen with Range of Bespoke Hand Painted Solid Wooden Units, Granite Work Surfaces and Range of High Quality Integrated Appliances
.Kitchen Has Archway to Family Room with Feature Electric Fire, Dual Aspect Windows, Cornice Ceiling and Ceiling Rose
.Separate Utility Room
.Dining Room with Mature Outlook to Front Garden
.Up to Five Well Proportioned Bedrooms Including Main Bedroom with Cornice Ceiling, Built-in Speaker System, Working Window Shutters and En Suite Shower Room
.Guest Bedroom with Built-in Speaker System, French Doors to Front Courtyard and En Suite Shower Room
.First Floor Bathroom with Four Piece Suite to Include Free Standing Bath and Separate Shower
.Ground Floor Cloakroom with WC
.Oil Fired Central Heating
.Sliding Sash Double Glazed Windows
.Beam Vacuum System
.Mature Site of Around 1/3 of an Acre with Gardens to Front, Side and Rear
.Rear Garden Can Be Fully Enclosed
.Vast Array of Colourful Flowers, Plants, Trees and Shrubs
.Two Driveways, One to the Front and One to the Side
.Side Driveway in Attractive Brick Paviour with Parking for Cars, Caravans, Boats, Horse Box, etc
.Additional Parking Area, Access Through Wrought Iron Gates
.Garage with Office Above
.Two Additional Large Outbuildings, Both with Light and Power
.Easy Access into Greyabbey's Picturesque Centre
.Newtownards, Donaghadee and Bangor Also Easily Accessible
.Various Tourist Attractions Close by Such as Mount Stewart Gardens, Portaferry Aquarium, Scrabo Tower and Killynether Forest Park

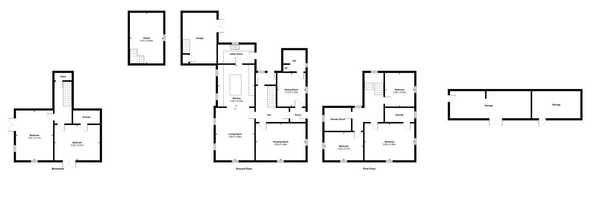
Ground Floor -

Entrance - Front door with double glazed fan over panel to entrance porch.

Entrance Porch - Fully tiled floor, cornice ceiling, ceiling rose, door to dining room.

Dining Room - 13' x 10'1" - Mature outlook to front garden.

Cloakroom With Wc - Two piece suite comprising low flush WC, pedestal wash hand basin with mixer tap, fully tiled floor, part tiled walls, chrome heated towel rail, pressurised water system, storage cupboard with electrics and built-in speaker system, glazed internal door to reception hall.

Reception Hall - Laminate wood effect floor, cornice ceiling, ceiling rose, rear porch to courtyard and stairs to lower level.

Drawing Room - 18' x 13'4" - Attractive granite fireplace surround, brick recess, slate hearth, open fire, cornice ceiling, ceiling rose, dual aspect windows, mature outlook.

Superb Fitted Kitchen - 13'4" x 12'5" - Extensive range of bespoke hand painted solid wooden units, granite work surfaces, one and a half bowl stainless steel sink unit with inset matching granite drainer, space for cooker range, tiled splashback, extractor fan above, integrated Neff microwave grill combination oven, integrated Miele coffee machine, integrated Bosch dishwasher, integrated fridge freezer, storage baskets, glass display cabinets, island unit with additional storage, granite worktop, breakfast bar, fully tiled floor, archway to family room.

Family Room - 19'1" x 13'10" - Feature electric fire, ornate ceiling rose, cornice ceiling, dual aspect windows, laminate wood effect floor.

Utility Room - Range of high and low level high gloss storage cupboards, granite effect work surfaces, Franke single bowl single drainer stainless steel sink unit with mixer tap, plumbed for washing machine, space for tumble dryer, fully tiled floor, double glazed door to outside.

First Floor - Feature stained glass window, ornate cornice ceiling.

Bedroom One - 18' x 13'4" - Cornice ceiling, mature outlook, built-in speaker system, working window shutters.

Bedroom Two - 14' x 10'2" - Cornice ceiling, dual aspect windows.

En Suite Shower Room - Three piece suite comprising built-in fully tiled shower cubicle with hand shower, pedestal wash hand basin, mixer tap, low flush WC, fully tiled floor, extractor fan, built-in speaker system.

Bedroom Three - 13' x 9'9" - Cornice ceiling, currently used as dressing room, built-in wardrobes with hanging rails and shelving.

Bathroom - 4.00 x 3.24 m - Four piece suite comprising free standing claw foot roll top bath with mixer tap, telephone hand shower, separate shower cubicle, floating wash hand basin with mixer tap, low flush WC, fully tiled floor, part tiled walls, extractor fan.

Stairs To Lower Level -

Hallway - Built-in storage cupboard, Beam vacuum system.

Bedroom Four - 16'5" x 12'7" - Built-in speaker system, double glazed French doors to front courtyard.

En Suite Shower Room - Three piece suite comprising built-in fully tiled shower cubicle, pedestal wash hand basin with mixer tap, low flush WC, fully tiled floor, part tiled walls, extractor fan.

Bedroom Five - 18' x 13'2" - Double glazed French doors to side courtyard.

Outside - Exceptional mature site of around 1/3 of an acre, beautifully presented mature gardens to front, side and rear with vast array of colourful flowers, plants, trees and shrubs including an orchard. The rear garden can be fully enclosed making it ideal for children at play, outdoor entertaining or enjoying the sun. The property has two driveways, one to the front and one to the side. The side driveway is finished in attractive brick paviour and leads to an additional parking area through wrought iron gates and also a garage and two large outbuildings with light and power and both have stable doors.

Home Office - 17'5" x 11'6" - With light, power, heat, storage cupboards, single bowl single drainer stainless steel sink unit with mixer tap.

Courtyard to the front in attractive paving and various courtyards to the side, also in paving and brick paviour meaning the sun can be enjoyed virtually any time of the day. A driveway to the side provides parking for cars, caravans, boats, horse boxes, etc

Garage - 18'4" x 11'10" - With oil fired boiler, light and power, radiator.
Internal stairs lead to a home office.

Greyabbey is a quaint village nestled on the shores of Strangford Lough. It's known for its historical significance, particularly the ruins of the Grey Abbey, which was founded in 1193. The village has an array of antique shops and eateries as well as a thriving local community.

Property Ref: 44457_34067413

Share:

Similar Properties

Newtownards Road, Donaghadee

5 Bedroom House | Offers in region of £529,950

Situated on the outskirts of the picturesque coastal town of Donaghadee, this exceptional detached family home offers ch...

Rockhill, DONAGHADEE, BT21 0FB

6 Bedroom Semi-Detached House | Offers in region of £499,950

Set within an exclusive and highly sought-after development, this beautifully presented semi-detached home offers a rare...

Carrowdore Road, Greyabbey, BT22 2LU

4 Bedroom Detached Bungalow | Offers in region of £499,950

Occupying an exceptional elevated site with stunning views of Scrabo Tower, picturesque countryside, Strangford Lough an...

Crawfordsburn Road, Bangor, BT19 1BU

4 Bedroom Detached House | Asking Price £550,000

Built in 2019 by highly regarded local developer MMM, 124B Crawfordsburn Road is a beautifully designed, detached four-b...

Stockbridge Road, DONAGHADEE, BT21 0PN

4 Bedroom Detached House | Offers in region of £579,950

Located on the extremely popular and highly regarded Stockbridge Road just off Warren Road here is an ideal opportunity...

Bryansburn Road, Bangor, BT20 3RZ

5 Bedroom Detached House | Offers in region of £625,000

29 Bryansburn Road is a stunning detached period home, perfectly positioned in a highly sought-after location just a sho...

John Minnis Estate Agents (Donaghadee)

Donaghadee, County Down, BT21 0AG

028 9188 8881

How much is your home worth?

Use our short form to request a valuation of your property.

Request a Valuation

Mortgage Calculator

Amount Borrowed: £
Total Amount Repayable: £
Total Monthly Payment: £
©2025 The Guild of Property Professionals. All rights reserved. Terms and Conditions | Privacy Policy | Cookie Policy | Complaints Policy | Members Login
The Guild of Property Professionals Trading Address: 121 Park Lane, London W1K 7AG. GPEA Limited. Registered in England & Wales.  Company No: 02819824.  Registered Office Address: 2 St. Stephen's Court, St. Stephen's Road, Bournemouth, Dorset, England, BH2 6LA.  VAT Registration No: 576 8795 61
Book a Property Valuation Update Cookies Preferences