Stonestar, Burton In Lonsdale

Offers in region of
£560,000
SSTC
This property listing is now SSTC

4 Bedroom Semi-Detached House for sale in Lancaster

2 4 1
  • Substantial Semi-Detached House
  • 4 Bedrooms
  • Tenure: Freehold
  • Council Tax Band: E
  • EPC Rating: C
  • Ample Off Road Parking
  • Large Single Garage
  • South Facing Garden & Patio
  • Superb Family Home
  • Popular Village Location

A well-presented four-bedroom semi-detached home on the edge of Burton in Lonsdale, offering bright and spacious living with stunning countryside views.

The property features a generous lounge with stone fireplace and access to the garden, a family dining room, modern kitchen with utility, cloakroom and WC. Upstairs includes three double bedrooms (one en suite), a single bedroom, and family bathroom. Externally, the property benefits from a large single garage, ample parking, and gardens to both the front and rear, including a large south-facing front garden with a patio area.

Ideal for families seeking space, light, and a peaceful village setting.

Property Description - Stonestar is an superb semi-detached home, perfectly positioned on the edge of the charming village of Burton in Lonsdale. Bright and welcoming throughout, the property boasts breathtaking countryside views from every aspect.

The home is entered via a generous, light-filled hallway, with steps leading down to a spacious lounge featuring a characterful stone fireplace and sliding doors opening directly onto the sunny, south-facing garden. A well-proportioned dining room provides ample space for family meals and entertaining, while a cloakroom with WC adds convenience. The stylish, modern fitted kitchen is complemented by a practical utility room with access to the rear of the property.

Upstairs, you'll find three generously sized double bedrooms - including one with an en suite - plus a versatile single bedroom, and a well-appointed family bathroom.

Externally, the property benefits from a substantial single garage, ample private parking, a low maintenance garden to the rear and a large south-facing garden with a patio to the front - the perfect setting for enjoying the sun and the home's peaceful open countryside position.

Property Information - Tenure: Freehold
Council Tax Band: E
EPC Rating: C
Services: All mains
Heating: Air source heat pump installed in 2024
Broadband: Available
4kW Solar Panel System with Feed-in Tariff

Burton In Lonsdale Location - Burton-in-Lonsdale is a vibrant village with a popular community-run grocery store and Post Office, alongside various clubs and societies. It boasts an excellent recreation ground featuring an outdoor gym, playground, sports pavilion, and all-weather pitch. The village also has its own newsletter, a pub, and hosts regular community events.

Nearby Bentham and Kirkby Lonsdale offer GP surgeries, while excellent secondary education is accessible via a school bus to QES, Kirkby Lonsdale, and Settle College. Primary schools in Bentham and Leck are about a 10-minute drive away. Kirkby Lonsdale, a charming market town nearby, provides great shopping and dining options.

Bentham station on the Lancaster-Leeds line serves the area, with the A65 providing road access to Skipton and Kendal. Lancaster and the M6 motorway are within a 30-minute drive. The village offers stunning views of Ingleborough and easy access to the Yorkshire Dales National Park, as well as day trips to Morecambe Bay, the Lake District, and the Forest of Bowland.

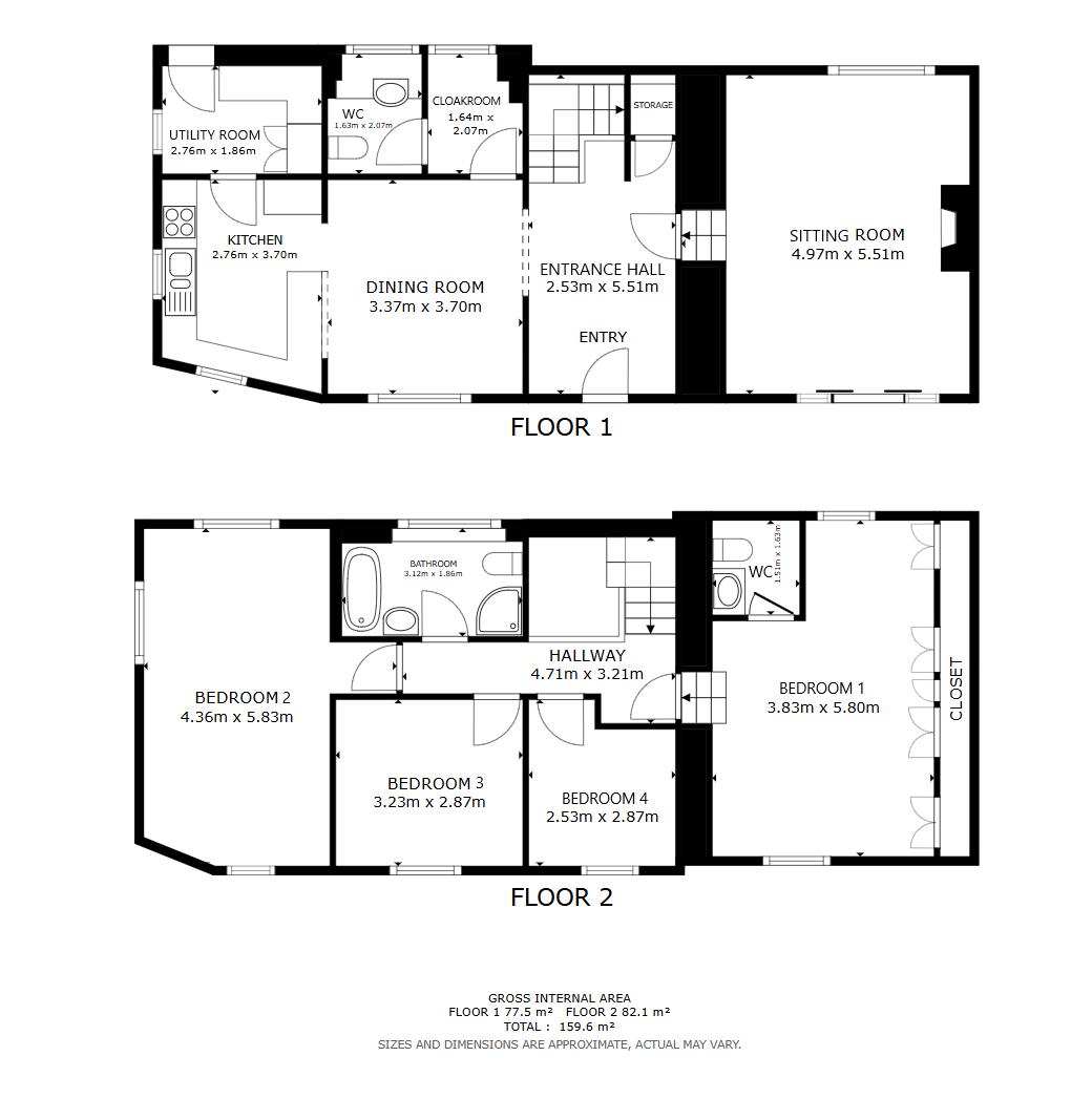
Ground Floor -

Entrance Hall - 17' 10" x 10' 0" (5.44m x 3.05m) - Parquet flooring, radiator, feature archway to dining room, turn staircase with cupboard beneath, glazed front door, window to rear aspect.

Sitting Room - 19' 1" x 14' 2" (5.82m x 4.32m) - Fitted carpet, 2 radiators, stone fireplace housing wood burning stove, TV and telephone points, wall lights, steps leading to hall, double glazed window to rear aspect, double glazed sliding doors to front garden.

Dining Room - 11' 2" x 11' 0" (3.4m x 3.35m) - Parquet flooring, radiator, double glazed window to front aspect overlooking the garden.

Kitchen - 9' 9" x 9' 3" (2.97m x 2.82m) - Tiled flooring, range of wall and base units, single drainer sink, electric cooker and hob with extractor hood over, plumbing for dishwasher, under unit lighting, two double glazed windows to front and side aspect.

Utility Room - 9' 0" x 5' 5" (2.74m x 1.65m) - Tiled floor, base and wall units, plumbing for automatic washing machine, space for dryer, hot water cylinder, double glazed door with textured glass to rear, window to side aspect.

Cloakroom - Fitted carpet, double glazed window to rear aspect, coat hooks, door leading to WC.

Wc - Vinyl flooring, radiator, wash basin with vanity unit, toilet, frosted double glazed window to rear aspect.

First Floor -

Landing - Fitted carpet, radiator, turn staircase, double glazed window to rear aspect.

Bedroom One - 18' 0" x 12' 6" (5.49m x 3.81m) - Fitted carpet, 2 radiators, range of built in wardrobes, loft access, steps up to landing, two double glazed windows to front and rear with views over open countryside.

Ensuite Cloakroom - Fitted carpet, heated towel rail, wash basin with vanity underneath, toilet, extractor fan.

Bedroom Two - 18' 4" x 10' 7" (5.59m x 3.23m) - Fitted carpet, 2 radiators, three double glazed windows on dual aspects with views towards the surrounding hills.

Bedroom Three - 10' 2" x 9' 10" (3.1m x 3m) - Fitted carpet, radiator, double glazed window to front aspect.

Bedroom Four - 9' 7" x 9' 4" (2.92m x 2.84m) - Fitted carpet, radiator, double glazed window to front aspect with views.

Bathroom - Ceramic tiled flooring, radiator, wash basin, toilet, shower cubicle, modern oval freestanding bath, frosted window to rear aspect.

Outside -

Garage - 5.1m x 4.9 (16'8" x 16'0") - Large single garage with concrete floor, power, up and over door.

Front - Lawned garden, vegetable patch and soft fruit area, shrubs and bushes, paved patio area, greenhouse, Wendy house, lean to shed, treehouse, superb views across open countryside.

Rear - Low maintenance garden with mature trees, shrubs and established beds.

Parking - Ample private parking for several vehicles.

Agent Notes - Fisher Hopper has not tested services, fixtures, fittings, central heating, gas and electrical systems. If in doubt, purchasers should seek professional advice. Items in these photographs may not be included in the sale of the property.

OFFER PROCEDURE

Fisher Hopper, as agents in the sale of the property, are required to formally check the identification of prospective purchasers. In addition, purchasers may be asked to provide information regarding the source of funds as part of our offer handling process.

At the point an offer is accepted, an Onboarding Fee of £25.00 (inc. VAT) will be payable. This fee covers the legally required Anti-Money Laundering (AML) searches and secure digital verification to progress your purchase promptly and safely.

You can pay this fee securely online at:
https://shorturl.at/zAqJj

FINANCIAL ADVICE
Free and no obligation mortgage advice is available on our website. Alternatively, please contact us to arrange a call from our mortgage broker.
Your home is at risk if you do not keep up the repayments on a mortgage or other loan secured on it. Written details available upon request

MARKET APPRAISALS
If you have a property or business which needs a market appraisal or valuation, our local knowledge, experience and coverage will ensure you get the best advice. Our Guild Referral Network of over 800 specially selected offices can provide this no obligation service anywhere in the country. Call or email now to let us get you moving.

INTRODUCERS FEES
Fisher Hopper Ltd receives and introducers fee from Napthens Solicitors of £100.00 + VAT for all successful introductions.

FISHER HOPPER
Fisher Hopper is a trading name for Fisher Hopper Limited, which is registered in England No 08514050. The registered office for the company is: 5 Battalion Court, Colburn Business Park, Catterick Garrison, England, DL9 4QN. Company Director: M. Alexander
The office address for Fisher Hopper is: 43 Main Street, Bentham, Lancaster, North Yorkshire LA2 7HJ.

FLOOR PLANS
Please note, floor plans are not to scale and are for illustration purposes only. Plans are produced using PlanUp.

Property Ref: 780361_34137104

Share:

Similar Properties

Croft House Barn, Newby

4 Bedroom Barn Conversion | £550,000

Tucked away just off the village green, Croft House Barn is a beautifully presented and versatile home combining charact...

Ellerburn, Burton Road, Lower Bentham

4 Bedroom Detached Bungalow | Offers in region of £495,000

This charming property, accessed via a shared drive, offers privacy amidst mature trees and greenery. Its layout feature...

Fellcroft ,16 Main Street, Ingleton

5 Bedroom Detached House | £475,000

A spacious and versatile family home, recently refurbished to a high standard with great attention to detail. The proper...

Chesham, High Bentham

5 Bedroom Detached House | £595,000

A substantial and characterful five-bedroom detached period home located just off High Bentham's Main Street. This strik...

The Green, Newby

4 Bedroom Detached House | £600,000

A charming, character-filled home in the heart of Newby, set on the south-western fringe of the Yorkshire Dales National...

Hindburn Cottage, Millhouses, Tatham, LA2 8NF

4 Bedroom Detached House | Offers in region of £625,000

Nestled in the peaceful hamlet of Millhouses, with breathtaking views across the Forest of Bowland, Hindburn Cottage is...

Fisher Hopper Ltd (Bentham)

43 Main Street, Bentham, North Yorkshire, LA2 7HJ

015242 62044

How much is your home worth?

Use our short form to request a valuation of your property.

Request a Valuation

Mortgage Calculator

Amount Borrowed: £
Total Amount Repayable: £
Total Monthly Payment: £
©2025 The Guild of Property Professionals. All rights reserved. Terms and Conditions | Privacy Policy | Cookie Policy | Complaints Policy | Members Login
The Guild of Property Professionals Trading Address: 121 Park Lane, London W1K 7AG. GPEA Limited. Registered in England & Wales.  Company No: 02819824.  Registered Office Address: 2 St. Stephen's Court, St. Stephen's Road, Bournemouth, Dorset, England, BH2 6LA.  VAT Registration No: 576 8795 61
Book a Property Valuation Update Cookies Preferences