Lanreath, Looe - Cornwall

£1,650,000
Sold
This property listing is now Sold

13 Bedroom Detached House for sale in Looe

13 11
  • Lifestyle Property
  • 5 Bedroom House
  • Bed and Breakfast Potential
  • 2 Further Houses
  • 2 Holiday Cottages
  • Heated Swimming Pool
  • Lawned and Landscaped
  • Close to The South Coast

Extensive lifestyle property - holiday business - multi-generational living, close to the South Cornwall Coast. Well presented 5 bed character house with B and B potential, 2 further houses and two 2 bed holiday cottages. Heated swimming pool, lawned gardens. In all 3.75 acres.

5 + 2 + 2 + 2 + 2 Bedrooms

3 + 1 + 1 + 1 + 1 Reception Room

5 + 2 + 2 + 1 + 1 Bathrooms

2 Acres - Further land and buildings available

EPC F37 / D67 / D56 / E53 / D58

. - The property is set in a quiet rural location within the Cornish countryside close the south coast of Cornwall. The popular coastal towns of Polperro is 4 miles south and Looe is 8 miles east. Plymouth is 30 miles to the south east and Truro is 39 miles to the south west both offering a comprehensive range of shopping & leisure facilities.

Bocaddon offers an outstanding lifestyle opportunity in favoured holiday area and offers a substantial 5 bedroom house, 2 further houses, 2 popular holiday letting cottages and an indoor heated swimming pool all set in attractive lawned and landscaped gardens.

Bocaddon Farmhouse - This impressive and spacious traditional Cornish Farmhouse dates back to the 15th century and provides well appointed comfortable and flexible family living and is arranged to provide an income stream from Bed and Breakfast accommodation.
The house benefits from uPVC double glazing throughout. The accommodation briefly comprises: entrance porch, 11m dining / drawing room with open fire place and wood burner with slate flagstone floor. Inner Hall, Sitting Room, Study, Kitchen / Breakfast Room with oil fired Aga, Utility Room and Bathroom. On the First Floor: Large Landing, Master Bedroom en suite Shower Room, Single Bedroom, Double Bedroom with en suite Bath / Shower Room, Family Bathroom and Double Bedroom with en suite Bath / Shower Room.

Bocaddon Letting Cottages - Bocaddon Cottages both benefit from full residential planning consent with timber framed double glazed windows and oil fired central heating both provide diverse opportunity for extended family and income streams from holiday letting or assured shorthold tenancies.

Bocaddon Marghty - A detached spacious and well presented 2 bedroom traditional barn conversion and briefly comprises: conservatory, kitchen / dining room, large sitting room with open fireplace, cloakroom, on the first floor: 2 large double bedroom rooms and a family bathroom.
To the side is a paved patio with well stocked flower bed borders and at the rear paved area and raised lawn terrace.

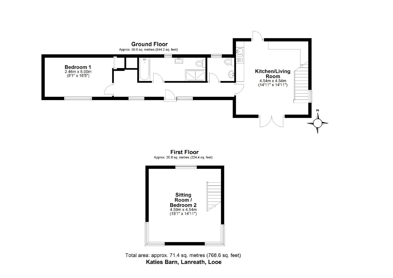
Katie's Cottage - A detached well presented converted traditional barn providing comfortable and flexible accommodation briefly comprising: Entrance hall, kitchen, sitting dining Room, Cloakroom, wet room with Shower and Bath and a double bedroom. On the first floor: Sitting room / bedroom 2. At the rear of the cottage is a large paved patio and lawned terrace

The Holiday Cottages - A traditional barn conversion making a pair of character and well presented semi-detached holiday letting cottages which benefit from timber frame double glazed windows with laminate flooring in the living room and bedrooms with the provision for disabled access throughout and oil fired central heating.

Bramble Byre - Sleeps 4
The accommodation briefly comprises: Entrance Porch with slate tiled floor, Kitchen/ Sitting / Dining room vaulted ceiling with exposed A' frames and beams. Double Bedroom with en suite wet room with bath and shower. Twin Bedroom with en suite shower wet room.

Dairy Dell - Sleeps 5
Entrance Porch slate tiled floor. Kitchen/Sitting/Dining Room with vaulted ceiling exposed A' frames and ceiling beams, Twin Bedroom with en suite shower wet room. Family Room, double and a single, en suite shower and bath wet room.

At the rear of both cottages are large paved patios ideal for alfresco dining while enjoying the views over the lawned garden and surrounding countryside beyond.

Gardens & Land - From the quiet parish road a gated entrance opens onto the tarmacadam drive and, in turn, leads to the main house and into the central court yard which accesses the holiday lets and barns. The land, lawned and landscaped gardens extends to 3.37 acres bordered in red on the land plan (Lot 1). At the side of the house is a large stone paved patio, ideal for alfresco dining and entertaining leading onto a large lawned terrace with well stocked flower bed borders interspersed with mature specimen trees. Steps lead down to the lower terrace which leads to a children's play area and is bordered by farmland. At the rear of the main house is a private rose garden with lawned terraces and a slate paved patio.

Additional Land - Lot 2 extends to 2.27 acres and is bordered by by blue on the land plan.
Lot 3 extends to 2.15 acres and is bordered by by purple on the land plan.

Swimming Pool - Covered and heated indoor swimming pool with a separate plunge pool and hot tub, with two changing rooms and disabled access W/C.

Garden / Mower Store - 3.80m x 5.15m -

Services - Water Mains
Drainage Private
Electricity Mains
Telephone and Broadband BT Connection Fibre to Property
Council Tax House currently Band C Katies Cottage Band C Marghty Band C
Bramble Byre & Dairy Dell Business Rates - Small Business Rate Relief - Nil Payable
Renewable Energy - Photovoltaic Solar Panels with FIT.
Sale Completed - June 2022

Tenure - The property is offered for sale freehold with vacant possession on completion.

Local Authority - Cornwall Council, County Hall, Treyew Road, Truro, Cornwall TR1 3AY. Tel: 0300 1234 100

Viewing Arrangements - Strictly by arrangement with D. R. Kivell Country Property. Tel: 01822 810810.

Property Ref: 33561343

Share:

Similar Properties

Stratton, Bude - Cornwall

7 Bedroom Country House | £1,650,000

The Owners Said - " I wouldn't hesitate to recommend D. R. Kivell Country Property to anyone wishing to selI. Thank-you...

Bridestowe, Devon

7 Bedroom Country House | £1,560,000

The Owners said - "Cannot recommend the team highly enough. Particular credit should go to Geoff and Peter who communica...

Germansweek, Beaworthy - Devon

4 Bedroom Country House | £1,550,000

Outstanding period 4 bedroom, 4 reception room, fine country house, barn with potential. 5.3 acres of paddocks, landscap...

Crackington Haven, Bude - Cornwall

7 Bedroom Country House | £1,750,000

The Owner Said - "Failure to sell my home in a seller's market resulted in me moving onto D. R. Kivell Country Property....

St Mellion, Saltash - Cornwall

8 Bedroom Country House | £1,760,000

The Owners said "We were extremely pleased with the service we received from D.R. Kivell Country Property. Not only did...

Camelford, Cornwall

9 Bedroom Farm | £1,800,000

The Owners Said "We would like to thank David and his team for advising us on the sale of our property. They kept us inf...

D. R. Kivell Country Property (Tavistock)

Tavistock, Devon, PL19 0NW

01822 810810

How much is your home worth?

Use our short form to request a valuation of your property.

Request a Valuation

Mortgage Calculator

Amount Borrowed: £
Total Amount Repayable: £
Total Monthly Payment: £
©2026 The Guild of Property Professionals. All rights reserved. Terms and Conditions | Privacy Policy | Cookie Policy | Complaints Policy | Members Login
The Guild of Property Professionals Trading Address: 121 Park Lane, London W1K 7AG. GPEA Limited. Registered in England & Wales.  Company No: 02819824.  Registered Office Address: 2 St. Stephen's Court, St. Stephen's Road, Bournemouth, Dorset, England, BH2 6LA.  VAT Registration No: 576 8795 61
Book a Property Valuation Update Cookies Preferences