St Andrew's Road, Maidstone

£399,950

3 Bedroom Semi-Detached House for sale in Maidstone

2 3 1
  • 3 bed semi-detached family home
  • Self contained studio
  • Situated on the Maidstone/Barming borders
  • Well-designed kitchen/diner
  • Sunroom
  • Downstairs cloakroom
  • Private rear garden
  • Ample off-road parking
  • NO FORWARD CHAIN

** A WELL-PRESENTED THREE BEDROOM SEMI-DETACHED FAMILY HOME WITH A CONVERTED GARAGE USED AS A SELF-CONTAINED STUDIO **

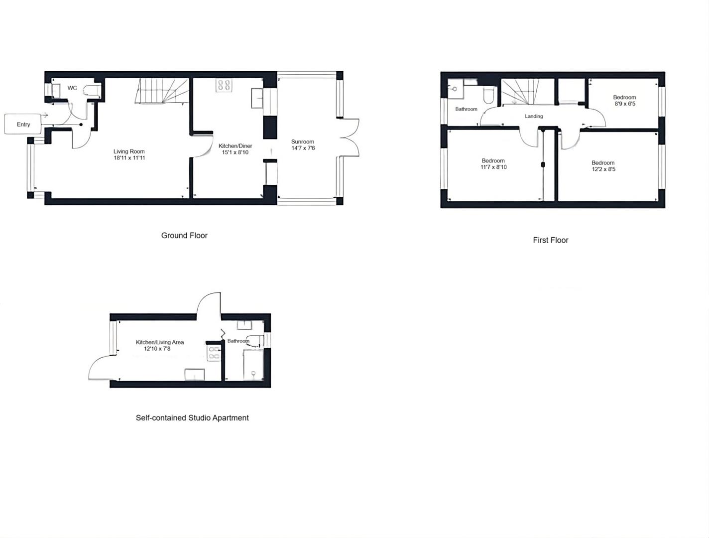
Page & Wells are delighted to bring to the market this modern family home situated in a convenient location on the Maidstone/Barming borders. The ground floor accommodation features a spacious living room, cloakroom, a well-designed kitchen/diner and a sunroom, whilst the first floor offers three bedrooms and a modern family bathroom. There is off-road parking facilities for numerous vehicles, a pleasant rear garden and a converted garage, currently used as a self-contained studio. There are no forward chain implications and an internal viewing is recommended. Contact Page & Wells King Street Office on 01622 756703. Tenure: Freehold. EPC Rating: C. Council Tax Band: D.

Key Features -

. 3 bedrooms
. Lounge
. Well-designed kitchen/diner
. Downstairs WC
. No chain
. Garage converted into self-contained studio apartment
. Sought after location

Accommodation -

Ground Floor: -

Entrance Hall -

Cloakroom -

Living Room -

Kitchen/Diner -

Sunroom -

First Floor: -

Bedroom One -

Bedroom Two -

Bedroom Three -

Family Bathroom -

Externally - There is off-road parking facilities for numerous vehicles, a pleasant rear garden and a converted garage, currently used as a self-contained studio apartment.

Viewing - Viewing strictly by arrangement with the Agent's Head Office: 52-54 King Street, Maidstone, Kent ME14 1DB. Tel: 01622 756703.

Property Ref: 118_34327530

Share:

Similar Properties

Alkham Road, Maidstone

3 Bedroom Semi-Detached House | Offers in region of £395,000

No forward chain. The property is situated on the very favoured residential development at Vinters Park. The development...

Derby Road, Maidstone

3 Bedroom Semi-Detached House | Offers in region of £380,000

The property is situated on a very popular residential development that lies close to Maidstone town centre. The immedia...

Old Dover Works, Maidstone

4 Bedroom House | £375,000

Page & Wells are delighted to bring to the market this rarely available FOUR bedroom property set over three floors. The...

Cromwell Road, Maidstone

4 Bedroom House | Guide Price £400,000

PRICE GUIDE : £400,000 - £425,000. AN EXCEPTIONALLY SPACIOUS FOUR BEDROOM SEMI-DETACHED TOWNHOUSE SITUATED IN A POPULAR...

Heath Grove, Maidstone

4 Bedroom Semi-Detached House | Offers in region of £400,000

The property is situated in a quiet residential road on the outskirts of Barming. This very popular area has excellent l...

Cromwell Road, Maidstone

4 Bedroom Semi-Detached House | Guide Price £400,000

** GUIDE PRICE: £400,000 - £425,000 ** A SUBSTANTIAL FOUR BEDROOM SEMI-DETACHED FAMILY HOME IN NEED OF MODERNISATION SIT...

Page & Wells King Street (Maidstone)

Maidstone, Kent, ME14 1DB

01622 756703

How much is your home worth?

Use our short form to request a valuation of your property.

Request a Valuation

Mortgage Calculator

Amount Borrowed: £
Total Amount Repayable: £
Total Monthly Payment: £
©2025 The Guild of Property Professionals. All rights reserved. Terms and Conditions | Privacy Policy | Cookie Policy | Complaints Policy | Members Login
The Guild of Property Professionals Trading Address: 121 Park Lane, London W1K 7AG. GPEA Limited. Registered in England & Wales.  Company No: 02819824.  Registered Office Address: 2 St. Stephen's Court, St. Stephen's Road, Bournemouth, Dorset, England, BH2 6LA.  VAT Registration No: 576 8795 61
Book a Property Valuation Update Cookies Preferences