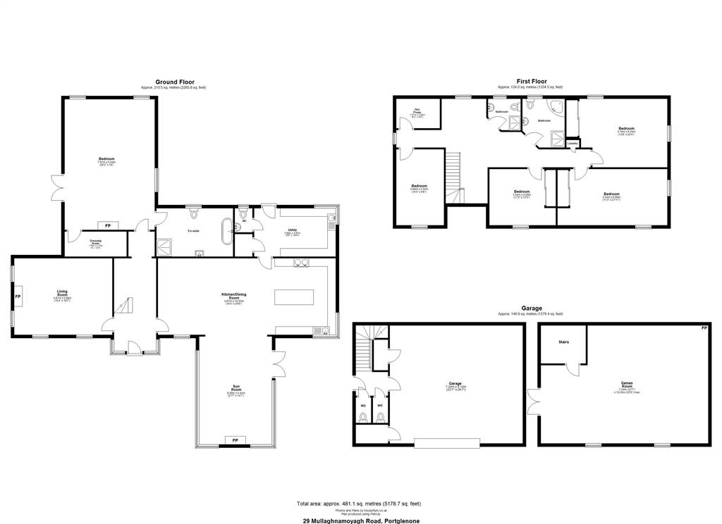
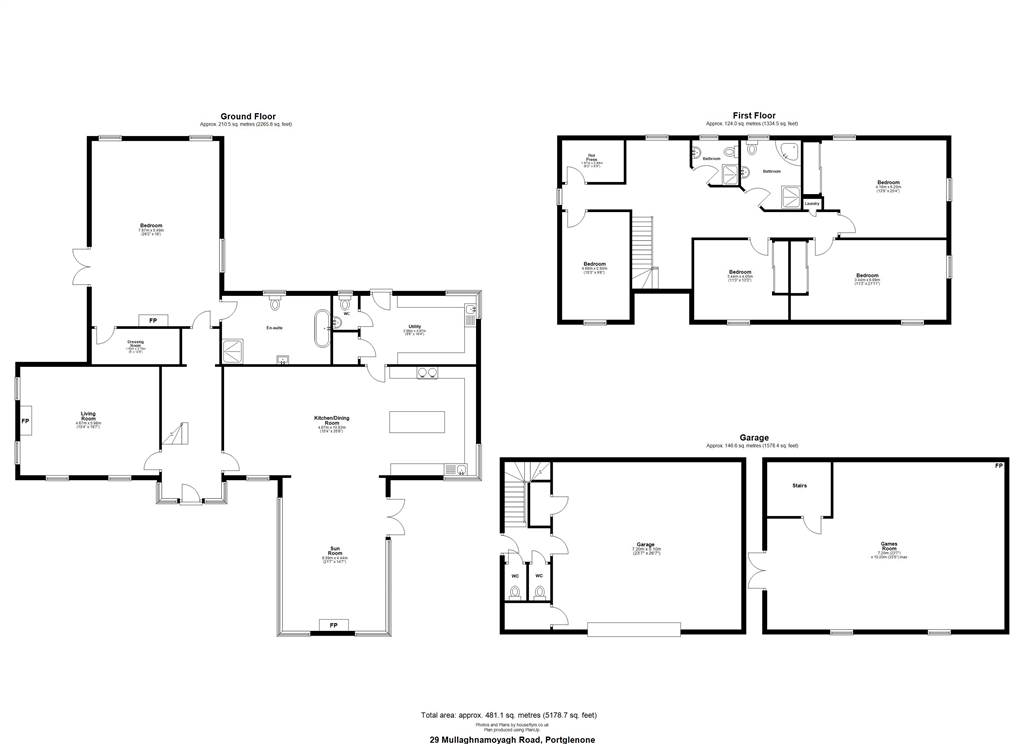
Mullaghnamoyagh Road, Portglenone, BT44 8NP

Offers Over
£495,000

5 Bedroom Detached House for sale in Portglenone

2 5
  • Detached family home
  • Five bedrooms (one with en-suite bathroom and walk-in wardrobe)
  • Living room with gas fire
  • Open plan kitchen/dining room
  • Bar in dining area
  • Sun room with multi-fuel burning stove (back boiler)
  • Utility room
  • Ground floor WC
  • First floor shower room
  • First floor bathroom with 4-piece suite

Homes Independent are delighted to present this exceptional 5-bedroom family home with large detached garage, set on approximately 0.70 acres in the peaceful countryside off the Mullaghnamoyagh Road. Built in 2009 to a superb standard, the property offers over 2,500 sq ft of well-planned living space including a ground floor main bedroom with en-suite and walk-in wardrobe, an impressive open-plan kitchen/dining/living area, utility room and high-quality finishes throughout. Unique features include a purpose-built bar inside the home and a second bar on the first floor of the garage. Externally, a gated driveway, generous parking, landscaped gardens and breathtaking panoramic views complete this dream home. Convenient to Bellaghy, Portglenone and major commuter routes, this stunning home perfectly blends rural tranquillity with modern family living.

Property Ref: HIBM_HIBM5023

Share:

Similar Properties

Finvoy Road, Ballymoney, BT53 7JL

5 Bedroom Detached House | Offers in region of £485,000

Nestled on a private and well-maintained plot, this stunning detached property on the Finvoy Road combines space, privac...

Mullaghnamoyagh Road, Portglenone, BT44 8NP

5 Bedroom Detached House | Offers in region of £480,000

Homes Independent present to the market this exceptional and rare opportunity to acquire a versatile property that seaml...

Ballee Road East, Ballymena, BT42 3HG

4 Bedroom Detached House | Offers in region of £475,000

Constructed in 2022, this exceptional detached residence blends modern design with practical family living. Located with...

New Build Redford Road, Ballymena, BT43 5PR

5 Bedroom Detached House | Asking Price £625,000

This exceptional new build detached residence seamlessly combines generous proportions, high-end finishes and a great lo...

Land at Ballycregagh Road, Cloughmills

Plot | Offers in region of £750,000

A superb opportunity to acquire a well-located parcel of land situated on the Ballycregagh Road, adjacent to Church Hill...

Homes Independent (Ballymena)

Ballymena, Antrim, BT43 5AA

028 2565 11 11

How much is your home worth?

Use our short form to request a valuation of your property.

Request a Valuation

Mortgage Calculator

Amount Borrowed: £
Total Amount Repayable: £
Total Monthly Payment: £
©2025 The Guild of Property Professionals. All rights reserved. Terms and Conditions | Privacy Policy | Cookie Policy | Complaints Policy | Members Login
The Guild of Property Professionals Trading Address: 121 Park Lane, London W1K 7AG. GPEA Limited. Registered in England & Wales.  Company No: 02819824.  Registered Office Address: 2 St. Stephen's Court, St. Stephen's Road, Bournemouth, Dorset, England, BH2 6LA.  VAT Registration No: 576 8795 61
Book a Property Valuation Update Cookies Preferences