West End, Porthleven

Guide Price
£595,000

4 Bedroom Semi-Detached House for sale in Porthleven

3 4 3
  • SEMI-DETACHED TOWN HOUSE
  • FOUR BEDROOMS
  • IMMENSE CHARM & CHARACTER
  • FAR REACHING SEA & COASTAL VIEWS
  • MASTER EN SUITE
  • HOBBIES' ROOM
  • GARDEN
  • FREEHOLD
  • EPC - E47
  • COUNCIL TAX BAND D

Situated in the Breageside area of this popular Cornish fishing village is this charming, four bedroom, semi-detached period town house. The residence benefits from double glazing and smart remotely controllable thermostatic electric heating and a mains pressure hot water system. Far reaching sea and coastal views encompassing Porthleven Pier and the rugged Cornish coastline can be enjoyed from the property. From its local stone facade to its bay windows, the house retains many character features whilst being enhanced and enjoying many refinements of modern living.
A real feature of the property is the outside space, with a raised deck area to the front which would seem ideal for al fresco dining and enjoying the marine vistas. To the rear of the property is an enclosed courtyard and, accessed via steps, there is a further good sized garden area which is mainly laid to lawn and provides further areas for eating out.

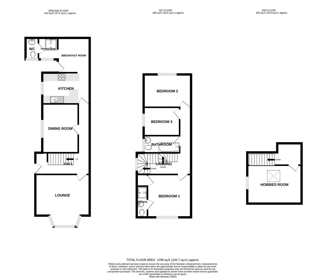
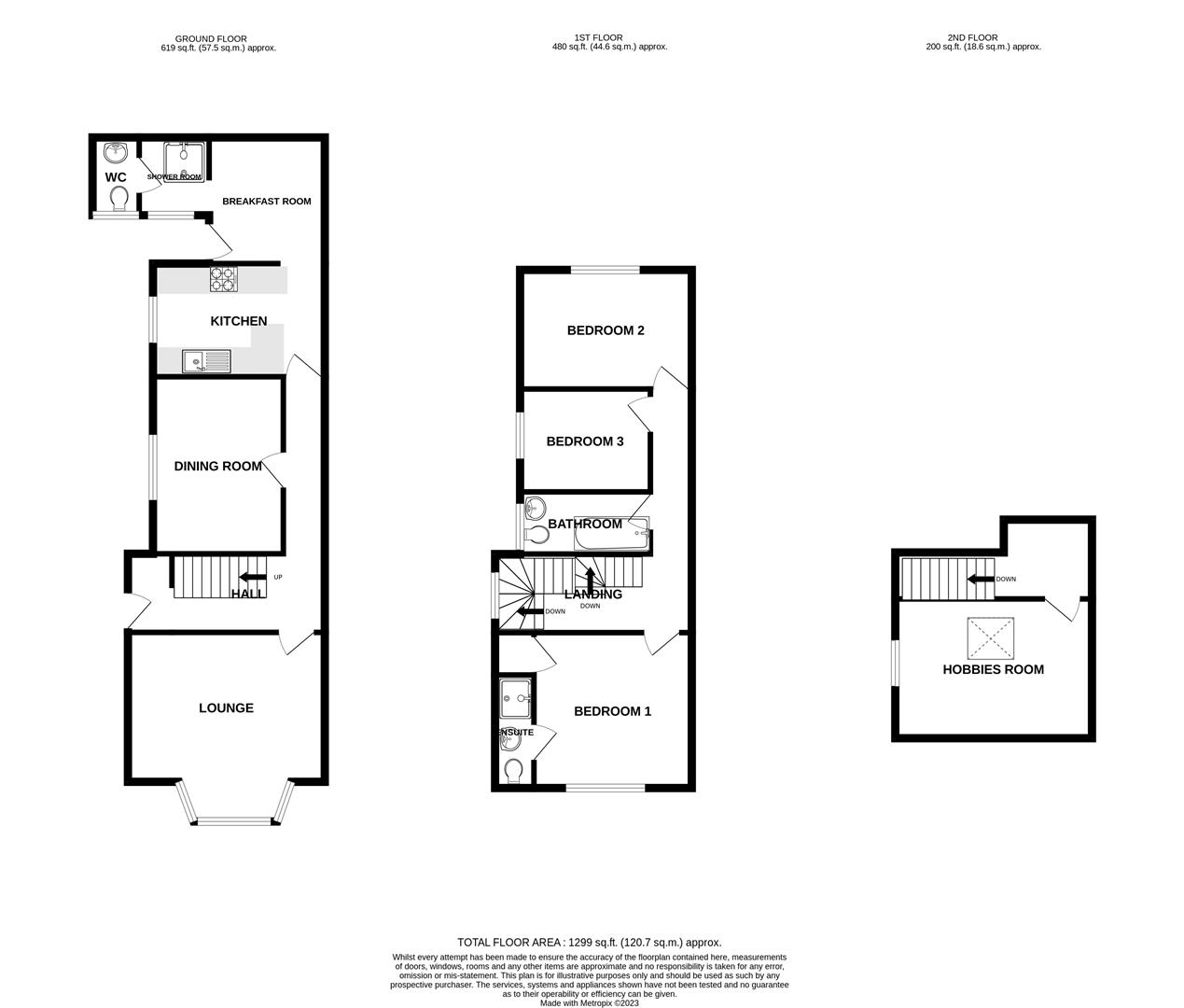
In brief, the accommodation comprises an entrance area, hall, lounge, dining room, kitchen, breakfast room, shower room/utility and, completing the ground floor, a W.C. On the first floor is a bathroom and three bedrooms, the master of which benefits from an en suite. On the second floor is a hobbies room which is currently used as an occasional bedroom and also a good sized loft area.

Porthleven is a thriving seaside Cornish fishing village with its large harbour providing a focal point. Around this cluster many pubs, restaurants and businesses. The village provides amenities to cater for everyday needs as well as a primary school, whilst the more comprehensive amenities of Helston are a few miles distant and these include national stores, cinema and sports centre with indoor swimming pool. Situated between Helston and Porthleven is the beautiful Penrose Estate which is managed by The National Trust and where one may delight in the many walks and trails through the Cornish countryside around Loe Pool which is Cornwall's largest natural fresh water lake.

The Accommodation Comprises (Dimensions Approx) - Door to

Entrance Area - With attractive tiled floor, coat hooks and spotlighting. Opening to

Hall - With attractive tiled floor, stairs to the first floor, chandelier style lighting, spotlighting, doors to the kitchen, dining room and door to

Lounge - 4.27m x 3.20m (14' x 10'6") - With a bay window enjoying stunning views out to sea, towards Porthleven pier and over other properties. The room has dimmable LED spotlighting.

Dining Room - 3.66m x 2.82m (12' x 9'3" ) - With outlook to the side, having a feature fireplace with tiled hearth, stone surround and mantel over (not currently in working order). The room has wall lighting.

Kitchen - 3.81m x 2.44m (12'6" x 8' ) - An attractive kitchen with working top surfaces incorporating a sink unit with drainer and mixer tap over, cupboards and drawers under with wall cupboards over. There is a tiled floor, partially tiled walls, under counter lighting and spotlighting. Built-in appliances include a hob, oven and a dishwasher and a space for a fridge/freezer. Door to

Breakfast Room - 2.67m x 2.51m (8'9" x 8'3") - With skylight, spotlighting, tiled floor, door to outside, door to

Shower Room/Utility - With shower cubicle, heated towel rail and space for a washing machine and tumble dryer. There is a tiled floor, spotlighting, window with obscured glass to the side and door to

W.C. - Comprising wash basin with mixer tap, cupboards under and a close coupled W.C. There is a tiled floor, window, with obscured glass, to the side and spotlighting.

Stairs & Landing - With half landing and window to the side and step up to

Upper Landing - With spotlighting, doors to three bedrooms and door to

Bathroom - A suite comprising a bath with mixer tap and shower over, close coupled W.C. and a washbasin with mixer tap over and cupboards under. There are partially tiled walls, tiled floor with under floor heating, spotlighting, towel rail and a window to the side with obscured glass.

Bedroom One - 3.35m x 3.28m (11' x 10'9") - Enjoying a fabulous outlook out to the sea, towards Porthleven Pier and over other properties. The room has exposed floorboards, built-in cupboard and door to

En Suite - Comprising a shower cubicle, close coupled W.C. and a wall mounted washbasin. There is a tiled floor with under floor heating, tiled walls and a heated towel rail.

Bedroom Two - 3.81m x 2.44m (12'6" x 8' ) - With outlook to the side and having a feature fireplace (not in working order).

Bedroom Three - 2.90m x 2.21m (9'6" x 7'3") - With outlook to the side, having a feature fireplace (not in working order), built-in cupboard.

Stairs & Landing -

Second Floor Landing - With door to

Hobbies Room - 4.34m x 3.02m (14'3" x 9'11") - Currently used as a guest bedroom and having an outlook to the side and skylight to the front enjoying fabulous sea and coastal views. The room has spotlighting and exposed floorboards.

Loft Space - With skylight, water tank with immersion heater.

Services - Mains electricity, water and drainage.

Agents Note One - Marketing photographs taken in August, 2023.

Anti-Money Laundering - We are required by law to ask all purchasers for verified ID prior to instructing a sale

Proof Of Finance - Purchasers - Prior to agreeing a sale, we will require proof of financial ability to purchase which will include an agreement in principle for a mortgage and/or proof of cash funds.

Date Details Prepared. - 14th March, 2025.

Property Ref: 453323_33761424

Share:

Similar Properties

Nansloe Close, Helston

4 Bedroom Detached Bungalow | Guide Price £595,000

An opportunity to purchase a three/four bedroom detached property in a highly regarded residential area of the market to...

Mawgan, Helston

4 Bedroom Detached House | Guide Price £595,000

A modern four bedroom detached property set in lovely grounds and gardens in the highly regarded village of Mawgan-in-Me...

Burras, Wendron, Helston

4 Bedroom Detached House | Guide Price £595,000

A truly delightful four bedroom detached rural barn conversion standing within beautifully landscaped gardens and ground...

Torleven Road, Porthleven

4 Bedroom Detached House | Guide Price £599,950

Situated in the heart of the Cornish fishing village of Porthleven is this four bedroom, detached modern house. The resi...

Tregoon, Gweek

4 Bedroom Detached House | Guide Price £599,950

Nestled on the outskirts of the creekside village of Gweek, this exceptional home enjoys a truly special position, offer...

Godolphin Cross, Helston

4 Bedroom Detached Bungalow | Guide Price £600,000

Nestled in a picturesque valley, Carsluick Farm Bungalow is a spacious detached four-bedroom home, ready for immediate p...

Christophers Estate Agents Porthleven (Porthleven)

Fore St, Porthleven, Cornwall, TR13 9HJ

01326 573737

How much is your home worth?

Use our short form to request a valuation of your property.

Request a Valuation

Mortgage Calculator

Amount Borrowed: £
Total Amount Repayable: £
Total Monthly Payment: £
©2025 The Guild of Property Professionals. All rights reserved. Terms and Conditions | Privacy Policy | Cookie Policy | Complaints Policy | Members Login
The Guild of Property Professionals Trading Address: 121 Park Lane, London W1K 7AG. GPEA Limited. Registered in England & Wales.  Company No: 02819824.  Registered Office Address: 2 St. Stephen's Court, St. Stephen's Road, Bournemouth, Dorset, England, BH2 6LA.  VAT Registration No: 576 8795 61
Book a Property Valuation Update Cookies Preferences