Harvesters Close, Rainham, Gillingham, ME8

£300,000
SSTC
This property listing is now SSTC

3 Bedroom Terraced House for sale in Rainham, Gillingham

1 3 1
  • Three Bedroom Terraced Family Home
  • Well Appointed Kitchen / Diner
  • Fabulous Conservatory With Underfloor Heating & Self Cleaning Glass
  • Popular Rainham Location, Close to Shops, Schools & Amenities
  • Great Access To Motorway Links & Public Transport
  • Low Maintenance Rear Garden Measuring Approx 25ft x 15ft
  • Allocated Parking Space (En Bloc)
  • Offered With No Onward Chain

Perfect First Home in Prime Rainham Location – Offered with no onward chain & Move-In Ready!

Step onto the property ladder with confidence in this fantastic three-bedroom terraced home, ideally located in the sought-after Rainham area. Whether you're a first-time buyer or looking for a stylish, low-maintenance home, this property has everything you need – space, comfort, and convenience – all wrapped up in a welcoming, move-in-ready package. As you enter, you're greeted by a handy porch with built-in storage, perfect for coats, shoes, and everyday essentials. Inside, the spacious cosy lounge offers a warm and inviting space to unwind or entertain friends. The modern kitchen/diner is sleek and well-equipped with plenty of storage and counter space – ideal for cooking up a storm or enjoying relaxed dinners. The kitchen flows seamlessly into a renovated conservatory complete with underfloor heating and self cleaning glass, making it a fantastic year-round space to relax or host. French doors flood the room with natural light and open out to the private, low-maintenance garden – perfect for summer BBQs or quiet evenings outdoors. Upstairs, you’ll find three generously sized bedrooms, including two doubles with built-in wardrobes and a versatile third bedroom – ideal as a nursery, guest room, or home office. The family bathroom is fresh and functional, featuring a shower over the bath. Outside, the easy-care front and rear gardens offer great curb appeal and minimal upkeep, while the allocated parking space (en-bloc) is a real bonus. Location-wise, it doesn’t get better – just a short walk to Rainham train station, local schools, and a vibrant high street with shops, cafes, and restaurants right on your doorstep.

This home ticks all the boxes for first-time buyers, modern, practical, affordable, and in a fantastic location. Don’t miss out – contact the Greyfox Sales Team in Rainham today and book your viewing!

 

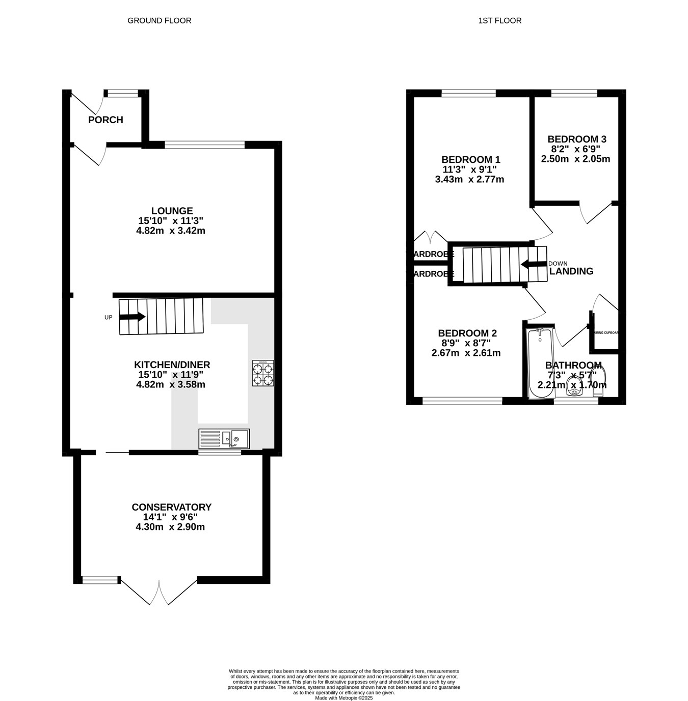
Ground Floor


Porch
4' 0" x 5' 11" (1.22m x 1.80m)

Lounge
15' 10" x 11' 3" (4.83m x 3.43m)

Kitchen/ Diner
15' 9" x 11' 8" (4.80m x 3.56m)

Conservatory
14' 1" x 9' 6" (4.29m x 2.90m)

First Floor


Bedroom 1
11' 3" x 9' 1" (3.43m x 2.77m)

Bedroom 2
8' 9" x 8' 7" (2.67m x 2.62m)

Bedroom 3
8' 2" x 6' 9" (2.49m x 2.06m)

Bathroom
7' 3" x 5' 7" (2.21m x 1.70m)

Important Information

  • This is a Freehold property.

Property Ref: 5093132_29741108

Share:

Similar Properties

Bedson Walk, Rainham, Gillingham, ME8

3 Bedroom End of Terrace House | Guide Price £300,000

**Guide Price £300,000-£325,000** Situated along a quiet walkway in a sought-after Rainham location, this well-presented...

Pembroke Gardens, Rainham, Gillingham, ME8

3 Bedroom Semi-Detached House | Guide Price £300,000

**Guide Price £300,000-£325,000** Situated in a highly sought-after area of Rainham, this well-presented three-bedroom s...

High Dewar Road, Rainham, Gillingham, ME8

3 Bedroom Terraced House | Offers in excess of £300,000

Charming 3-Bedroom Victorian Mid-Terrace Popular Residential Road in RainhamNestled on a sought-after residential street...

Paget Street, Gillingham, ME7

4 Bedroom Terraced House | Offers in region of £325,000

Beautifully Presented Four-Bedroom Family Home with Generous Garden and Unique Entertainment SpaceThis charming four-bed...

Eastcourt Lane, Twydall, Gillingham, ME8

3 Bedroom Terraced House | Guide Price £325,000

Guide Price £325,000 - £350,000. Chain Free!Charming 1930’s bay fronted family home, located in the ever popular Twydall...

Dial Road, Gillingham, ME7

4 Bedroom Terraced House | Fixed Price £340,000

Greyfox are delighted to present this spacious, modern, and versatile four-bedroom terraced family home with no onward c...

Greyfox Sales & Lettings (Rainham)

High Street, Rainham, Kent, ME8 7HS

01634 377737

How much is your home worth?

Use our short form to request a valuation of your property.

Request a Valuation

Mortgage Calculator

Amount Borrowed: £
Total Amount Repayable: £
Total Monthly Payment: £
©2025 The Guild of Property Professionals. All rights reserved. Terms and Conditions | Privacy Policy | Cookie Policy | Complaints Policy | Members Login
The Guild of Property Professionals Trading Address: 121 Park Lane, London W1K 7AG. GPEA Limited. Registered in England & Wales.  Company No: 02819824.  Registered Office Address: 2 St. Stephen's Court, St. Stephen's Road, Bournemouth, Dorset, England, BH2 6LA.  VAT Registration No: 576 8795 61
Book a Property Valuation Update Cookies Preferences