4 Bedroom Detached House for sale in Sheringham

4 3
  • Immaculate presentation
  • Generous accommodation
  • Dual aspect sitting room
  • Fitted kitchen/breakfast room & utility room
  • Garden room built in 2018
  • Two double bedrooms with en-suite shower rooms
  • Two further bedrooms
  • Family bathroom
  • Beautifully landscaped gardens
  • Integral garage and off-road parking

Location Sheringham is a picturesque town nestled in an Area of Outstanding Natural Beauty on the stunning North Norfolk coast, perfectly positioned between the sea and the enchanting Pretty Corner woods. Known for its bustling atmosphere, Sheringham boasts a vibrant town centre with a fantastic range of independent shops, well-known brands, and a Tesco supermarket offering convenient short-term parking. Excellent bus and rail links provide easy access to Norwich, the lively cultural hub just 27 miles south, the charming Georgian town of Holt, 6 miles away, and Cromer, a delightful Victorian seaside town 4 miles along the coast.

A highly sought-after destination for both holidaymakers and retirees, the town offers exceptional coastal and woodland walks, with Sheringham beach proudly holding Blue Flag status. The beach is complemented by a wide promenade that stretches the length of the town, ideal for seaside strolls.

Sheringham is well-equipped with modern amenities including a health centre, dental services, theatre, and library. The Reef Leisure Centre and the town's renowned 18-hole cliff-top golf course offer further opportunities for recreation. Throughout the year, Sheringham hosts a variety of popular events such as the Viking Festival, Crab and Lobster Festival, Carnival, and the celebrated 1940s Weekend, ensuring there's always something to enjoy.

Sheringham combines coastal charm, natural beauty, and a warm community spirit, making it an exceptional place to visit or call home. 

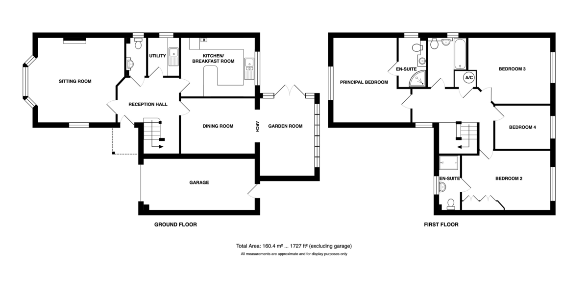
Description This superb family home is ideal for entertaining. The welcoming reception hall, complete with a convenient cloakroom, leads you to a spacious dual aspect sitting room where you can relax and unwind. The fitted kitchen/breakfast room, adjacent to the dining room, is ideal for hosting gatherings. The dining room opens into a light and airy garden room, constructed in 2018, offering year-round enjoyment of the rear garden. A practical utility room adds to the home's functionality.

Upstairs, you'll find two inviting double bedrooms with en-suite facilities, a further double bedroom, a single bedroom/home office, and a family bathroom. The beautifully landscaped gardens provide a serene retreat, perfect for outdoor relaxation and entertaining. Off-road parking is available on the brickweave drive, leading to an integral garage.

Additional benefits include gas central heating and uPVC double glazing, ensuring comfort throughout the year. This property is a perfect haven for families or couples who love hobbies or hosting friends and relatives. An internal viewing is highly recommended to fully appreciate the warmth and charm of this beautiful home.

The accommodation comprises;

uPVC double glazed front door to;
 

Reception Hall 11' 11" x 7' 10" (3.63m x 2.39m) Wood effect Karndean flooring, radiator, stairs to first floor with understairs storage area, door to; 

Cloakroom Wash basin with mixer tap and vanity unit beneath, mosaic tiles slash-back, low level WC, radiator, side aspect uPVC double glazed window with obscure glass, wood effect Karndean flooring. 

Sitting Room 17' 0" reducing to 13'9" x 15' 0" (5.18m x 4.57m) uPVC double-glazed bay window to side aspect, further uPVC double-glazed window to front aspect, two radiators, feature fireplace with electric flame effect fire, marble surround and mantle over, TV aerial point, telephone and broadband point. 

Dining Room 13' 1" x 9' 10" (3.99m x 3m) Wood effect Karndean flooring, radiator and opening to;  

Garden Room 13' 9" x 9' 8" (4.19m x 2.95m) uPVC double glazed window to side and rear aspect with French doors to garden, two Velux rooflights, recessed LED spotlights, radiator, Karndean wood effect flooring.

 

Kitchen/Breakfast Room 13' 1" x 10' 5" (3.99m x 3.18m) Nicely fitted with a range of wood fronted shaker style base units with quartz working surfaces over, eye level Bosch double oven, five ring gas hob with canopy extractor over, breakfast bar, one and a half bowl sink with mixer tap, integrated dishwasher, space for a fridge freezer, gas boiler providing central heating and domestic hot water, concealed within a unit, breakfast bar, uPVC double-glazed window to side aspect, recessed LED spotlights, radiator, glazed door to reception hall. 

Utility Room 6' 9" x 5' 6" (2.06m x 1.68m) Fitted with a base units with working surface over, matching wall units, tiled splashback, space and plumbing for a washing machine, radiator, part-glazed door to rear garden, uPVC window to rear aspect. 

First Floor  

Galleried Landing 14' 7" x 5' 10" (4.44m x 1.78m) uPVC double glazed window to front aspect, offering a glimpse of the golf course between buildings, hatch and ladder to insulated and part-boarded loft, built-in airing cupboard housing lagged hot water cylinder and slatted shelving. 

Principal Bedroom 15' 0" x 13' 5" (4.57m x 4.09m) uPVC double glazed window to side aspect, radiator. 

En-Suite Shower Room 8' 9" x 4' 10" (2.67m x 1.47m) Fitted with contemporary sanitaryware comprising curved corner shower cubicle with mixer shower and showerwall, low level WC with concealed cistern, countertop basin with pillar tap and unit beneath, heated towel rail, part-tiled walls, recessed LED spotlights, extractor fan, uPVC double-glazed window with obscure glass to rear aspect. 

Bedroom 2 15' 8" x 10' 6" reducing to 9'8" (4.78m x 3.2m) Side aspect uPVC double-glazed window overlooking the garden, radiator. 

En-Suite Shower Room 9' 8" x 3' 10" (2.95m x 1.17m) Fitted with a white vanity basin with mixer tap and unit beneath, low level WC, shower enclosure with bi-fold door, tiled walls and mixer shower, uPVC double-glazed window with obscure glass to side aspect, radiator, recessed LED spotlights and extractor fan. 

Bedroom 3 14' 6" reducing to 13'0" x 12' 1" (4.42m x 3.68m) uPVC double glazed window to side aspect, offering views over the garden, radiator, TV point. 

Bedroom 4/Study 9' 9" x 7' 8" (2.97m x 2.34m) uPVC double glazed window to side aspect, offering views over the garden, radiator. 

Family Bathroom 8' 9" x 6' 11" reducing to 4'7" (2.67m x 2.11m) Fitted with a back-to-wall suite comprising washbasin with mixer tap and unit beneath, low-level WC with concealed cistern, panelled bath with mixer tap and shower attachment, shaver point, part-tiled walls, rear aspect uPVC double-glazed window with obscure glass, heated towel rail, extractor fan and recessed LED light. 

Outside The gardens are a lovely feature of this property.
The front and side gardens are beautifully landscaped, with a brick weave path leading to a gate into the rear passage. Raised beds, edged by railway sleepers and filled with a variety of fragrant and colorful flowers and shrubs, add charm and vibrancy to the space. On the near side of the drive, a slate bed showcases a stunning display of flowers within tiered beds, also edged by railway sleepers.

A tall gate at the side of the property leads to a paved path edged by shingle This opens into a beautifully landscaped and manageable garden with a paved seating area that enjoys a South and West aspect, perfect for relaxing and entertaining. The well-tended lawn is edged by beds planted with a variety of mature shrubs, flowers, and climbers supported by the fencing that encloses the garden. An outside tap adds to the convenience of this delightful outdoor space.

The integral garage, measuring 19' 10" x 9' 1" (6.05m x 2.77m), features an up-and-over door, a personal door to the garden, as well as light and power, providing ample space for vehicles and storage. 

Services All main services. 

Local Authority/Council Tax North Norfolk District Council, Holt Road, Cromer, NR27 9EN.
Tel: 01263513811
Tax Band: E
 

EPC Rating The Energy Rating for this property is C. A full Energy Performance Certificate available on request. 

Important Agent Note Intending purchasers will be asked to provide original Identity Documentation and Proof of Address before solicitors are instructed. 

We Are Here To Help If your interest in this property is dependent on anything about the property or its surroundings which are not referred to in these sales particulars, please contact us before viewing and we will do our best to answer any questions you may have.

The price quoted for the property does not include Stamp Duty or Title Registration fees, which purchasers will normally pay as part of the conveyancing process. Please ask us if you would like assistance calculating these charges. 

Property Ref: 57482_101301039215

Share:

Similar Properties

Weybourne

2 Bedroom Barn Conversion | Offers Over £475,000

A superb barn conversion, sympathetically designed to retain much of its original character, situated in a tucked away p...

West Runton

3 Bedroom Detached Bungalow | Guide Price £475,000

A beautifully presented, detached bungalow, built in 2007, with landscaped garden and garage, situated in a sought after...

Sheringham

4 Bedroom End of Terrace House | Guide Price £475,000

A beautifully appointed, brick and flint house, occupying a highly desirable position within Sheringham's conservation a...

Baconsthorpe, Holt

4 Bedroom Detached Bungalow | Guide Price £525,000

A superb, detached chalet style bungalow offering generous accommodation, situated in rural North Norfolk, approximately...

Sheringham

5 Bedroom End of Terrace House | Guide Price £525,000

A beautifully presented five bedroomed Victorian, bay fronted, end of terrace house with many original features arranged...

Sheringham

4 Bedroom Detached House | £539,000

A beautifully presented detached house offering generous and flexible accommodation which provides both a family home an...

Watsons (Sheringham)

Sheringham, Norfolk, NR26 8RG

01263 823201

How much is your home worth?

Use our short form to request a valuation of your property.

Request a Valuation

Mortgage Calculator

Amount Borrowed: £
Total Amount Repayable: £
Total Monthly Payment: £
©2025 The Guild of Property Professionals. All rights reserved. Terms and Conditions | Privacy Policy | Cookie Policy | Complaints Policy | Members Login
The Guild of Property Professionals Trading Address: 121 Park Lane, London W1K 7AG. GPEA Limited. Registered in England & Wales.  Company No: 02819824.  Registered Office Address: 2 St. Stephen's Court, St. Stephen's Road, Bournemouth, Dorset, England, BH2 6LA.  VAT Registration No: 576 8795 61
Book a Property Valuation Update Cookies Preferences