Sheringham

Guide Price
£360,000
SSTC
This property listing is now SSTC

4 Bedroom Detached House for sale in Sheringham

4 2
  • Immaculate presetation
  • Flexible Accommodation
  • Off-road Parking
  • South-East Facing Rear Garden
  • Living Room
  • Dining Room
  • Fitted Kitchen and Utility Room
  • Home office and Playroom/ Ground Floor Bedroom
  • Three Further First Floor Bedrooms
  • Family Bathroom and Ensuite

Location Sheringham is a picturesque town nestled in an Area of Outstanding Natural Beauty on the stunning North Norfolk coast, perfectly positioned between the sea and the enchanting Pretty Corner woods. Known for its bustling atmosphere, the town offers exceptional coastal and woodland walks, with Sheringham beach proudly holding Blue Flag status. The beach is complemented by a wide promenade that stretches the length of the town, ideal for seaside strolls.

A highly sought-after destination for both holidaymakers and retirees, Sheringham boasts a vibrant town centre with a fantastic range of independent shops, well-known brands, and a Tesco supermarket offering convenient short-term parking. Excellent bus and rail links provide easy access to Norwich, the lively cultural hub just 27 miles south, the charming Georgian town of Holt, 6 miles away, and Cromer, a delightful Victorian seaside town 4 miles along the coast.

Sheringham is well-equipped with modern amenities including a health centre, dental services, theatre, and library. The Reef Leisure Centre and the town's renowned 18-hole cliff-top golf course offer further opportunities for recreation. Throughout the year, Sheringham hosts a variety of popular events such as the Viking Festival, Crab and Lobster Festival, Carnival, and the celebrated 1940s Weekend, ensuring there's always something to enjoy.

Sheringham combines coastal charm, natural beauty, and a warm community spirit, making it an exceptional place to visit or call home. 

Description We are delighted to present this beautifully maintained detached family residence, ideally positioned on the sought-after western outskirts of town. Perfectly located within easy walking distance of local schools, a bus stop, and the leisure centre, this property offers both convenience and comfort.

The home boasts versatile accommodation arranged over two floors. Upon entering, you are welcomed by an inviting reception hall leading to a bright, dual-aspect sitting room, seamlessly connected to the dining area via an archway. The dining room opens onto the garden, while the modern kitchen features stylish shaker-style units complemented by a matching utility room. For those working remotely, a dedicated home office is provided, alongside a playroom or optional fourth bedroom.

Upstairs, the principal bedroom benefits from its own en-suite bathroom, accompanied by two further well-proportioned bedrooms and a contemporary family bathroom.

Externally, the property offers off-road parking for two vehicles and an enclosed rear garden enjoying a pleasant east-facing aspect.

Additional features include gas central heating, uPVC double glazing, and the possibility of purchasing selected furnishings by separate negotiation. Early viewing is highly recommended to fully appreciate the quality and flexibility of this home.

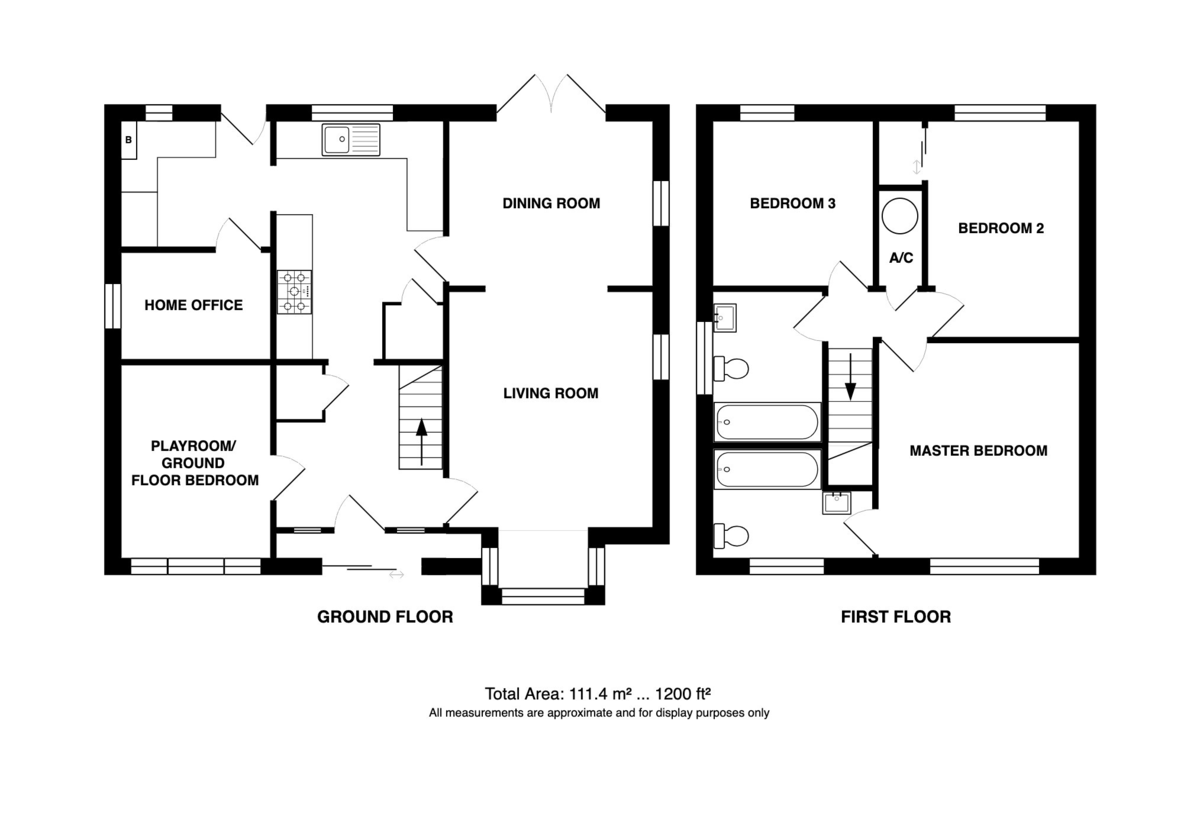
The accommodation comprises;

uPVC double glazed sliding door with matching side panel to:
 

Entrance Porch Pamment tiled floor, door and obscure glass panel to: 

Reception Hall Stairs to first floor, built in cloaks cupboard with hanging rail and shelf, circular window, radiator, glazed doors to kitchen, playroom and to: 

Sitting Room 13' 3" plus bay window x 11' 2" (4.04m x 3.4m) A lovely dual aspect room with uPVC double glazed windows to front and side aspect, radiator, TV aerial point arch opening to  

Dining Room 11' 3" x 9' 1" (3.43m x 2.77m) uPVC double glazed French doors to rear garden, further side aspect uPVC glazed window, radiator, laminate floor, door to: 

Kitchen 13' 4" x 9' 2" (4.06m x 2.79m) Fitted with a range of Shaker style base units with granite effect working surfaces over, five ring range cooker with canopy extractor over, double bowl/single drainer sink with mixer tap, integrated slimline dishwasher, built in cupboard, tiled splash back, laminate flooring, uPVC double glazed window to rear aspect with a lovely view over the garden arch opening to: 

Utility Room 8' 2" x 6' 11" (2.49m x 2.11m) Fitted with a range of Shaker style base units to match the kitchen, granite effect working surfaces over, wall mounted gas boiler providing central heating and domestic hot water discreetly concealed within a matching wall unit, tiled splash back, space and plumbing for a washing machine, space for a fridge freezer, uPVC double glazed window to rear aspect and part glazed door to garden, further door to: 

Home Office 8' 3" x 6' 0" (2.51m x 1.83m) uPVC double glazed window to side aspect with obscure glass. 

Bedroom 4/Playroom 10' 8" x 8' 3" (3.25m x 2.51m) uPVC double glazed window to front aspect, radiator, telephone and broadband point, hatch to loft. 

First Floor  

Landing Built in airing cupboard housing lagged hot water cylinder and slatted shelving. hatch to loft, door to: 

Principal Bedroom 11' 11" x 11' 4" (3.63m x 3.45m) With uPVC double glazed windows, two front aspect radiators, door to ensuite shower room. 

En-Suite Bathroom 8' 7" x 6' 0" (2.62m x 1.83m) Fitted with a white suite comprising pedestal basin with mixer tap, low level WC, panelled bath with taps and mixer shower over, shower screen, tiled floor, part-tiled walls, uPVC double glazed window to front aspect with obscure glass radiator, shaver point medicine cabinet. 

Bedroom 2 10' 8" x 8' 10" (3.25m x 2.69m) Rear aspect uPVC double glazed window, radiator, built in wardrobe with sliding doors. 

Bedroom 3 9' 2" x 7' 6" (2.79m x 2.29m) uPVC glazed window to rear aspect and radiator. 

Family Bathroom 8' 6" x 6' 0" (2.59m x 1.83m) Fitted with a modern white suite comprising panelled bath with taps and mixer shower over, low level WC, pedestal basin with mixer tap, tiled floor, part tiled walls, radiator, high level UPVC double glazed window with obscure glass. 

Outside The property is approached by a brick weave driveway, providing off road parking for one vehicle and leading on to a further parking area laid to shingle at the front of the house. A tall gate at the side of the property leads to a passageway into the rear garden. This is fully enclosed by fencing and enjoys an easterly aspect that benefits from the sunshine for the majority of the morning into early afternoon in winter and late afternoon in summer. It is mainly laid to lawn with a paved seating area and borders planted with attractive shrubs for yearlong colour and interest. There is an outside tap and tucked away down the far side of the house, a useful covered storage area. 

EPC Rating The Energy Rating for this property is D. A full Energy Performance Certificate available on request. 

Services All main services. 

Local Authority/Council Tax North Norfolk District Council, Holt Road, Cromer, NR27 9EN.
Tel 01263 513811.
Tax Band: D
 

Important Agent Note Intending purchasers will be asked to provide original Identity Documentation and Proof of Address before solicitors are instructed.

In accordance with good practice and the Estate Agents Act 1979, this property is owned by the family of a member of staff based at our Sheringham office. 

We Are Here To Help If your interest in this property is dependent on anything about the property or its surroundings which are not referred to in these sales particulars, please contact us before viewing and we will do our best to answer any questions you may have.

The price quoted for the property does not include Stamp Duty or Title Registration fees, which purchasers will normally pay as part of the conveyancing process. Please ask us if you would like assistance calculating these charges. 

Property Ref: 57482_101301039417

Share:

Similar Properties

Tunstead

3 Bedroom Detached House | Guide Price £360,000

An attractive and established detached residence thoughtfully extended to provide generous and well presented accommodat...

Beeston Regis

3 Bedroom Detached Bungalow | Guide Price £360,000

This charming and well-presented detached bungalow has been significantly improved by the current owners, offering a sty...

Sheringham

2 Bedroom Detached House | Guide Price £350,000

A beautifully presented detached brick and flint house situated within a level walk of the town centre and beach and jus...

Sheringham

5 Bedroom Terraced House | Guide Price £365,000

Situated just off the town centre, this delightful, Victorian town house, currently used as holiday accommodation but eq...

Sheringham

3 Bedroom End of Terrace House | Guide Price £375,000

A charming brick and flint character home, situated in the centre of town, within a short stroll of the shops, restauran...

Sheringham

2 Bedroom Detached House | Guide Price £375,000

A charming, un-spoilt, character cottage with generous, well stocked garden, situated on a sought after, private road, w...

Watsons (Sheringham)

Sheringham, Norfolk, NR26 8RG

01263 823201

How much is your home worth?

Use our short form to request a valuation of your property.

Request a Valuation

Mortgage Calculator

Amount Borrowed: £
Total Amount Repayable: £
Total Monthly Payment: £
©2025 The Guild of Property Professionals. All rights reserved. Terms and Conditions | Privacy Policy | Cookie Policy | Complaints Policy | Members Login
The Guild of Property Professionals Trading Address: 121 Park Lane, London W1K 7AG. GPEA Limited. Registered in England & Wales.  Company No: 02819824.  Registered Office Address: 2 St. Stephen's Court, St. Stephen's Road, Bournemouth, Dorset, England, BH2 6LA.  VAT Registration No: 576 8795 61
Book a Property Valuation Update Cookies Preferences