3 Bedroom Semi-Detached House for sale in Sheringham

3 2
  • Comfortable Sitting Room
  • Separate Dining Room
  • Garden Room
  • Well Fitted Kitchen
  • Utility
  • Principal Bedroom with En-suite
  • Two Further Bedrooms
  • Family Bathroom
  • Low Maintenance Gardens
  • Westerly Facing Rear Garden

Location Sheringham is a delightful small town in an area of Outstanding Natural Beauty on the North Norfolk coast, nestling between the sea and Pretty Corner woods. There are excellent coastal and woodland walks in the vicinity and Sheringham enjoys a blue flag status and is a mix of shingle and sand depending on the tide, with a wide promenade running the length of the town.

The town is extremely popular for both holiday and retirement and the centre has an excellent range of independent shops and Tesco's supermarket. Bus and rail links give access to the bustling city of Norwich some 27 miles south, the nearby Georgian town of Holt is 6 miles south-west and the Victorian town of Cromer is just over 4 miles east along the coastline. There is a modern heath centre, dentist, theatre and library together with Reef Leisure Centre and a magnificent 18-hole cliff top golf course. The town plays host to several events throughout the year including The Viking Festival, Crab & Lobster Festival, Coastal Air Festival, Carnival and 1940's Weekend. If fitness is your thing there is also a park run every Saturday morning at 9am in Sheringham Park, owned by the National Trust.
 

Description Constructed by the reputable local developer Norfolk Homes this established linked-detached house has excellent gas centrally heated accommodation suited to both a growing family or perhaps a couple moving from a larger property seeking a home providing lower running costs and minimal maintenance. There are three bedrooms all of which have wardrobing and in particular the third which would also make an ideal dressing room or study whilst the principal has an en-suite shower room. The remaining tow bedrooms share a family bathroom.

On the ground floor there is a comfortable sitting room with archway through to a dining room, an ideal arrangement for entertaining and patio doors leading into a treble aspect garden room. There is a well fitted kitchen and utility plus a cloakroom off the hall. The attractive gardens, west facing at the rear have been designed for minimal maintenance.

The property does offer scope for some further up-dating but this has been reflected in the realistic asking price.

 

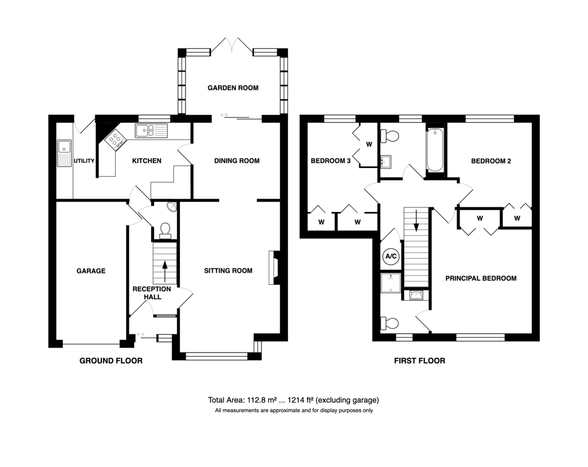
Reception Lobby 0' 4" x 2' 2" (0.1m x 0.66m) Quarry tiled floor, part glazed entrance door. 

Reception Hall 13' 5" x 5' 10" (4.09m x 1.78m) To include a carpeted staircase to the first floor, radiator, telephone point, central heating thermostat, door to garage, fitted mat, carpet, ceiling coving. 

Cloakroom 4' 6" x 2' 8" (1.37m x 0.81m) With coloured suite comprising of low-level WC and corner hand basin with mixer tap, pop-up waste and tarred splashback, carpet, extract fan, inset ceiling downlight, carpet. 

Sitting Room 15' 9" x 11' 10" (4.8m x 3.61m) into alcoves (front aspect) Coal-effect gas fire with composite marble surround and heart and decorative fireplace surround, TV point, double radiator, two wall light points, carpet, Artex ceiling, archway to: 

Dining Room 10' 1" x 9' 1" (3.07m x 2.77m) (Rear Aspect) Double radiator, two wall light points, carpet, ceiling coving, door to kitchen, sliding patio doors: 

Garden Room 11' 3" x 7' 0" (3.43m x 2.13m) (triple aspect) With radiator, ceramic tile floor, French doors to the rear garden. 

Kitchen 11' 0" x 9' 1" (3.35m x 2.77m) (rear aspect) Attractively fitted and comprising inset, 1.5 bowl stainless steel sink unit with mixer tap and cupboard under. Excellent range of base cupboard and drawer units with work surfaces over, space for fridge, space for freezer, part-tiled walls, range of matching wall cupboards together with display shelves and part concealed lighting under, integrated extractor hood, ceramic tiled flooring, fluorescent lighting, ceiling coving, door to the reception hall and arched opening: 

Utility Room 9' 4" x 9' 0" (2.84m x 2.74m) (rear aspect) Single drainer stainless steel sink unit with mixer tap and cupboard under, further adjacent cupboard and space and plumbing for an automatic washing machine and slimline dishwasher, tool cupboard, part-tiled walls, double wall cupboard, radiator, wall mounted Baxi gas fired boiler which serves the central heating and domestic hot water, ceramic tiled floor, fluorescent lighting, ceiling coving, part glazed door to the rear garden. 

ON THE FIRST FLOOR  

Landing 9' 0" x 3' 0" (2.74m x 0.91m) minimum With radiator, built-in airing cupboard housing the lagged hot water tank with fitted immersion heater and slatted shelving, access to roof space with loft ladder, carpet, ceiling coving. 

Principal Bedroom 12' 0" x 10' 5" (3.66m x 3.18m) (front aspect) Plus good-sized built-in mirror-fronted wardrobing, radiator, TV point, telephone point, carpet, ceiling coving. 

En-Suite Shower Room With coloured suite comprising of fully-tiled shower cubicle with independent Aqualisa shower unit, low-level WC and vanity hand basin with mixer tap, pop-up waste and cupboard under, part-tiled walls, shaver point, radiator, extractor fan and carpet. 

Bedroom 2 10' 1" x 10' 0" (3.07m x 3.05m) (rear aspect) Plus built-in mirror fronted double wardrobe, radiator, carpet and ceiling coving. A bright and airy room. 

Bedroom 3 12' 9" x 8' 4" (3.89m x 2.54m) (rear aspect) To include three sets of mirror-fronted built-in wardrobing, radiator, carpet, ceiling coving. 

Bathroom 7' 7" x 6' 8" (2.31m x 2.03m) (rar aspect) With coloured suite comprising of twin-grip panel bath with mixer tap and pop-up waste, together with Aqualisa independent shower over and shower screen, low level WC and vanity hand basin with mixer tap, pop-up waste and cupboard under, extensively tiled walls, radiator, shaver point, extractor fan, carpet. 

Outside The most attractive front garden is designed for low maintenance with a well-stocked border of spring flowers, perennials and conifer. The balance of the garden is laid to cobblestones together with established silver birch tree. A brick paviour path and gate lead to the side of the property. Outside light. A driveway with parking for one vehicle gives access to an attached garage 16 feet 7 x 8 feet 1 with electric roller door, power, light and personnel door to the reception hall. The attractive rear garden is once again designed for ease of maintenance with an extensive brick paviour patio, gravelled area beyond and a raised border with a variety of spring flowers, perennials, shrubs, ferns and conifer. There are two timber garden sheds. The whole garden is well screened by fencing. Outside tap and power point. 

Services All mains services are available 

Local Authority/Council Tax North Norfolk District Council, Holt Road, Cromer, NR27 9EN.
Telephone 01263513811. Tax Band C. 

EPC Rating The energy rating for this property is D.
A full energy performance certificate is available on request. 

Important Agent Note Intending purchasers will be asked to provide original identity
documentation and proof of address before solicitors are instructed. 

We Are Here To Help If your interest in this property is dependent on anything about the
property or its surroundings which are not referred to in the sale
particulars, please contact us before viewing and we will do our
best to answer any questions you may have. 

Property Ref: 57482_101301038598

Share:

Similar Properties

Sheringham

2 Bedroom Detached Bungalow | Guide Price £325,000

A well-presented, detached bungalow with mature gardens and garage situated in a sought after cul-de-sac close to the be...

Overstrand

2 Bedroom Detached Bungalow | £325,000

An established detached two bedroom bungalow on the North Norfolk coast with lovely gardens, sea views and a short walk...

Little Barningham, Nr Holt

2 Bedroom Detached Bungalow | £325,000

A surprisingly spacious and established semi-detached chalet style house offering scope for further improvement in the c...

Sheringham

3 Bedroom Townhouse | £335,000

Situated within yards of the town centre and with views towards the steam railway and sea, this immaculately presented m...

Trimingham

3 Bedroom Semi-Detached House | Guide Price £340,000

NO UPWARD CHAIN. A tastefully converted and charming Chapel dating from 1909 with a number of period features and sea vi...

Sheringham

2 Bedroom Detached House | Guide Price £350,000

A beautifully presented detached brick and flint house situated within a level walk of the town centre and beach and jus...

Watsons (Sheringham)

Sheringham, Norfolk, NR26 8RG

01263 823201

How much is your home worth?

Use our short form to request a valuation of your property.

Request a Valuation

Mortgage Calculator

Amount Borrowed: £
Total Amount Repayable: £
Total Monthly Payment: £
©2025 The Guild of Property Professionals. All rights reserved. Terms and Conditions | Privacy Policy | Cookie Policy | Complaints Policy | Members Login
The Guild of Property Professionals Trading Address: 121 Park Lane, London W1K 7AG. GPEA Limited. Registered in England & Wales.  Company No: 02819824.  Registered Office Address: 2 St. Stephen's Court, St. Stephen's Road, Bournemouth, Dorset, England, BH2 6LA.  VAT Registration No: 576 8795 61
Book a Property Valuation Update Cookies Preferences