Stonehill, Street

£299,950

3 Bedroom End of Terrace House for sale in Street

2 3 2
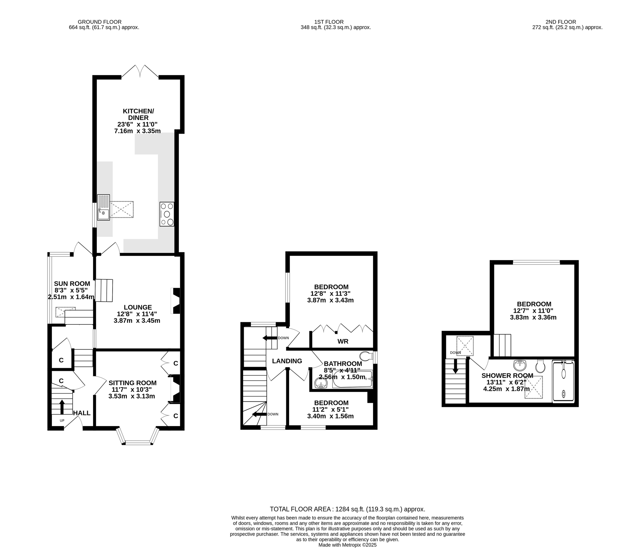
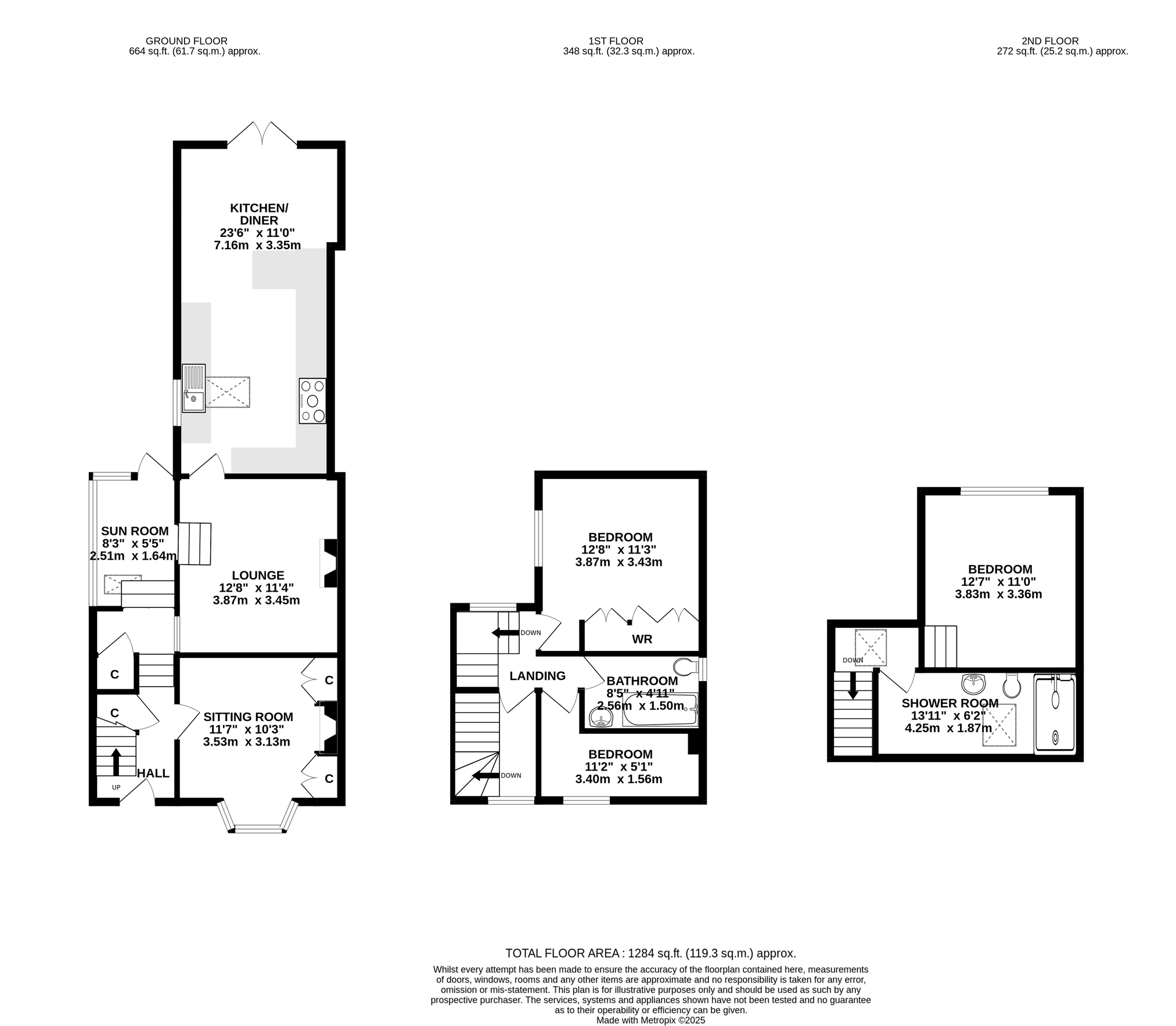
  • Characterful throughout, with high ceilings, flagstone floors, latch and brace doors, practical storage and a rear porch suited to a boot room.
  • Good size living room with a striking feature fireplace as the focal point, complemented by a bay window that floods the space with plenty of natural light.
  • A generously sized second reception room with a charming feature fireplace, offering versatility as a formal dining room, study or additional living space.
  • Neatly presented kitchen, fitted with shaker style wall, base and drawer units, range style cooker, belfast sink and space for undercounter appliances and freestanding fridge/freezer.
  • Inviting dining area with French doors opening to the garden, ideal for family meals and entertaining.
  • Arranged over two floors, the home affords three bedrooms, including two well proportioned double bedrooms.
  • Occupying the top-floor the principle bedroom, offers a light-filled hidden retreat complete with its own ensuite shower room.
  • An enclosed rear garden combining patio and gravel seating, lawn edged with shrubs and flowers, and a picturesque garden well adding charm.
  • Offering a private off-road parking space to the rear, along with convenient on-street parking at the front.

Advantageously available with no onward chain is this deceptively spacious three-bedroom end of terrace home, beautifully constructed in traditional Blue Lias stone. Full of characterful features throughout, this hidden gem offers far more than meets the eye and is not to be overlooked. Ready for those seeking a home where they can simply drop their bags and start enjoying, it combines charm, practicality and convenience.

Location
Stonehill is a well regarded residential area situated just off the High Street within walking distance of amenities and bus stop. Street is a thriving mid Somerset town famous as the home of Millfield School and Clarks Shoes. Street provides an attractive shopping centre which includes the Clarks Village factory outlet complex, popular with shoppers from a wide area. The town also provides good primary and secondary schooling, Strode Sixth Form College, Strode Theatre, indoor and open air swimming pools and a choice of pubs and restaurants. An active community for all ages having a range of groups and clubs.

Directions
From the town centre proceed in a westerly direction along the High Street and turn left into Stonehill. At the top of the hill (sharp left hand bend) turn right where the property will soon be identified on the left hand side.

Material Information
All available property information can be provided upon request from Holland & Odam. For confirmation of mobile phone and broadband coverage, please visit checker.ofcom.org.uk

Important Information

  • This is a Freehold property.

Property Ref: 552333_SCJ798285

Share:

Similar Properties

Meadow Lane, Walton

3 Bedroom Detached House | £299,950

A well maintained, detached house built in 1999 within a popular village development and enjoying a lovely, mature garde...

Queens Road, Street

3 Bedroom Semi-Detached House | £299,950

This generously proportioned and well-presented three-bedroom semi-detached family home is sure to be popular. Convenien...

Underhill Road, Street

3 Bedroom Bungalow | £299,500

Attractive bungalow occupying a good size corner plot on a road of similar properties, just a short distance from the to...

The Mead, Street

3 Bedroom Detached House | £305,000

This well-presented three-bedroom detached family home is located on the outskirts of town, within easy walking distance...

Mill Lane, Shapwick

3 Bedroom Semi-Detached House | £309,950

Nestled in a peaceful country setting on the edge of a charming village, this attractive three-bedroom semi-detached hom...

Willmotts Close, Chilton Polden

2 Bedroom Bungalow | £309,950

Set within a peaceful cul-de-sac in the ever-popular village of Chilton Polden, this attractive link-detached bungalow o...

Holland & Odam (Street)

Street, Somerset, BA16 0BJ

01458 841411

How much is your home worth?

Use our short form to request a valuation of your property.

Request a Valuation

Mortgage Calculator

Amount Borrowed: £
Total Amount Repayable: £
Total Monthly Payment: £
©2025 The Guild of Property Professionals. All rights reserved. Terms and Conditions | Privacy Policy | Cookie Policy | Complaints Policy | Members Login
The Guild of Property Professionals Trading Address: 121 Park Lane, London W1K 7AG. GPEA Limited. Registered in England & Wales.  Company No: 02819824.  Registered Office Address: 2 St. Stephen's Court, St. Stephen's Road, Bournemouth, Dorset, England, BH2 6LA.  VAT Registration No: 576 8795 61
Book a Property Valuation Update Cookies Preferences