Beech Road, Alresford

£635,000

4 Bedroom Detached House for sale in Alresford

2 4 2
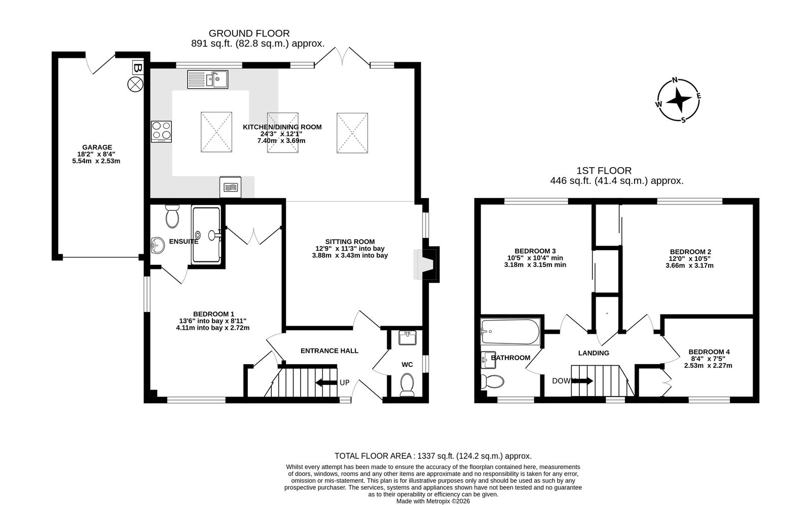
  • Detached Four Bedroom Family House
  • Conveniently Located close to Town Centre and Schools
  • Stunning Kitchen/Dining Room Extension with Rooflights
  • Main Bedroom on Ground Floor with Ensuite Shower Room
  • Three further Bedrooms and Bathroom
  • Private and Secluded Rear Garden
  • Garage and Driveway Parking

Conveniently located within 10 minutes' walk of the town centre, this nicely presented four-bedroom detached house offers spacious living with the convenience of a single garage, driveway parking and a lovely garden. This lovely family home has been thoughtfully extended to create a wonderful open-plan kitchen and dining space, which spans the rear of the house, linking through naturally to the original house. An array of solar panels on the roof reduce dependency on the National Grid, and there is a 7kw electric car charging point on the driveway. 


Upon entering, you are greeted by an inviting hallway, where there is a cloakroom and stairs to the first floor. A door opens to a cosy sitting room with a gas coal-effect fire with remote control, and plenty of space for sofas. The room is open to the fabulous dining space and kitchen, which features underfloor heating and 3 skylight windows allowing plenty of light to flood inside. The kitchen features a range of built-in appliances, wooden worktops, a breakfast bar and dining space. French doors open out onto a patio and the garden. 


Off the hall is the main bedroom, which is a generous double room with dual aspect windows, a dressing area with built-in wardrobes and a smart ensuite bathroom. 


On the light and airy first floor landing is a linen cupboard and access hatch to the loft. Bedrooms 2 and 3 are both double rooms with built-in wardrobes. The third bedroom is a single room, also with a built-in wardrobe. The bathroom features a modern white bath suite. 


Outside, the property benefits from a secluded garden, offering a private outdoor space for enjoyment and al-fresco dining. There is driveway parking to the front of the property, leading to a single garage, which provides secure parking and additional storage. With a floor area of 1337 sq ft, this home offers a fantastic footprint for comfortable family living.


Beech Road is ideally situated in Alresford, a charming market town known for its picturesque surroundings and vibrant community. Residents benefit from easy access to local amenities, including independent shops, cafes, and restaurants. The area is well-regarded for its green spaces and country walks, providing a wonderful quality of life. Excellent transport links connect Alresford to Winchester, Alton and Petersfield, making it an ideal location for commuters and those seeking a blend of town and country living.


SERVICES
We understand that mains electricity, gas, water and drainage are connected. The gas boiler was installed in 2016. There are solar panels on the roof, which are owned by the property. 


LOCAL AUTHORITY
Winchester City Council
Council Tax Band: E


DIRECTIONS
From the centre of Alresford, proceed down West Street and turn left into Jacklyn's Lane (sign posted to Cheriton). After the old railway bridge, turn left into Nursery Road and, about half way along, turn right into Beech Road. Continue ahead and turn left, where No. 25 will be found on the left hand side. 


 

Important Information

  • This is a Freehold property.
  • This Council Tax band for this property is: E

Property Ref: 420_1112768

Share:

Similar Properties

Beech Road, Alresford

4 Bedroom Detached House | £625,000

A lovely house with a double-height extension offering plenty of versatile accommodation, ideal for family living and en...

Middle Brook Street, Winchester

3 Bedroom Terraced House | £625,000

A charming mid-terrace character property in the heart of Winchester enjoying lovely views directly opposite Holy Trinit...

April Cottage, Bramdean, Alresford

3 Bedroom Cottage | £599,950

A charming 17th century character cottage with original features and a lovely timber-framed garden room. April Cottage i...

Bramble Hill, Alresford

3 Bedroom Bungalow | £640,000

A spacious bungalow located in a popular and peaceful cul-de-sac  and within walking distance of the town centre. The pr...

Mallard Close, The Dean, Alresford

3 Bedroom Semi-Detached Bungalow | £645,000

A well-presented 2/3 bedroom extended bungalow situated in a highly convenient location close to the town centre and wit...

Benenden Green, Alresford

4 Bedroom Detached House | £650,000

Well-presented detached home occupying an elevated position. Extended to offer spacious accommodation including 4 bedroo...

Hellards Estate Agents (Alresford)

11 Broad Street, Alresford, Hampshire, SO24 9AR

01962 736333

How much is your home worth?

Use our short form to request a valuation of your property.

Request a Valuation

Mortgage Calculator

Amount Borrowed: £
Total Amount Repayable: £
Total Monthly Payment: £
©2026 The Guild of Property Professionals. All rights reserved. Terms and Conditions | Privacy Policy | Cookie Policy | Complaints Policy | Members Login
The Guild of Property Professionals Trading Address: 121 Park Lane, London W1K 7AG. GPEA Limited. Registered in England & Wales.  Company No: 02819824.  Registered Office Address: 2 St. Stephen's Court, St. Stephen's Road, Bournemouth, Dorset, England, BH2 6LA.  VAT Registration No: 576 8795 61
Book a Property Valuation Update Cookies Preferences