Beech Road, Alresford

£625,000

4 Bedroom Detached House for sale in Alresford

2 4 2
  • Substantial Detached Family House
  • Double-Height Extension to the Rear
  • 3/4 Bedrooms, 2 Bathrooms and Shower Room
  • Plenty of Versatile Ground Floor Living Space
  • Attractive West-Facing Garden and Conservatory
  • Garage/Workshop and Ample Driveway Parking

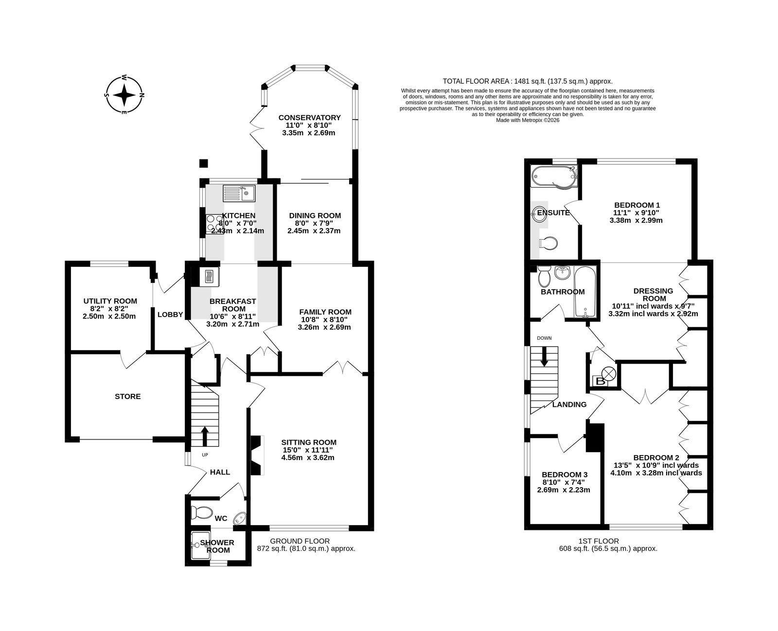
Extended on the ground and first floors, this spacious property offers plenty of versatile accommodation, ideal for family living and entertaining. The house is situated on a private plot with driveway parking, a large conservatory, and an attractive, westerly-facing garden. Upstairs, there is space for 4 bedrooms, but the layout currently comprises 3 bedrooms, a dressing room, en-suite and family bathroom.   


The front door is to the side of the house and opens to a hall, with stairs to the first floor, an understairs cupboard and a cloakroom with a shower. The comfortable sitting room features a fireplace and window to the front, with double doors leading through to the family room, dining room and conservatory, where French doors open to the garden. Off the hall is the fitted kitchen and breakfast room. A door opens to a rear porch with access into the garage, which has been converted into a workshop and storage room. It could be converted back into a garage, if desired.  


Upstairs, there is a large main bedroom suite to the rear of the house, which includes a sizeable bedroom and dressing area with built-in wardrobes and an en-suite bathroom featuring a shower bath. The second bedroom has a full wall of built-in wardrobes and view over the driveway. The third bedroom is currently used as a study. The family bathroom is located off the landing. 


Outside, the block paviour driveway offers ample parking for several cars and leads to the garage, which is currently used as a store room and workshop. The attractive rear garden is surrounded by fencing and has a lawn, a selection of flower/shrub borders and a paved terrace. 


Alresford is a beautiful Georgian town known for its variety of independent shops, restaurants and inns located in stunning surroundings on the edge of the South Downs National Park. Attractions include the Watercress steam railway, schools for infant, junior and secondary education, several churches and an active and inclusive community. The cathedral city of Winchester is about 7 miles away and there is easy access to the south coast, the midlands and London via the road network. There is also mainline rail access to London from both Winchester and Alton. Southampton airport is only about half an hour away by car. 


SERVICES
We understand that mains water, electricity, gas and drainage services are connected. 


LOCAL AUTHORITY INFORMATION
Winchester City Council 
Council Tax Band: G


DIRECTIONS
From the centre of Alresford, proceed down West Street and turn left into Jacklyn's Lane (sign posted to Cheriton). After the old railway bridge, turn left into Nursery Road and turn right into Beech Road. Number 12 will be found on the right hand side.
What3words///makes.return.screen



 


 


                                                                                                                                                                                                                                                                      


Important Information

  • This is a Freehold property.
  • This Council Tax band for this property is: E

Property Ref: 420_1374363

Share:

Similar Properties

Middle Brook Street, Winchester

3 Bedroom Terraced House | £625,000

A charming mid-terrace character property in the heart of Winchester enjoying lovely views directly opposite Holy Trinit...

April Cottage, Bramdean, Alresford

3 Bedroom Cottage | £599,950

A charming 17th century character cottage with original features and a lovely timber-framed garden room. April Cottage i...

Orchard Dean, The Dean, Alresford

3 Bedroom Terraced House | £599,950

A light and airy home in a small development for the over 55's situated in the centre of the town. Braeburn Cottage occu...

Beech Road, Alresford

4 Bedroom Detached House | £635,000

A nicely presented modern home, which has been extended to create a wonderful open-plan kitchen and dining space, ideal...

Bramble Hill, Alresford

3 Bedroom Bungalow | £640,000

A spacious bungalow located in a popular and peaceful cul-de-sac  and within walking distance of the town centre. The pr...

Mallard Close, The Dean, Alresford

3 Bedroom Semi-Detached Bungalow | £645,000

A well-presented 2/3 bedroom extended bungalow situated in a highly convenient location close to the town centre and wit...

Hellards Estate Agents (Alresford)

11 Broad Street, Alresford, Hampshire, SO24 9AR

01962 736333

How much is your home worth?

Use our short form to request a valuation of your property.

Request a Valuation

Mortgage Calculator

Amount Borrowed: £
Total Amount Repayable: £
Total Monthly Payment: £
©2026 The Guild of Property Professionals. All rights reserved. Terms and Conditions | Privacy Policy | Cookie Policy | Complaints Policy | Members Login
The Guild of Property Professionals Trading Address: 121 Park Lane, London W1K 7AG. GPEA Limited. Registered in England & Wales.  Company No: 02819824.  Registered Office Address: 2 St. Stephen's Court, St. Stephen's Road, Bournemouth, Dorset, England, BH2 6LA.  VAT Registration No: 576 8795 61
Book a Property Valuation Update Cookies Preferences