Old Saw Mill Place, Little Chalfont, Amersham, HP6

Guide Price
£830,000

4 Bedroom Semi-Detached House for sale in Amersham

3 4 3
  • Four Bedroom Semi Detached House
  • Three Reception Rooms
  • Under Floor Heating to Ground Floor
  • Two Ensuites
  • Excellent Storage Throughout
  • Well Presented Southerly Garden
  • Close to All Amenities and Excellent Local Schools
  • Electric Car Charging
  • No Onward Chain

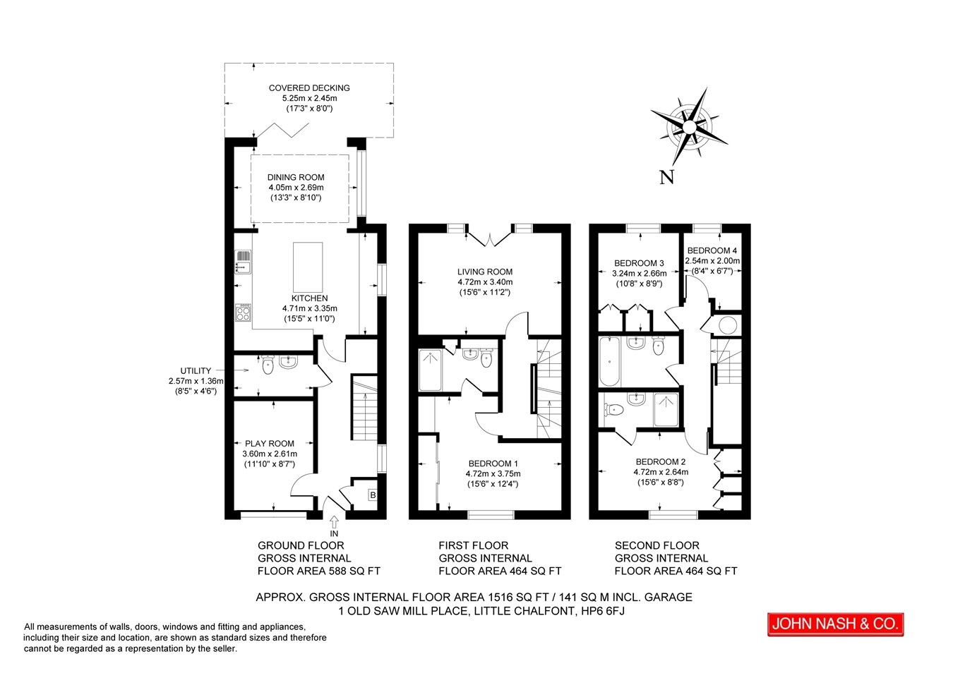
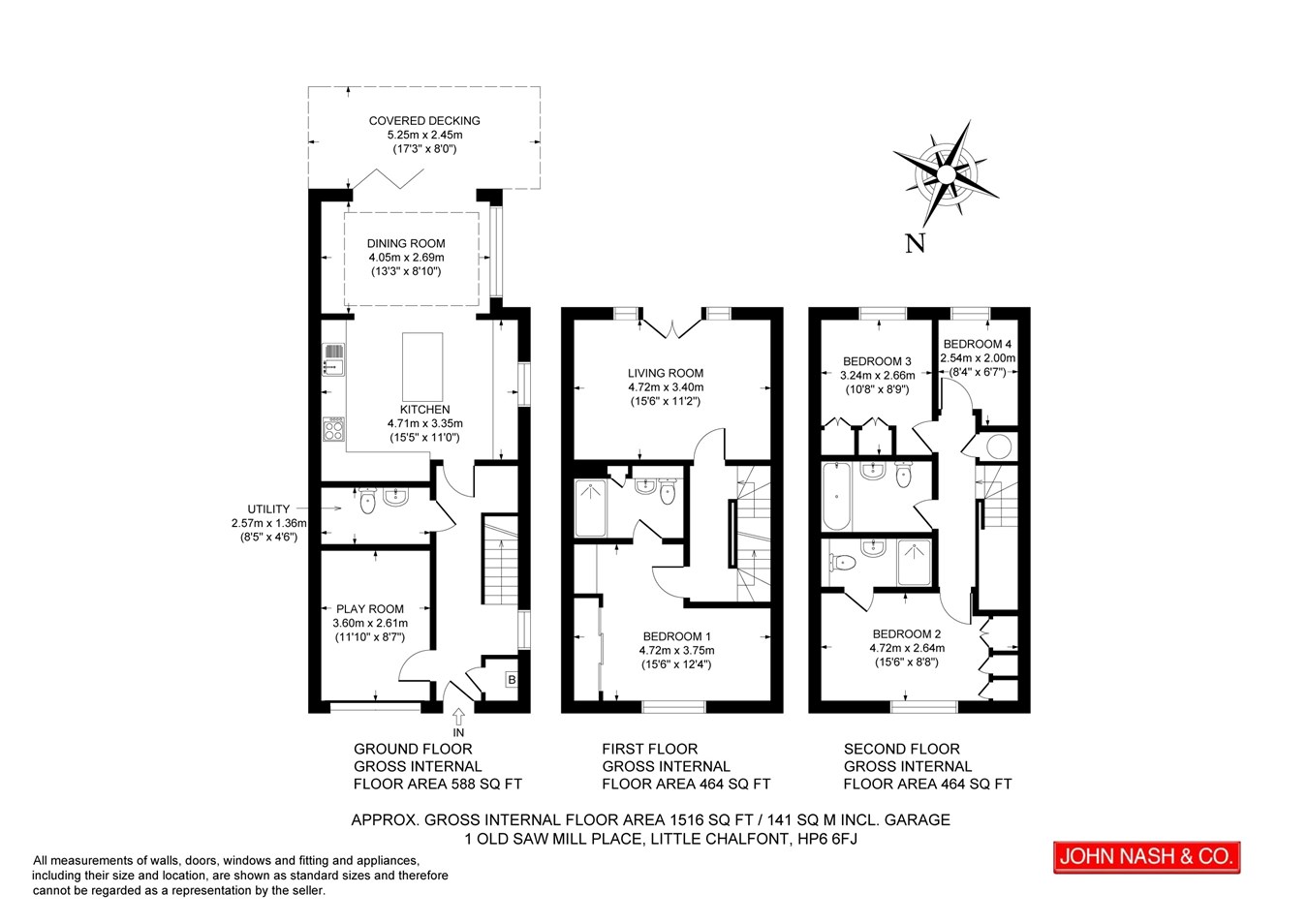
A modern and contemporary four bedroom family home with accommodation over three floors and featuring a stunning open plan kitchen with granite worksurfaces and dining area with vaulted skylight and bifold doors to the garden. This home is being sold with no onward chain and is in ready to move in condition with many upgrades to the property over the past few years including a garage conversion, new flooring and additional storage throughout.Ground Floor
The Entrance Hall leads to the attractive and bright kitchen with a range of cupboards, integrated appliances, granite worktops and a central island breakfast bar opening into the Dining Area with a stunning skylight, built in cabinetry and bifold doors onto the garden patio. There is a a further Reception room to the Ground Floor which can have a multitude of uses such as a Study, Playroom or Ground Floor Bedroom with the Cloakroom/Utility room next door which could be converted to a downstairs shower room.

First Floor
To the First Floor a lovely juliette balcony in the spacious Living Room overlooks the rear garden. The Master Bedroom is on this floor which hosts a modern Ensuite Shower Room and a full wall length wardrobe cupboard with built in drawers and additional wall mounted storage units.

Second Floor
Three further Bedrooms are located on this floor with another modern Ensuite Shower Room and a white suite Family Bathroom. A deep airing cupboard houses the hot water cylinder with excellent storage and Loft access is obtained from this floor with a large opening and new drop down ladder.

Property Enhancements
* Garage Conversion
* New Flooring and Carpeting
* Additional Storage Throughout
* Electric Blinds to New Skylight in Dining Room
* New Breakfast Bar Worktop and Back Splashes
* New Five Ring Gas Hob
* Heightened Fence for Privacy
* New Back Gate/Door
* Installation of Water Softener
* New Hot Water and Drinking Tap

Council Tax Band F £3,460.16 2025/2026 Rates

Location
Little Chalfont Village provides a varied selection of shops, schooling including Dr Challoner's High School (girls Grammar), and Chalfont & Latimer railway station offering services to London. The village is situated off the A404 with road links to the M25 for the M4, M40 and M1 motorways. Amersham is two miles away with a wider range of shops and facilities.

Important Information

  • This is a Freehold property.

Property Ref: 29641873

Share:

Similar Properties

Acres End, Amersham, HP7

3 Bedroom Detached House | Guide Price £795,000

This three bedroom detached property boasts a modern interior in excellent condition situated on a good size plot with a...

Browns Road, Holmer Green, High Wycombe, HP15

4 Bedroom Detached House | £795,000

This spacious Four Double Bedroom Home offers exceptional space for modernisation and extension (STPP) with its most gen...

High View Place, Amersham, HP7

3 Bedroom Semi-Detached House | £795,000

This IMMACULATELY PRESENTED three bedroom house, is conveniently located in a quiet cul-de-sac close to both Amersham on...

44 Stanley Hill, Amersham, HP7

3 Bedroom Semi-Detached House | Guide Price £850,000

John Nash & Co are pleased to welcome to the market this stunning three bedroom semi detached home, designed and built b...

Kings Lane, South Heath, Great Missenden, HP16

5 Bedroom End of Terrace House | £900,000

Heathfield Cottage is an impressive and generously proportioned five bedroom end of terrace residence, offering versatil...

Woodfield Park, Amersham, HP6

4 Bedroom Detached House | Guide Price £1,050,000

An attractively presented, four bedroom detached family home perfectly primed for either extending, subject to planning...

John Nash & Co (Amersham)

Amersham, Buckinghamshire, HP6 5BX

01494 725005

How much is your home worth?

Use our short form to request a valuation of your property.

Request a Valuation

Mortgage Calculator

Amount Borrowed: £
Total Amount Repayable: £
Total Monthly Payment: £
©2026 The Guild of Property Professionals. All rights reserved. Terms and Conditions | Privacy Policy | Cookie Policy | Complaints Policy | Members Login
The Guild of Property Professionals Trading Address: 121 Park Lane, London W1K 7AG. GPEA Limited. Registered in England & Wales.  Company No: 02819824.  Registered Office Address: 2 St. Stephen's Court, St. Stephen's Road, Bournemouth, Dorset, England, BH2 6LA.  VAT Registration No: 576 8795 61
Book a Property Valuation Update Cookies Preferences