Bramley Road, Berryfields, Aylesbury

Offers in excess of
£405,000

3 Bedroom Semi-Detached House for sale in Aylesbury

1 3 2
  • BERRYFIELDS
  • THREE BEDROOM SEMI-DETACHED TOWN HOUSE
  • NO UPPER CHAIN
  • DRIVEWAY PARKING FOR TWO CARS
  • TOP FLOOR MASTER BEDROOM
  • ENCLOSED REAR GARDEN
  • WALKING DISTANCE TO SCHOOLS
  • DOWNSTAIRS CLOAKROOM

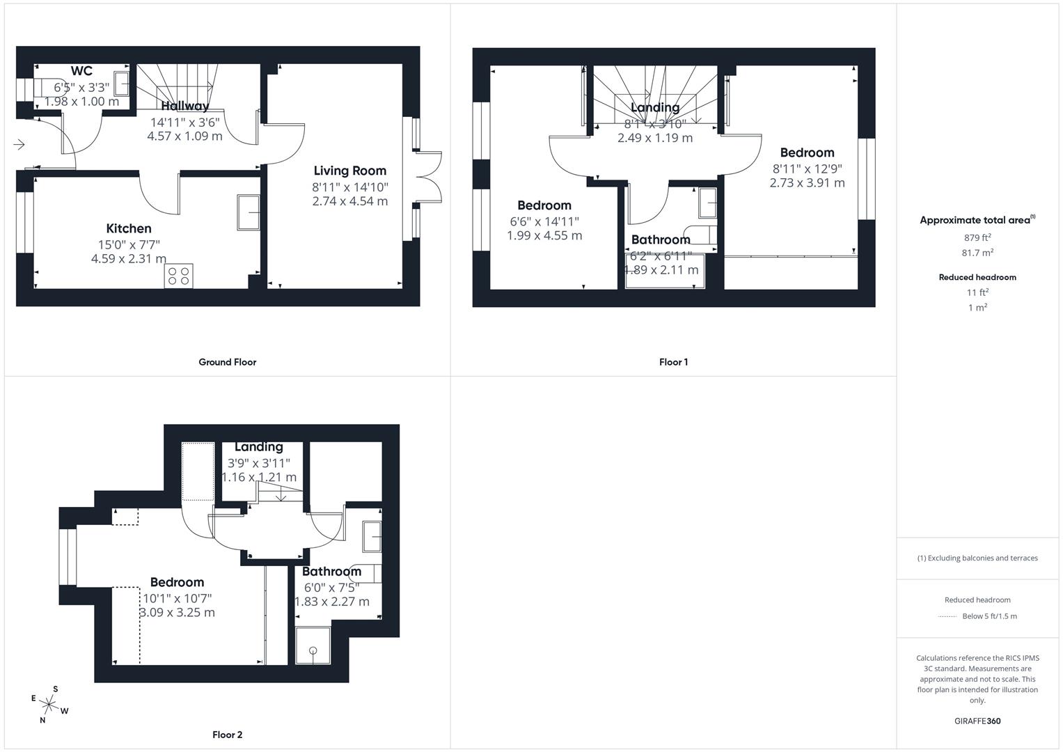
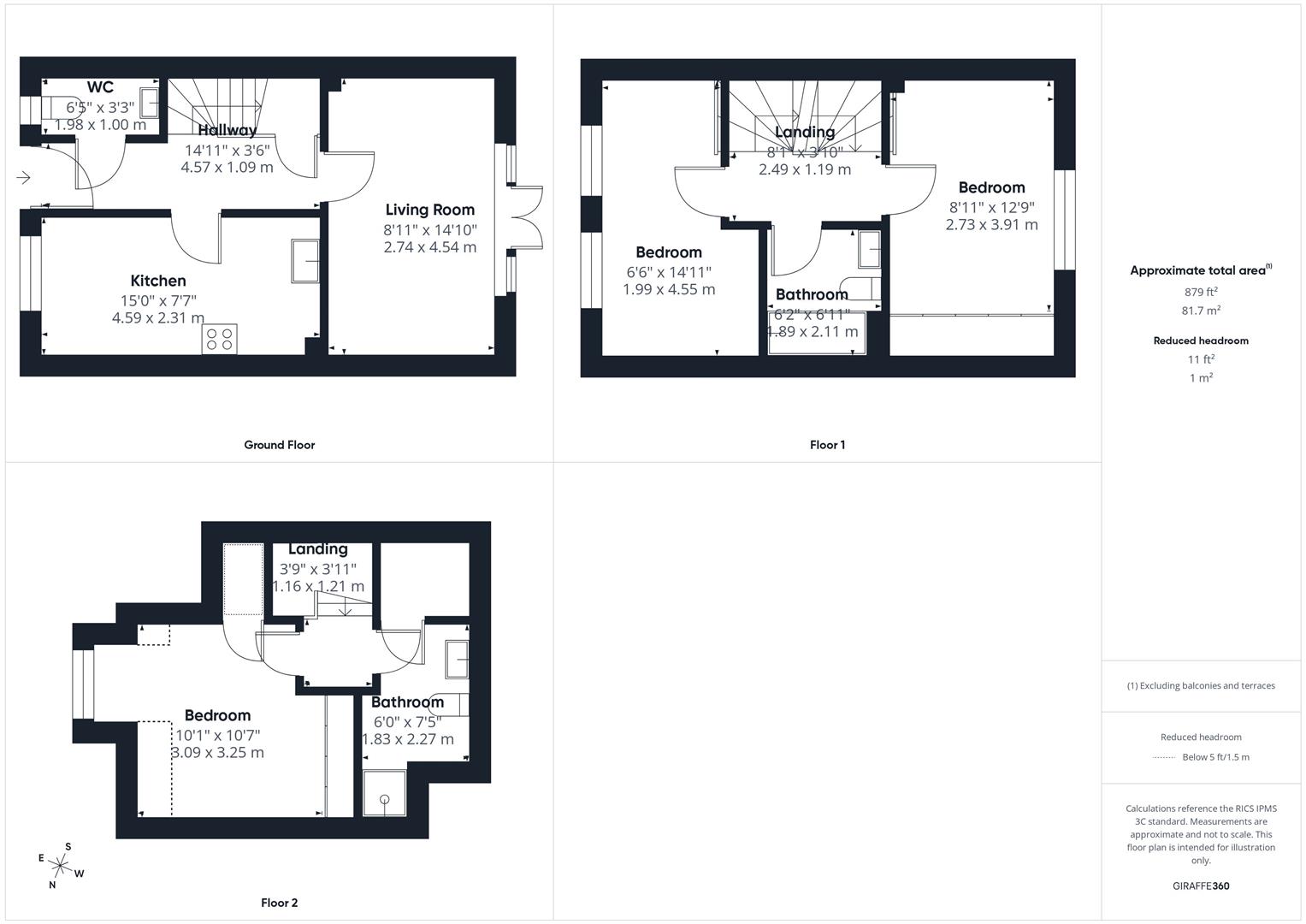
This three bedroom semi-detached town house, situated in the popular Berryfields development, is offered to the market with no upper chain. The ground floor features a modern kitchen, convenient cloakroom and a spacious living room with access to the rear garden. On the first floor, you'll find two bedrooms and a family bathroom. The top floor is dedicated to the master bedroom complete with its own shower room. Outside, the property benefits from an enclosed rear garden and driveway parking.

Location - Berryfields is a modern development situated on the northern outskirts of Aylesbury surrounded by open countryside. The development benefits from good transport links by road towards Bicester/M40 and back to the town centre. The development is home to Aylesbury Parkway Station which offers mainline services into London Marylebone in just under an hour. There is a parade of shops and a Miller and Carter restaurant on the development as well as a secondary school and two primary schools.

Accommodation - Upon entering, the entrance hall gives access to the principal ground-floor rooms and features stairs to the first floor, a useful storage cupboard and a convenient cloakroom. The kitchen is well-appointed, offering space for a cooker, fridge, dishwasher and washing machine, along with room for a small dining set. To the rear, the living room provides a bright and welcoming space, benefitting from double doors that open directly onto the garden.

The first floor comprises two double bedrooms along with the family bathroom, fitted with a white suite.

The top floor is dedicated to the master bedroom, complete with built-in wardrobes and a shower room, which also includes its own storage cupboard.

Outside, the property enjoys an enclosed rear garden, featuring a patio area, lawn, garden shed and side gate access. To the side, there is driveway parking for two cars, adding to the convenience this home offers.

Property Ref: 34332842

Share:

Similar Properties

Welbeck Avenue, Bedgrove, Aylesbury

2 Bedroom Bungalow | Offers in excess of £400,000

A two bedroom semi-detached bungalow situated in the highly sought after Bedgrove area. The property offers a living roo...

Herman Street, Berryfields, Aylesbury

3 Bedroom End of Terrace House | Offers in excess of £400,000

A well presented three bedroom end-of-terrace home arranged over three floors in the popular Berryfields development, cl...

Broughton Avenue, Broughton, Aylesbury

3 Bedroom Semi-Detached House | £400,000

A three bedroom semi-detached house in the sought-after Broughton area, offered with no upper chain. The property requir...

Austen Place, Haydon Hill, Aylesbury

3 Bedroom Semi-Detached House | Offers in excess of £410,000

A three bedroom semi-detached home situated in the Haydon Hill area, close to local amenities, schools and transport lin...

Paddington Lane, Kingsbrook, Aylesbury

4 Bedroom Semi-Detached House | Guide Price £415,000

A modern 3/4 bedroom semi-detached home located in the new & popular Kingsbrook development. Set over three floors, this...

Paradise Orchard, Berryfields, Aylesbury

4 Bedroom Terraced House | £425,000

A four bedroom extended family home situated in the popular Berryfields development, within walking distance of schools,...

George David & Co (Aylesbury)

Aylesbury, Buckinghamshire, HP20 1SE

01296 393393

How much is your home worth?

Use our short form to request a valuation of your property.

Request a Valuation

Mortgage Calculator

Amount Borrowed: £
Total Amount Repayable: £
Total Monthly Payment: £
©2026 The Guild of Property Professionals. All rights reserved. Terms and Conditions | Privacy Policy | Cookie Policy | Complaints Policy | Members Login
The Guild of Property Professionals Trading Address: 121 Park Lane, London W1K 7AG. GPEA Limited. Registered in England & Wales.  Company No: 02819824.  Registered Office Address: 2 St. Stephen's Court, St. Stephen's Road, Bournemouth, Dorset, England, BH2 6LA.  VAT Registration No: 576 8795 61
Book a Property Valuation Update Cookies Preferences