Paradise Orchard, Berryfields, Aylesbury

Offers in excess of
£490,000
SSTC
This property listing is now SSTC

3 Bedroom Detached House for sale in Aylesbury

2 3 2
  • DETACHED THREE BEDROOM FAMILY HOME
  • POPULAR BERRYFIELDS DEVELOPMENT
  • STYLISH KITCHEN WITH BREAKFAST BAR AND MODERN FITTED UNITS
  • GARAGE AND DRIVEWAY PARKING FOR MULTIPLE VEHICLES
  • WITHIN WALKING DISTANCE TO AYLESBURY PARKWAY STATION AND LOCAL SCHOOLS
  • VERSATILE DINING ROOM/FAMILY ROOM ADJOINING THE KITCHEN
  • GARDEN WITH PATIO, LAWN AREAS AND BUILT-IN SEATING AREA
  • CONTEMPORARY FAMILY BATHROOM WITH QUALITY FITTINGS
  • MODERN EN SUITE TO MASTER BEDROOM
  • PERFECT FOR FAMILIES AND COMMUTERS ALIKE

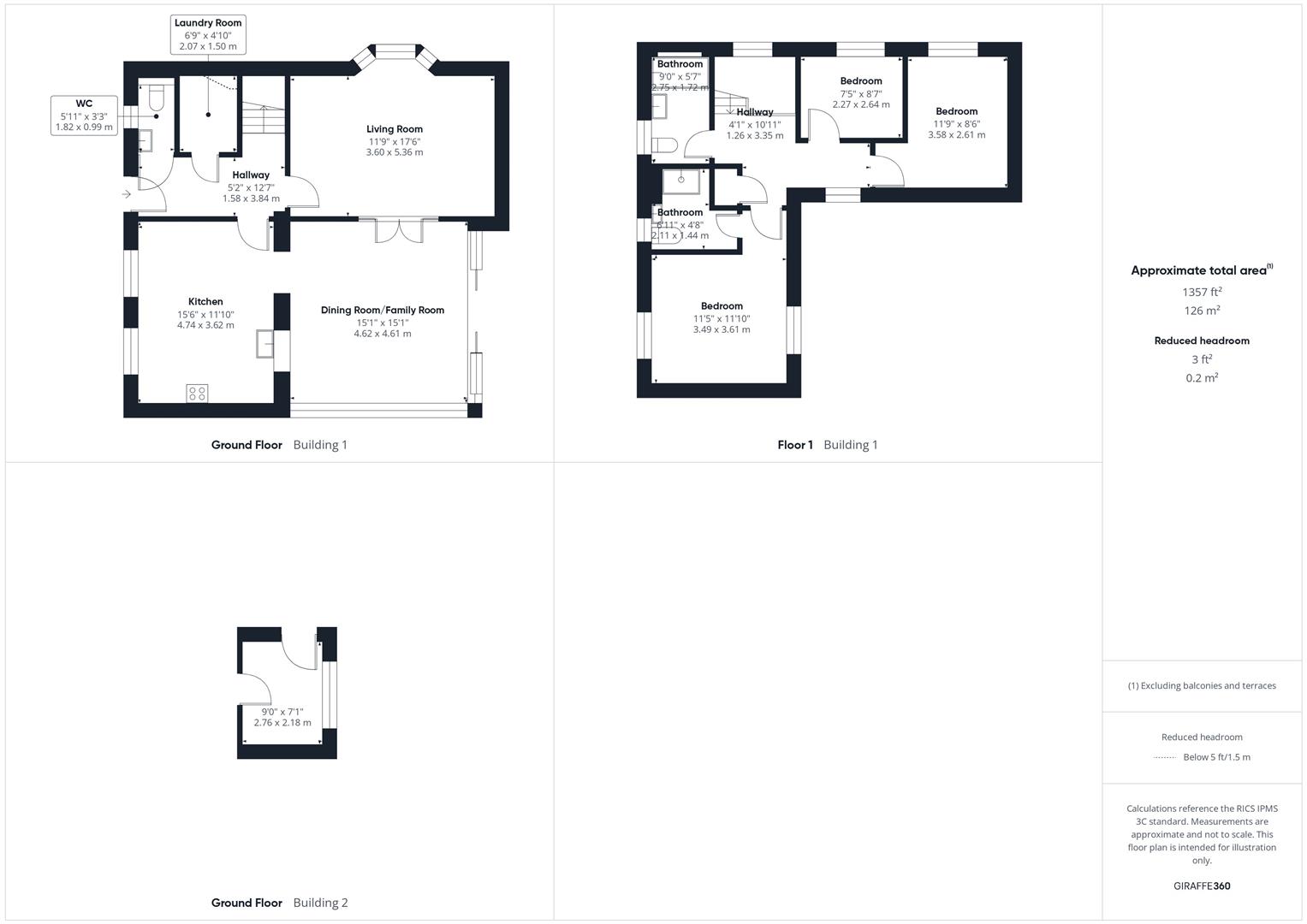
A well presented three bedroom detached family home located in the popular Berryfields development, within walking distance of Aylesbury Parkway Station and local schools. This spacious property offers versatile accommodation including a bright living room, modern kitchen, dining room/family room, downstairs cloakroom, three bedrooms with an en suite to the master, and a contemporary family bathroom. Externally, the home benefits from a landscaped rear garden, garage, dedicated office space, and driveway parking. Ideal for families seeking comfort, convenience, and excellent transport links.

Location - Berryfields is a modern development situated on the northern outskirts of Aylesbury surrounded by open countryside. The development benefits from good transport links by road towards Bicester/M40 and back to the town centre. The development is home to Aylesbury Parkway Station which offers mainline services into London Marylebone in just under an hour. There is a parade of shops and a Miller and Carter restaurant on the development as well as a secondary school and two primary schools, Berryfields C Of E Primary and Green Ridge Primary Academy.

Accommodation - Upon entering the home, you are welcomed into a generous entrance hall, providing access to a convenient cloakroom and a practical utility room with space for appliances. The bright and airy living room features a large bay window that floods the space with natural light, creating a warm and inviting atmosphere.

There is a stylish and contemporary kitchen, thoughtfully designed with a breakfast bar and a range of integrated appliances, including a fridge/freezer, dishwasher and wine cooler. There is ample space for a range-style cooker, making this kitchen a true focal point for family life and entertaining. Adjacent to the kitchen is a versatile dining room/family room, offering additional living space that can be adapted to suit your needs.

Upstairs, the first-floor landing features an airing cupboard and loft access, leading to three bedrooms. The master bedroom benefits from a modern en suite shower room, while the remaining bedrooms are served by a sleek and stylish contemporary family bathroom.

Outside, the landscaped rear garden is a true highlight of the property, thoughtfully designed for relaxation and entertaining. It includes a patio area, lawn, built-in seating with raised planters, and a raised decking area complete with a pergola-perfect for outdoor dining and summer gatherings.

The garage has been partly converted into a dedicated office space, ideal for those working from home, while still retaining useful storage. To the front of the property, there is driveway parking, providing off-road space for multiple vehicles.

This exceptional home combines modern style with practical living and is ready for immediate occupation.

Property Ref: 33983344

Share:

Similar Properties

Cranesbill Way, Kingsbrook, Aylesbury

4 Bedroom Detached House | Offers in excess of £490,000

A four bedroom detached home located in the sought after Kingsbrook development, offering excellent access to local scho...

Lower Street, Quainton, Buckinghamshire

3 Bedroom Semi-Detached House | Offers in excess of £485,000

A charming three bedroom period property located in the popular village of Quainton, within the catchment area for the h...

Pemberton Close, Elm Farm, Aylesbury

4 Bedroom Semi-Detached House | Offers in excess of £485,000

Situated in the Elm Farm area, this well presented four bedroom semi-detached home offers spacious and versatile living...

Lark Vale, Watermead, Aylesbury

4 Bedroom Link Detached House | £495,000

A stunning FOUR BEDROOM link detached home situated within walking distance of the LAKE AND PIAZZA on the popular WATERM...

Tring Road, Aylesbury, Buckinghamshire

3 Bedroom End of Terrace House | £500,000

A spacious three bedroom end of terrace house situated on Tring Road, ideally located close to the Grammar Schools, town...

Broughton Avenue, Broughton, Aylesbury

4 Bedroom Semi-Detached House | Offers in region of £500,000

A spacious four bedroom semi-detached home located in the Broughton area, ideally positioned close to well-regarded scho...

George David & Co (Aylesbury)

Aylesbury, Buckinghamshire, HP20 1SE

01296 393393

How much is your home worth?

Use our short form to request a valuation of your property.

Request a Valuation

Mortgage Calculator

Amount Borrowed: £
Total Amount Repayable: £
Total Monthly Payment: £
©2026 The Guild of Property Professionals. All rights reserved. Terms and Conditions | Privacy Policy | Cookie Policy | Complaints Policy | Members Login
The Guild of Property Professionals Trading Address: 121 Park Lane, London W1K 7AG. GPEA Limited. Registered in England & Wales.  Company No: 02819824.  Registered Office Address: 2 St. Stephen's Court, St. Stephen's Road, Bournemouth, Dorset, England, BH2 6LA.  VAT Registration No: 576 8795 61
Book a Property Valuation Update Cookies Preferences