Lark Vale, Watermead, Aylesbury

£495,000
SSTC
This property listing is now SSTC

4 Bedroom Link Detached House for sale in Aylesbury

2 4 3
  • WATERMEAD
  • FOUR BED LINK DETACHED
  • STUNNING DORMER LOFT CONVERSION
  • GARAGE AND DRIVEWAY
  • TWO EN SUITE BATHROOMS
  • TWO RECEPTION ROOMS
  • UPVC CONSERVATORY
  • SECLUDED REAR GARDEN
  • AIR CON SYSTEM
  • KITCHEN WITH SOME FITTED APPLIANCES

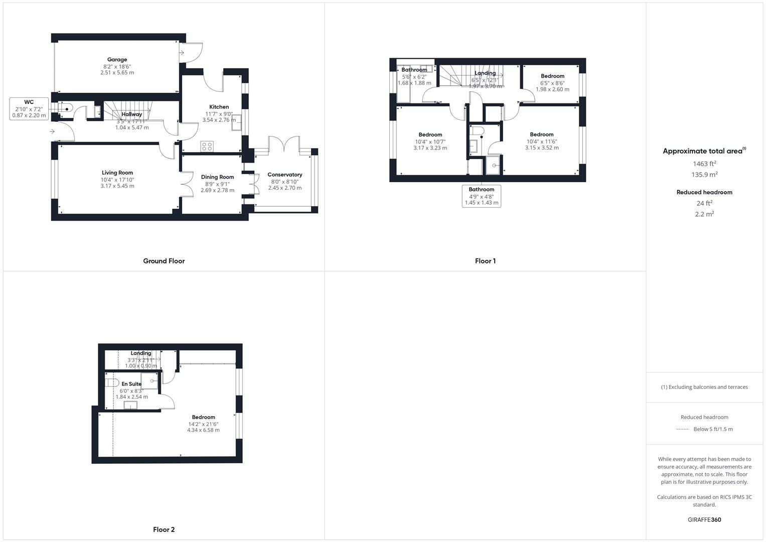
A stunning FOUR BEDROOM link detached home situated within walking distance of the LAKE AND PIAZZA on the popular WATERMEAD ESTATE. Benefits include: Garage and driveway - Dormer loft conversion with ensuite - Two reception rooms.

Location - Watermead - situated on the northern outskirts of the town, continues to be as popular today as it was when the very first homes were released in the late 1980's. With two magnificent lakes, a quaint village centre and open countryside on the doorstep a more picturesque setting would be hard to imagine. The location offers convenient access by road towards the M25 and M40 as well as being a short drive to Aylesbury Parkway Train Station offering mainline services to London Marylebone.

Accommodation - Upon entering the property, you are welcomed by a bright entrance hall with access to a convenient cloakroom. The generous living room features an electric fireplace, creating a cosy and inviting space for relaxation. Adjacent to the living room is a well-proportioned dining room, which opens directly into a light-filled conservatory-ideal for entertaining or enjoying views of the garden year-round.

The kitchen is well-appointed with a range of fitted units and boasts a pull-out larder, integrated washing machine and dishwasher, and space for an American-style fridge freezer and tumble dryer. A cooker is included, completing this highly functional space.

On the first floor, you will find three bedrooms, including one with an en suite shower room and a well-fitted family bathroom.

The second floor is dedicated to a luxurious master suite, featuring custom-fitted wardrobes and a stylish en suite shower room, offering privacy and a touch of elegance.

Outside, the secluded rear garden enjoys a patio area, lawn, storage shed and a private door to the garage. The property also benefits from a garage and a driveway providing off-road parking.

A key feature for the property is the versatile air conditioning system that goes beyond standard heating and cooling. It also functions as a dehumidifier and can operate as a fan without activating the cooling element-ideal for year-round climate control.

Notes - - Loft conversion completed in 2023

Property Ref: 33897025

Share:

Similar Properties

Paradise Orchard, Berryfields, Aylesbury

3 Bedroom Detached House | Offers in excess of £490,000

A well presented three bedroom detached family home located in the popular Berryfields development, within walking dista...

Farleigh Drive, Berryfields, Aylesbury

4 Bedroom Detached House | Offers in excess of £490,000

An attractive three/four bedroom detached home located in the popular Berryfields development, within walking distance o...

Cranesbill Way, Kingsbrook, Aylesbury

4 Bedroom Detached House | Offers in excess of £490,000

A four bedroom detached home located in the sought after Kingsbrook development, offering excellent access to local scho...

Tring Road, Aylesbury, Buckinghamshire

3 Bedroom End of Terrace House | £500,000

A spacious three bedroom end of terrace house situated on Tring Road, ideally located close to the Grammar Schools, town...

Tring Road, Aylesbury, Buckinghamshire

3 Bedroom Semi-Detached House | Offers in excess of £500,000

Three bedroom semi-detached house set on a generous plot on the south side of Aylesbury. Ideally located within walking...

Broughton Avenue, Broughton, Aylesbury

4 Bedroom Semi-Detached House | Offers in region of £500,000

A spacious four bedroom semi-detached home located in the Broughton area, ideally positioned close to well-regarded scho...

George David & Co (Aylesbury)

Aylesbury, Buckinghamshire, HP20 1SE

01296 393393

How much is your home worth?

Use our short form to request a valuation of your property.

Request a Valuation

Mortgage Calculator

Amount Borrowed: £
Total Amount Repayable: £
Total Monthly Payment: £
©2026 The Guild of Property Professionals. All rights reserved. Terms and Conditions | Privacy Policy | Cookie Policy | Complaints Policy | Members Login
The Guild of Property Professionals Trading Address: 121 Park Lane, London W1K 7AG. GPEA Limited. Registered in England & Wales.  Company No: 02819824.  Registered Office Address: 2 St. Stephen's Court, St. Stephen's Road, Bournemouth, Dorset, England, BH2 6LA.  VAT Registration No: 576 8795 61
Book a Property Valuation Update Cookies Preferences