Cranesbill Way, Kingsbrook, Aylesbury

Offers in excess of
£490,000
SSTC
This property listing is now SSTC

4 Bedroom Detached House for sale in Aylesbury

1 4 2
  • NEW KINGSBROOK DEVELOPMENT
  • FOUR BEDROOM DETACHED HOUSE
  • GARAGE, EV CHARGER & LARGE DRIVEWAY
  • MODERN KITCHEN/DINER WITH INTEGRATED APPLIANCES
  • EN SUITE TO MAIN BEDROOM
  • ENCLOSED REAR GARDEN
  • CLOSE TO SCHOOLS, LOCAL AMENITIES AND GOOD ROAD LINKS
  • UTILITY AND DOWNSTAIRS CLOAKROOM

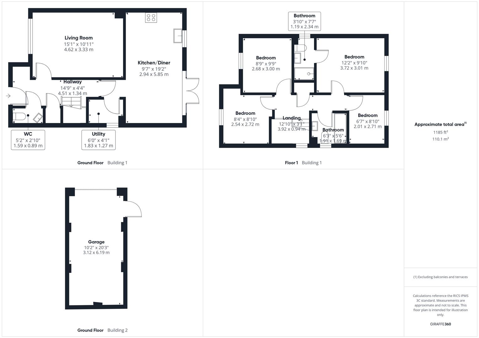
A four bedroom detached home located in the sought after Kingsbrook development, offering excellent access to local schools, amenities and major road links. The property features a modern kitchen/diner, spacious living room, convenient cloakroom, and a utility room on the ground floor. Upstairs provides four well proportioned bedrooms, including a master with en suite, plus a contemporary family bathroom. Outside boasts a private rear garden, along with a garage and driveway providing ample parking. Perfect for families seeking comfort, convenience and a vibrant new community.

Location - Kingsbrook is an exciting new community of homes in Aylesbury. Designed in close consultation with RSPB, this beautiful location will ensure nature has a home too. Acres of meadowland, parks play areas & new schools will be built here making this a popular family destination. Kingsbrook is on the Southeast side of the town centre and offers good access to the A418 towards Milton Keynes and the A41 towards Tring & London. Please note there is an Estate Management charge.

Accommodation - Upon entering, you are welcomed by an entrance hall featuring a useful cloakroom and a storage cupboard. The spacious living room offers an inviting area for relaxation, while the contemporary kitchen/diner is the heart of the home. It boasts an inset electric hob, oven, splashback, cooker hood, integrated dishwasher and integrated fridge/freezer. There is ample room for a dining set, and double doors open directly onto the rear garden, creating a wonderful indoor-outdoor flow. A separate utility room provides space for a washing machine and tumble dryer.

The first-floor landing includes loft access and an airing cupboard, leading to four well proportioned bedrooms. The master bedroom benefits from its own en suite shower room, while the remaining bedrooms are served by the family bathroom.

Outside, the property features an enclosed rear garden with a patio area, lawn and built-in planters. There is also a courtesy door to the garage and side gate access. The garage, equipped with light and power, offers additional storage or workspace. A driveway to the front provides parking for multiple vehicles, with the added benefit of an EV charger.

This fantastic home combines modern features, generous living space, and a prime location within one of the area's most popular new developments-making it an ideal choice for families seeking a ready-to-move-into property.

Property Ref: 34354408

Share:

Similar Properties

Paradise Orchard, Berryfields, Aylesbury

3 Bedroom Detached House | Offers in excess of £490,000

A well presented three bedroom detached family home located in the popular Berryfields development, within walking dista...

Lower Street, Quainton, Buckinghamshire

3 Bedroom Semi-Detached House | Offers in excess of £485,000

A charming three bedroom period property located in the popular village of Quainton, within the catchment area for the h...

Pemberton Close, Elm Farm, Aylesbury

4 Bedroom Semi-Detached House | Offers in excess of £485,000

Situated in the Elm Farm area, this well presented four bedroom semi-detached home offers spacious and versatile living...

Lark Vale, Watermead, Aylesbury

4 Bedroom Link Detached House | £495,000

A stunning FOUR BEDROOM link detached home situated within walking distance of the LAKE AND PIAZZA on the popular WATERM...

Tring Road, Aylesbury, Buckinghamshire

3 Bedroom End of Terrace House | £500,000

A spacious three bedroom end of terrace house situated on Tring Road, ideally located close to the Grammar Schools, town...

Broughton Avenue, Broughton, Aylesbury

4 Bedroom Semi-Detached House | Offers in region of £500,000

A spacious four bedroom semi-detached home located in the Broughton area, ideally positioned close to well-regarded scho...

George David & Co (Aylesbury)

Aylesbury, Buckinghamshire, HP20 1SE

01296 393393

How much is your home worth?

Use our short form to request a valuation of your property.

Request a Valuation

Mortgage Calculator

Amount Borrowed: £
Total Amount Repayable: £
Total Monthly Payment: £
©2026 The Guild of Property Professionals. All rights reserved. Terms and Conditions | Privacy Policy | Cookie Policy | Complaints Policy | Members Login
The Guild of Property Professionals Trading Address: 121 Park Lane, London W1K 7AG. GPEA Limited. Registered in England & Wales.  Company No: 02819824.  Registered Office Address: 2 St. Stephen's Court, St. Stephen's Road, Bournemouth, Dorset, England, BH2 6LA.  VAT Registration No: 576 8795 61
Book a Property Valuation Update Cookies Preferences