Poplar Way, Ickford, Buckinghamshire

£530,000

3 Bedroom Semi-Detached House for sale in Aylesbury

1 3 2
  • PICTURESQUE VILLAGE OF ICKFORD
  • THREE BEDROOM SEMI-DETACHED HOUSE
  • GARAGE AND DRIVEWAY
  • ENCLOSED REAR GARDEN
  • UTILITY AND CLOAKROOM
  • OVERLOOKS FIELDS
  • MAIN BEDROOM WITH EN SUITE
  • SPACIOUS FAMILY HOME

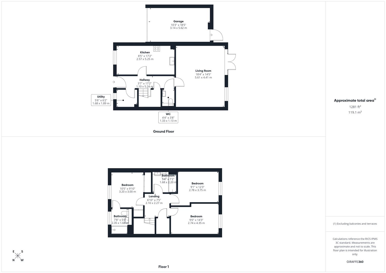
A three bedroom semi detached home located in the picturesque village of Ickford. The property offers spacious and versatile accommodation including a modern kitchen/diner, comfortable living room, utility room and downstairs cloakroom. Upstairs features three double bedrooms, with the master bedroom benefiting from an en suite, alongside a family bathroom. Externally, the property enjoys a private rear garden, as well as a garage and driveway. Ideally positioned for village living with excellent access to Aylesbury and surrounding areas.

Location - Ickford is a highly regarded and picturesque village set on the Buckinghamshire-Oxfordshire border, just a short drive from Aylesbury. Surrounded by open countryside and the River Thame, the village offers a peaceful rural setting while remaining well connected for commuters. Local amenities include a popular village pub, a church, and highly regarded schooling nearby. More extensive shopping, leisure and transport facilities can be found in Aylesbury, with fast rail links to London Marylebone, while easy access to the M40 and A418 provides convenient road connections.

Accommodation - The property is entered via an entrance hall featuring stairs to the first floor and a storage cupboard. To the front of the property is a modern kitchen/diner, fitted with an inset electric hob with splashback and extractor, integrated oven and grill, fridge and dishwasher, and ample space for a dining table. A utility room provides space and plumbing for a washing machine and tumble dryer, complemented by a downstairs cloakroom. To the rear, the light and airy living room offers a comfortable space to relax, with access to the garden.

The first floor landing benefits from loft access and an airing cupboard. There are three double bedrooms, with the main bedroom enjoying the added benefit of an en suite shower room and built in wardrobes. A family bathroom serves the remaining bedrooms.

Externally, the property boasts an enclosed rear garden laid mainly to lawn with a patio area, built-in planters and a garden shed. A courtesy door provides direct access to the garage, which is fitted with light and power. To the front, the property benefits from driveway parking, offering convenient off-road parking.

Property Ref: 6584685_34439617

Share:

Similar Properties

Bedgrove, Aylesbury, Buckinghamshire

4 Bedroom Detached Bungalow | Offers in excess of £525,000

A spacious four bedroom detached bungalow located in the sought after area of Bedgrove, offered to the market with no up...

Bedgrove, Bedgrove, Aylesbury

4 Bedroom Semi-Detached House | £515,000

A three/four bedroom semi-detached home located in the sought after Bedgrove area, offered with no onward chain. Ideally...

Paradise Orchard, Berryfields, Aylesbury

3 Bedroom Detached House | Offers in excess of £500,000

A well presented three bedroom detached family home located in the popular Berryfields development, within walking dista...

Quindell Close, Berryfields, Aylesbury

4 Bedroom Detached House | £535,000

A stunning FOUR BED DETACHED family home situated within walking distance of AYLESBURY PARKWAY STATION on the popular Be...

The Falcon, Watermead, Aylesbury

4 Bedroom Detached House | £549,950

A well presented and spacious four bedroom detached house located in the sought-after Watermead development. The propert...

Quainton Road, North Marston, Buckinghamshire

3 Bedroom Detached House | £550,000

Located in the sought-after village of North Marston, this well presented three bedroom detached house offers spacious a...

George David & Co (Aylesbury)

Aylesbury, Buckinghamshire, HP20 1SE

01296 393393

How much is your home worth?

Use our short form to request a valuation of your property.

Request a Valuation

Mortgage Calculator

Amount Borrowed: £
Total Amount Repayable: £
Total Monthly Payment: £
©2026 The Guild of Property Professionals. All rights reserved. Terms and Conditions | Privacy Policy | Cookie Policy | Complaints Policy | Members Login
The Guild of Property Professionals Trading Address: 121 Park Lane, London W1K 7AG. GPEA Limited. Registered in England & Wales.  Company No: 02819824.  Registered Office Address: 2 St. Stephen's Court, St. Stephen's Road, Bournemouth, Dorset, England, BH2 6LA.  VAT Registration No: 576 8795 61
Book a Property Valuation Update Cookies Preferences