David Close, Stoke Grange, Aylesbury

£495,000

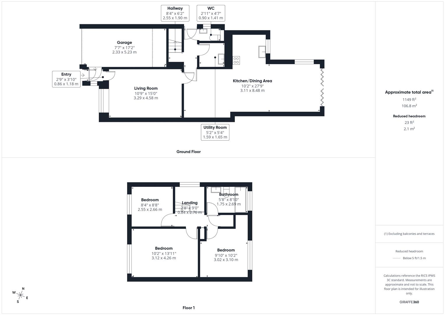
3 Bedroom Semi-Detached House for sale in Aylesbury

2 3 1
  • POPULAR STOKE GRANGE AREA
  • THREE BEDROOM SEMI-DETACHED HOME
  • LARGE KITCHEN/DINING AREA
  • GARAGE AND DRIVEWAY
  • CLOAKROOM AND SEPARATE UTILITY ROOM
  • ENCLOSED REAR GARDEN
  • CLOSE TO STOKE MANDEVILLE HOSPITAL
  • CLOSE TO WELL REGARDED SCHOOLS

Three bedroom semi-detached home in the sought-after Stoke Grange area, ideally located near Stoke Mandeville Hospital, local amenities and well regarded schools. The property offers a comfortable living room, a spacious kitchen/dining area, utility room and cloakroom. Upstairs features three bedrooms and a family bathroom. Outside, there is a private garden, along with a garage and driveway providing off-road parking.

Location - Stoke Grange is a popular development situated on the southside of Aylesbury. Constructed in the early 1980's the estate has easy access towards London/M40 on the A413 and benefits from being within equal distance of Aylesbury and Stoke Mandeville Train Stations offering mainline services into London Marylebone. An ideal location for families the estate is within walking distance from Aylesbury Grammar and High School and is the catchment area for William Harding Combined. Further benefits to this location includes: Small parade of shops - walking distance to the Guttman Gym and Swimming pool - close by is Stoke Mandeville Hospital.

Accommodation - Upon entering the property, you are welcomed into a hallway with internal access to the garage and a door leading into the main living space. The spacious living room offers a comfortable and inviting setting, perfect for relaxing or entertaining guests.

To the rear of the property is a generously sized kitchen/dining area, thoughtfully designed to combine practicality with modern living. The kitchen is fitted with an inset gas hob with cooker hood over, integrated oven and grill, and an integrated dishwasher, along with space for an American-style fridge freezer. A breakfast bar provides additional seating, while there is ample room for a family dining table. Bi-fold doors open out onto the rear garden, allowing plenty of natural light and creating a seamless indoor-outdoor living experience.

An inner hallway leads to the first-floor staircase and provides access to a convenient cloakroom and a separate utility room, which offers space for both a washing machine and tumble dryer.

Upstairs, the first-floor landing includes access to the loft and an airing cupboard. There are three bedrooms, all offering comfortable accommodation. The family bathroom is fitted with a modern suite to serve the household.

Externally, the property boasts an enclosed rear garden featuring a patio area ideal for outdoor dining, built-in planters and a lawned section. A garden shed provides additional storage, and gated side access leads to the front of the property. To the front, there is a driveway offering off-road parking, along with access to the garage.

Property Ref: 34616087

Share:

Similar Properties

Lark Vale, Watermead, Aylesbury

4 Bedroom Link Detached House | £495,000

A stunning FOUR BEDROOM link detached home situated within walking distance of the LAKE AND PIAZZA on the popular WATERM...

Pemberton Close, Elm Farm, Aylesbury

4 Bedroom Semi-Detached House | £495,000

Situated in the Elm Farm area, this well presented four bedroom semi-detached home offers spacious and versatile living...

Paradise Orchard, Berryfields, Aylesbury

3 Bedroom Detached House | Offers in excess of £490,000

A well presented three bedroom detached family home located in the popular Berryfields development, within walking dista...

Barland Way, Berryfields, Aylesbury

6 Bedroom Town House | Offers in excess of £500,000

A spacious six bedroom end-of-terrace home located in the popular Berryfields development, arranged over three floors. T...

Tring Road, Aylesbury, Buckinghamshire

3 Bedroom Semi-Detached House | Offers in excess of £500,000

NO UPPER CHAIN - LARGE MATURE GARDEN APPROXIMATLEY 120 FT - EXTENDED 1930'S THREE BED SEMI - This spacious home is situa...

Broughton Avenue, Broughton, Aylesbury

4 Bedroom Semi-Detached House | Offers in region of £500,000

A spacious four bedroom semi-detached home located in the Broughton area, ideally positioned close to well-regarded scho...

George David & Co (Aylesbury)

Aylesbury, Buckinghamshire, HP20 1SE

01296 393393

How much is your home worth?

Use our short form to request a valuation of your property.

Request a Valuation

Mortgage Calculator

Amount Borrowed: £
Total Amount Repayable: £
Total Monthly Payment: £
©2026 The Guild of Property Professionals. All rights reserved. Terms and Conditions | Privacy Policy | Cookie Policy | Complaints Policy | Members Login
The Guild of Property Professionals Trading Address: 121 Park Lane, London W1K 7AG. GPEA Limited. Registered in England & Wales.  Company No: 02819824.  Registered Office Address: 2 St. Stephen's Court, St. Stephen's Road, Bournemouth, Dorset, England, BH2 6LA.  VAT Registration No: 576 8795 61
Book a Property Valuation Update Cookies Preferences