Westfield Road, Edgbaston, Birmingham, B15

Guide Price
£2,495,000
SSTC
This property listing is now SSTC

7 Bedroom Detached House for sale in Birmingham

4 7 5

Hadleigh Estate Agents are delighted to offer this substantial and elegant detached home for sale. Located on the ever popular Westfield Road the property boasts a generous plot, with spacious living accommodation and picturesque grounds.

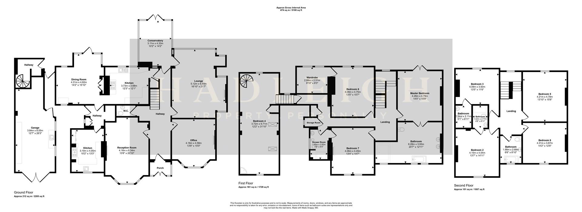
Boasting a large driveway, allowing parking for multiple vehicles. The property is set over three floors this detached home offers multiple reception rooms, two kitchens, spacious garage, conservatory and guest WC. The second floor accommodation offers 3/ 4 bedrooms with the potential for converting into multi purpose rooms, along with shower room. The master bedrooms offers a substantial bathroom. The second floor of the property further benefits from an additional four bedrooms, two complete with ensuite and additional house bathroom. To the side of the property is an extensive garage and to the rear is an extensive and private garden. The property further benefits from having solar panels.

Approach - The property is approached through a large driveway with fore garden. Steps lead up to the front door and inner porch, along with garage and courtyard access.

Entrance Hall - The reception hall, with original Oak flooring, leading to the main rooms and to a stunning staircase with exquisite timber detail leading up to the first floor accommodation.

Lounge - Spacious lounge boasting many traditional features, arched inglenook with working log burner. Picture windows to the rear elevation, wall and ceiling lights complete with ceiling Rose and cornices. Two traditional style radiators and access to the conservatory.

Office - Spacious multi purpose room currently being used as a home office, with feature Oak fireplace and bay window to the front elevation. Ceiling light point with Rose and decorative coving. Traditional style radiator and fitted shutters.

Reception Room - Spacious multi purpose room, bay window to the front elevation. Ceiling light point with Rose and decorative coving. Traditional style radiator and fitted shutters.

Dining Room - Having a large bay with windows and door onto the terrace and dual aspect windows. Tiled flooring, radiator and multiple ceiling lights.

Kitchen - Newly fitted kitchen having a range of base and wall units, tiled flooring and window to the front elevation.

Kitchen - Benefitting from an additional kitchen, with feature AGA. A range of base and wall units, tiled flooring and window to the rear elevation.

Conservatory - Spacious conservatory with quarry tiled flooring and double doors leading to the garden.

Guest Wc - Low level flush WC, hand wash basin, partially tiled walls, ceiling spotlights and traditional style radiator.

Courtyard/ Garage - Door through leading to courtyard, further accessing garage and outhouses. Access via spiral staircase to bedroom four.

Master Bedroom - Extensive master bedroom boasting double doors externally and double doors to the master bathroom. Carpeted flooring, traditional radiator and ceiling light point. Boasting traditional ceiling rose and coving.

Master Ensuite - Spacious and modern ensuite boasting freestanding bath and additional walk in shower. Fitted vanity unit with double sinks, traditional towel radiator and traditional radiator. Ceiling light point, tiled flooring and opaque sash style windows.

Shower Room - Walk in shower cubicle, concealed low level flush, bidet and sink vanity unit. Partially tiled walls, towel radiator and opaque glazed window. Access via landing and bedroom.

Bedroom Seven - Spacious double bedroom with double sash style windows to the front elevation, carpeted flooring, feature fireplace and radiator. Ceiling light point with rose and coving. Further giving access to shower room.

Bedroom Six/ Wardrobe - Spacious double bedroom with double sash style windows to the rear elevation, carpeted flooring and radiator. Ceiling light point with rose and coving. Further giving access to walk in wardrobe. The wardrobe could allow the opportunity to create a further ensuite.

Coach House/ Bedroom Four - Bedroom four is a further multi purpose room, previously used as a gymnasium. With windows at both ends, two roof lights and a spiral staircase in the corner leading down to the coachhouse/garage. There is a shower cubicle in the corner of the room. Heating is provided by wall mounted electric heaters.

Bedroom Two - Spacious double bedroom boasting sash window to the front elevation, carpeted flooring, ceiling light point and traditional radiator. Further giving access to ensuite.

Ensuite - Modern ensuite with floor to ceiling tiles, walk in mains shower cubicle and floating hand wash basin. Concealed low level flush WC, towel radiator and medicine cabinet.

Bedroom Three - Spacious double bedroom boasting sash window to the rear elevation, carpeted flooring, ceiling light point and traditional radiator. Further giving access to ensuite.

Ensuite - Modern ensuite with floor to ceiling tiles, walk in mains shower cubicle and floating hand wash basin. Concealed low level flush WC, towel radiator and ceiling spotlights.

Bedroom Five - Spacious double bedroom with carpeted flooring, radiator, ceiling light point and sash window to the rear elevation.

Bedroom Eight - Spacious double bedroom with carpeted flooring, radiator, ceiling light point and sash window to the front elevation.

Garden - Extensive and established garden, predominantly laid to lawn. Benefitting from being landscaped to provide formal areas and also south facing. Featuring mature shrubs and trees. Paved terraced area and path leading down the garden. Outside further boasts log store, outside WC and store room.

Additional Information - We have been advised the following information, however we advise for you to confirm this with your legal representative as Hadleigh Estate Agents cannot be held accountable.
Tenure - Freehold
EPC - TBC
Council Tax Band - H

Property Ref: 60184_34374844

Share:

Similar Properties

Harborne Road, Edgbaston, Birmingham, B15

4 Bedroom Detached House | Guide Price £2,200,000

Hadleigh is thrilled to present this four-bedroom detached house located in the Edgbaston area of Birmingham. Located on...

St. Marys Road, Harborne, Birmingham, B17

5 Bedroom Detached House | Guide Price £1,750,000

Hadleigh Estate Agents are delighted to bring to market a substantial detached home for sale, on the ever popular St Mar...

Meadow Road, Harborne, Birmingham, B17

7 Bedroom Detached House | Guide Price £1,700,000

Hadleigh Estate Agents are delighted to offer this substantial character property for sale. Sitting within a sizeable pl...

Harborne Park Road, Harborne, Birmingham, B17

Land | £2,500,000

**A UNIQUE DEVELOPMENT OPPORTUNITY IN HARBORNE**Hadleigh Estate Agents are delighted to offer three substantial properti...

Hadleigh Estate Agents (Harborne)

High Street, Harborne, Birmingham, B17 9QG

01214 271 213

How much is your home worth?

Use our short form to request a valuation of your property.

Request a Valuation

Mortgage Calculator

Amount Borrowed: £
Total Amount Repayable: £
Total Monthly Payment: £
©2026 The Guild of Property Professionals. All rights reserved. Terms and Conditions | Privacy Policy | Cookie Policy | Complaints Policy | Members Login
The Guild of Property Professionals Trading Address: 121 Park Lane, London W1K 7AG. GPEA Limited. Registered in England & Wales.  Company No: 02819824.  Registered Office Address: 2 St. Stephen's Court, St. Stephen's Road, Bournemouth, Dorset, England, BH2 6LA.  VAT Registration No: 576 8795 61
Book a Property Valuation Update Cookies Preferences