Bodham near Holt

Guide Price
£375,000
SSTC
This property listing is now SSTC

3 Bedroom Detached Bungalow for sale in Bodham

3 2
  • Spacious dual aspect sitting room
  • Fabulous garden room with lantern skylight
  • Modern fitted kitchen
  • Principal bedroom with en-suite shower room
  • Two further bedrooms
  • Modern bathroom
  • Attached garage and utility room
  • Front garden with parking and West facing rear garden
  • Solar panels with batteries
  • Gas central heating and uPVC double glazing

Location Bodham is a charming North Norfolk village which boasts an excellent public house and restaurant, village hall with numerous regular events and community cafe, a church, allotments and fishing lakes, and regular visits from a mobile library and post office.

The village sits between the bustling seaside town of Sheringham 4.5 miles, and the Georgian market town of Holt 2.3 miles. If you want the beach, Weybourne is closest, 3.5 miles and there are plenty of countryside walks with Holt Country Park and The National Trust land at Sheringham Park on your door step. There is a wide choice of schooling facilities with a primary school in Holt together with a primary, high school in Sheringham. There is also Gresham's pre-prep, prep and senior schools in Holt and Beeston Hall School just outside Sheringham.

Holt and Sheringham offer some of the best shopping facilities to be found in North Norfolk, including a good range of independent specialist shops, cafes, restaurants, theatre and library, health centre, dentist and 18 hole cliff top golf course sand rail service to Norwich. The nearest railway station is in Sheringham and takes approximately one hour to reach Norwich. 

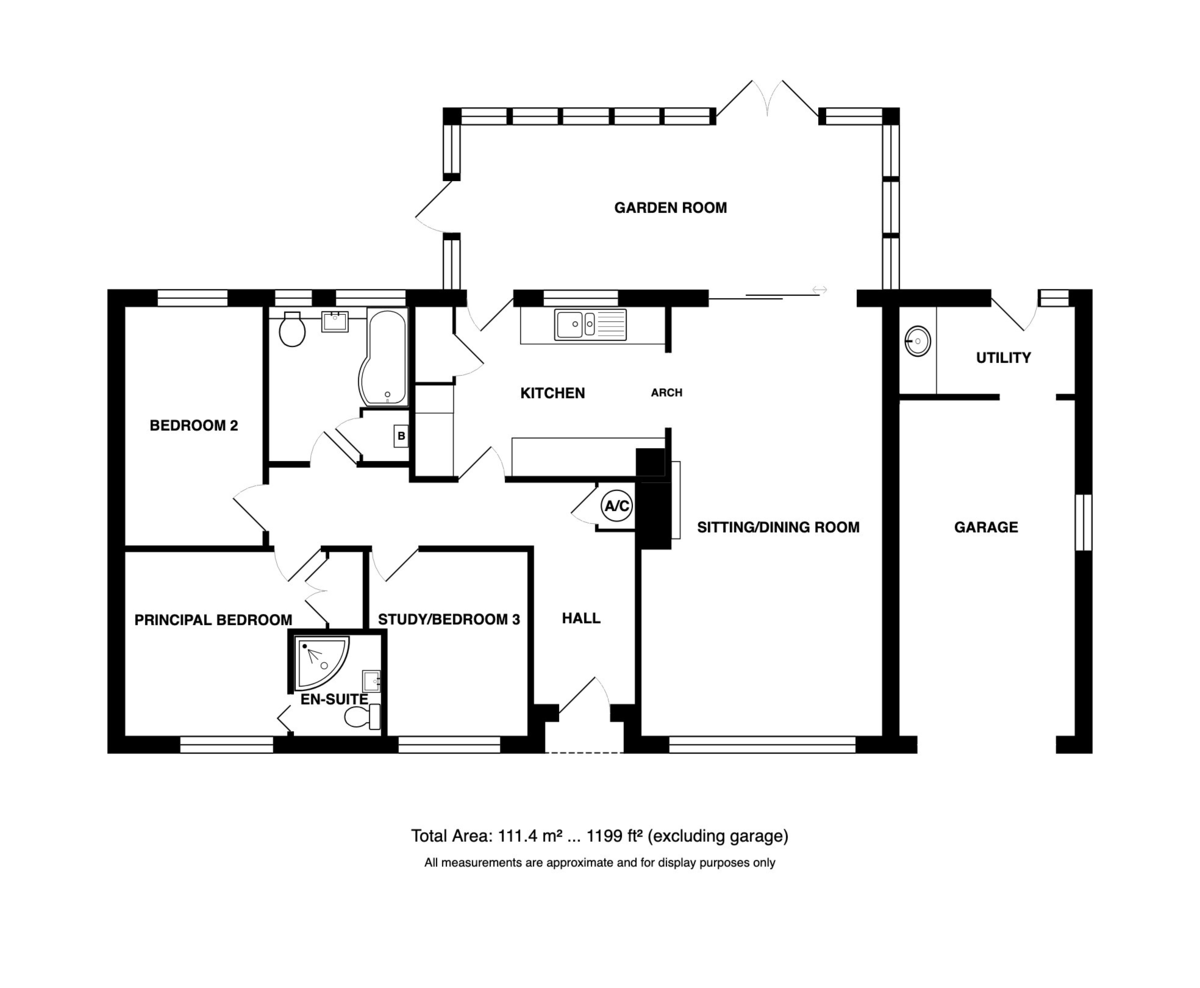
Description This beautifully presented detached bungalow enjoys an enviable position within a charming village located approximately three miles from both Sheringham and Holt. Finished to a high standard throughout, the property offers well‑appointed and spacious accommodation.

A welcoming entrance hall leads through to a generous sitting room, featuring a wood‑burning stove and an archway opening into the modern, fully fitted kitchen. To the rear, a stunning garden room with roof lantern provides an abundance of natural light and direct access to the private rear garden. The principal bedroom benefits from its own en‑suite shower room, complemented by two additional bedrooms offering flexible living or guest accommodation.

The property is approached via a private driveway providing ample off‑road parking and access to the attached garage, complete with a remote‑controlled electric up‑and‑over door. A practical utility room is conveniently situated to the rear of the garage.
The bungalow sits within a good sized plot with front garden and generous, South facing enclosed rear garden including a newly constructed timber veranda. Further advantages include 14 PV solar panels with battery storage, excellent loft insulation, uPVC double glazing, and central heating, ensuring energy efficiency and comfort throughout the year.

The accommodation comprises;
Covered entrance porch with composite front door and fully glazed panel to;
 

Reception Hall Radiator, built in cupboard housing lagged hot water cylinder and shelving, hatch to fully insulated and part boarded roof with drop-down ladder and light, telephone and broadband point. 

Sitting/Dining Room 23' 15" x 12' 4" reducing to 11'4" (7.39m x 3.76m) A generous room with uPVC double glazed window to front aspect, a wood burning stove inset in fireplace on a slate hearth with a marble surround over, two radiators, sliding patio doors to garden room and arch opening to; 

Kitchen 11' 15" x 9' 11" (3.73m x 3.02m) Beautifully fitted with a modern range of base units with working surfaces over, matching wall units, electric single oven, ceramic hob and canopy extractor over, integrated dishwasher and fridge freezer, plinth heater, laminate flooring, recessed LED spotlights, a tiled splashback, shelved pantry, uPVC double glazed window and door to; 

Garden Room 22' 8" x 8' 10" (6.91m x 2.69m) Of part brick/part uPVC double glazed construction with glazed French doors to the rear and a further glazed door to the side, both leading onto the timber veranda, large roof lantern, recessed LED spotlights, wood effect luxury vinyl tile flooring.

 

Principal Bedroom 10' 11" x 9' 10" (3.33m x 3m) Plus built-in wardrobe, radiator, front aspect uPVC double glazed window and bifold door to; 

En-Suite Shower Room 5' 5" x 4' 8" (1.65m x 1.42m) Fitted with a low-level WC, vanity basin with mixer tap and unit beneath, curved corner shower cubicle with shower wall and mixer shower over, recessed LED spotlights, extractor fan, wall mounted Dimplex fan heater, heated towel rail, laminate flooring. 

Bedroom 2 12' 8" x 7' 5" (3.86m x 2.26m) With radiator and rear aspect uPVC double glazed window. 

Bedroom 3/Study 8' 6" reducing to 7'0" x 9' 11" (2.59m x 3.02m) Radiator and uPVC double glazed window to front aspect. 

Family Bathroom 8' 3" x 7' 6" reducing to 5'1" (2.51m x 2.29m) Fitted with a modern back-to-wall suite comprising vanity basin with mixer tap and unit beneath, low level WC with concealed cistern, shower bath with curved screen and mixer shower over, part tiled walls, heated towel rail, recessed LED spotlights, extractor fan, two rear aspect uPVC double glazed windows, vinyl flooring, Dimplex wall mounted heater and built-in linen cupboard with slatted shelves also housing the Worcester gas boiler. 

Outside 9' 5" x 4' 8" (2.87m x 1.42m) The property is approached via a concrete driveway, providing off road parking for two vehicles and leading to the ATTACHED GARAGE, 18' 7" x 9' 5" (5.66m x 2.87m), with up and over door, side facing window, light, power and leading into the UTLITY ROOM 9' 5" x 4' 8" (2.87m x 1.42m), fitted with a worktop with inset, circular sink and tap, electric water heater, space and plumbing for a washing machine and space for a freezer, uPVC double glazed door and window to rear garden.

The front garden is nicely tended, laid to lawn with a curved brick edging and leading onto a paved seating area that extends along the front of the bungalow. Attractive beds planted with a wide variety of shrubs and flowers edge the lawn. There is a dwarf wall to the front and fencing down the side boundary with access to the rear garden at either end via gates.

To the rear, leading out from the garden room is a recently constructed decked seating area edged by wooden railings with steps down to the lawn; this provides a nice sheltered seating areas bathed in sunshine. The garden is enclosed by timber fencing, and a lawn is edged by borders planted with a variety of shrubs and flowers for year-long colour and interest. There is a large timber shed and a log store.

(Please note there is an electric pole at the bottom of the garden, and the electricity board have right of access for maintenance.) 

Services All mains services. 

EPC Rating The Energy Rating for this property is B. A full Energy Performance Certificate available on request. 

Local Authority/Council Tax North Norfolk District Council, Holt Road, Cromer, NR2 79EN.
Tel: 01263513811
Council Tax Band: C

 

Important Agent Note Intending purchasers will be asked to provide original Identity Documentation and Proof of Address before solicitors are instructed. 

We Are Here To Help If your interest in this property is dependent on anything about the property or its surroundings which are not referred to in these sales particulars, please contact us before viewing and we will do our best to answer any questions you may have.

The price quoted for the property does not include Stamp Duty or Title Registration fees, which purchasers will normally pay as part of the conveyancing process. Please ask us if you would like assistance calculating these charges. 

Property Ref: 101301039409

Share:

Similar Properties

The Willows, Norwich

4 Bedroom Town House | Guide Price £375,000

A brilliantly situated four bedroom townhouse by Hopkins & Moore, situated in a woodland development just mile and a hal...

Sheringham

2 Bedroom Detached House | Guide Price £375,000

A charming, un-spoilt, character cottage with generous, well stocked garden, situated on a sought after, private road, w...

Sheringham

4 Bedroom Detached House | Guide Price £360,000

NO CHAIN. A beautifully appointed, detached family home, in a cul-de-sac, conveniently situated within a short stroll of...

West Runton

3 Bedroom Detached House | Offers Over £380,000

A beautifully appointed, three bedroom detached house situated in the heart of this picturesque, sought after coastal vi...

Sheringham

2 Bedroom Detached Bungalow | Guide Price £385,000

Vendor has found and is very motivated to sell - An immaculately presented, extensively refurbished, two bedroom detache...

Cromer

3 Bedroom Detached Bungalow | Guide Price £385,000

An individual, three bedroom detached bungalow offering generous space, standing on a mature, attractive and secluded sp...

Watsons (Sheringham)

Sheringham, Norfolk, NR26 8RG

01263 823201

How much is your home worth?

Use our short form to request a valuation of your property.

Request a Valuation

Mortgage Calculator

Amount Borrowed: £
Total Amount Repayable: £
Total Monthly Payment: £
©2026 The Guild of Property Professionals. All rights reserved. Terms and Conditions | Privacy Policy | Cookie Policy | Complaints Policy | Members Login
The Guild of Property Professionals Trading Address: 121 Park Lane, London W1K 7AG. GPEA Limited. Registered in England & Wales.  Company No: 02819824.  Registered Office Address: 2 St. Stephen's Court, St. Stephen's Road, Bournemouth, Dorset, England, BH2 6LA.  VAT Registration No: 576 8795 61
Book a Property Valuation Update Cookies Preferences