High Street, Boscastle, PL35

£325,000

4 Bedroom Cottage for sale in Boscastle

1 4 2
  • No Onward Chain
  • 4 Bedrooms (One En-Suite)
  • Spacious Living Room
  • Light And Generous Kitchen/Dining Room
  • 2 Bathrooms
  • Pleasant Courtyard To Front
  • Character Features Throughout
  • Grade II Listed

A 4 bedroom 2 bathroom Grade II Listed character property with beautiful courtyard garden to the front.  Freehold.  Council Tax Band C.  EPC rating F.

 

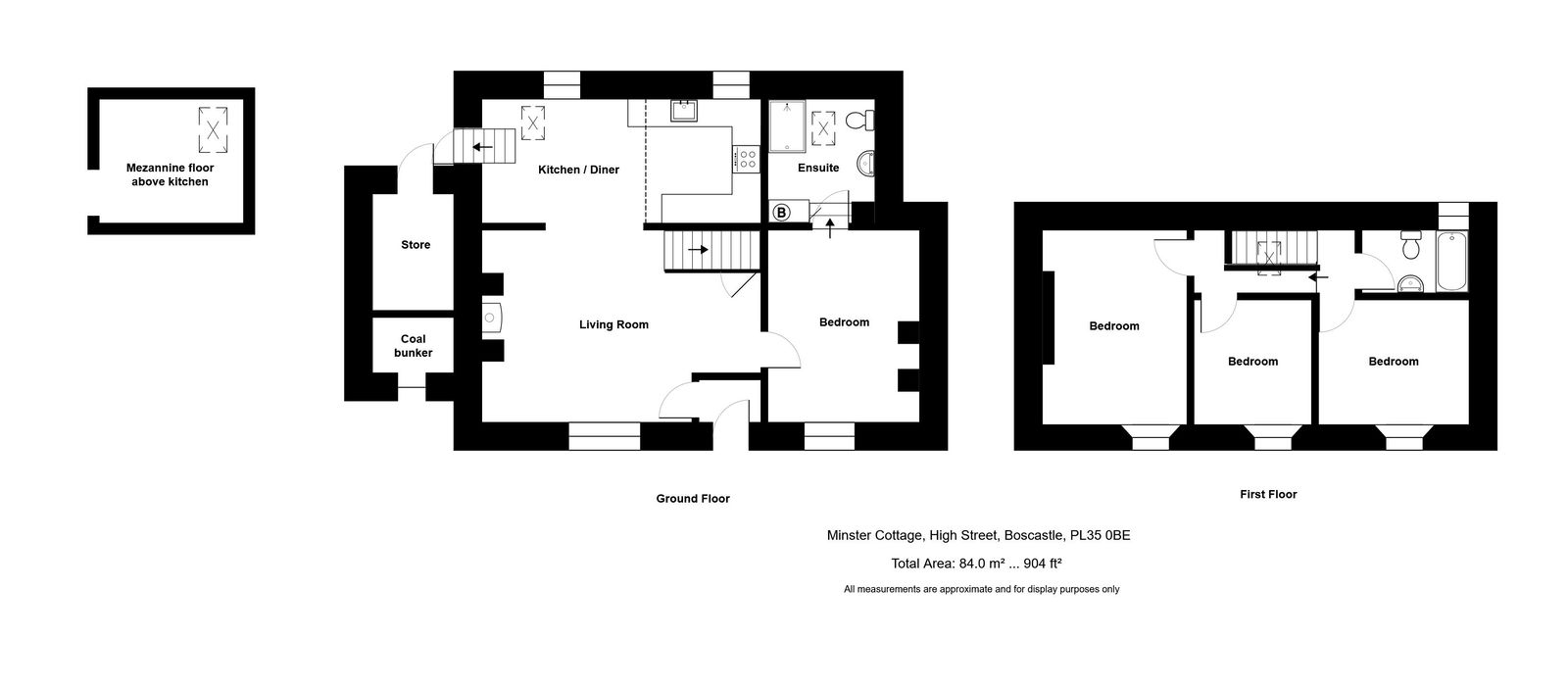
Cole Rayment & White are delighted to present this beautiful Grade II Listed property to the market consisting of 4 bedrooms, 2 bathrooms and spacious living accommodation with feature character throughout including attractive wooden doors, slate flooring downstairs, large fireplace with woodburning stove and character beams.  On the ground floor the entrance leads through to living room opening through to kitchen/dining room.  There are steps up to the back door which leads to an outside store.  Just off the living room is an en-suite bedroom/2nd reception room which can be adapted to ones needs.  On the first floor there are 3 further bedrooms and a family bathroom.  Outside to the front is a beautiful sunny courtyard perfect for entertaining looking out onto a small green and other cottages of similar nature.  The property is within a short stroll to Boscastle's local convenience store and the Napoleon Inn, a popular eatery and public house.  The property is offered for sale with no onward chain and an early viewing appointment is thoroughly recommend to avoid disappointment.

 

The accommodation comprises with all measurements being approximate:-

 

Entrance Door

To 

 

Entrance Porch

Slate floor.  Cloaks hanging space.  Door into

 

Living Room -  5.3 m x 4.0 m

A super size living room with sash window to front, beautiful slate flooring and character beams.  Feature exposed stone fireplace with woodburning stove on slate hearth.  Understairs storage cupboard.  2 electric storage heaters.  Opening through to

 

Kitchen/Dining Room - 5.7 m x 2.8 m

Fitted kitchen with a great range of wall and base cupboards with drawers and solid oak worktops above.  Belfast sink with mixer tap over.  Electric panel heater.  Zanussi oven with 4 ring hob.  Hotpoint dishwasher.  2 opaque windows to rear.  Space and power for fridge/freezer.  Space and plumbing for washing machine.  Beautiful slate flooring.  Steps to side/back stable door.  Character beams.  2 Velux windows with mezzanine storage.  

 

Reception Room 2/Bedroom 4 - 4.1 m x 3.2 m

Sash window to front.  Night storage heater.  Attractive beams.

 

En-Suite

Fitted in suite comprising shower cubicle, low level w.c., wash hand basin, heated towel rail and Velux window.  Storage cupboard housing hot water tank.

 

Stairs to first floor

 

Bedroom 1 - 4.0 m x 2.6 m

Sash window to front.  A good size double bedroom with electric panel heater. 

 

Bedroom 1 - 3.1 m x 2.9 m

Sash window to front.  Again another double bedroom with panel heater. 

 

Bedroom 3 - 2.5 m x 2.4 m

Sash window to front.  Panel heater.

 

Bathroom

Tiled suite with panelled bath and shower fitting.  Heated towel rail.  Low level w.c.  Wash hand basin.  Window to rear.  

 

Landing

Velux window.  Electric storage heater.

 

Outside

Attractive garden to front with sunny aspect patio and a good range of shrubs.  There is a wall to the front and an area laid to lawn.  From the back/side door there is an outside store and access onto the road.

 

Services

Mains electric, water and drainage are connected to the property.

 

What3Words:  ///hikes.sleeper.rejoins

 

Please contact our Camelford Office for further details.

Important Information

  • This is a Freehold property.
  • This Council Tax band for this property is: C

Property Ref: 807805

Share:

Similar Properties

Fore Street, St Teath, PL30

3 Bedroom Semi-Detached House | £325,000

A picturesque 3 bedroom 2 reception room character cottage with private gardens and double garage offered for sale with...

Talmena Avenue, Wadebridge PL27

3 Bedroom Detached House | £325,000

A very well presented detached 3 bedroom modern house with garage, parking and fully enclosed private rear garden.  Free...

Town Quay, Wadebridge, PL27 7AU

2 Bedroom Apartment | £325,000

A spacious 2 double bedroom, one en suite second floor apartment within an easy level stroll of Wadebridge town centre. ...

Shilla Park, Helstone PL32

3 Bedroom Bungalow | £329,000

Enjoying a pleasant location with lovely countryside views to the rear is this detached 3 bedroom bungalow with double g...

New Park Road, Wadebridge PL27

2 Bedroom Bungalow | £330,000

An individual detached 2 double bedroom bungalow with good size driveway, integral garage and very pleasant mature garde...

Westcott Meadow, Wadebridge, PL27

2 Bedroom Bungalow | Guide Price £330,000

A fantastic opportunity to purchase this link detached (by garage) 2 bedroom bungalow with fully secured private rear ga...

Cole Rayment & White (Wadebridge)

Wadebridge, Cornwall, PL27 7DG

01208 813595

How much is your home worth?

Use our short form to request a valuation of your property.

Request a Valuation

Mortgage Calculator

Amount Borrowed: £
Total Amount Repayable: £
Total Monthly Payment: £
©2026 The Guild of Property Professionals. All rights reserved. Terms and Conditions | Privacy Policy | Cookie Policy | Complaints Policy | Members Login
The Guild of Property Professionals Trading Address: 121 Park Lane, London W1K 7AG. GPEA Limited. Registered in England & Wales.  Company No: 02819824.  Registered Office Address: 2 St. Stephen's Court, St. Stephen's Road, Bournemouth, Dorset, England, BH2 6LA.  VAT Registration No: 576 8795 61
Book a Property Valuation Update Cookies Preferences