Blackley Lane, Black Notley, Braintree

£400,000
SSTC
This property listing is now SSTC

3 Bedroom Semi-Detached House for sale in Braintree

2 3 1
  • Three Bedroom Semi-Detached Family Home
  • Generous Rear Garden
  • Ample Driveway Parking
  • Views Over Farmland
  • Fantastic Potential To Extend (STP)
  • Lounge With Wood Burning Stove
  • Kitchen/Dining Room
  • Utility/Cloakroom
  • Entrance Hall
  • Family Bathroom

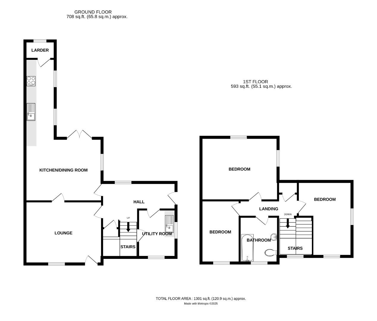
***No Onward Chain*** Nestled on a quiet country lane and enjoying beautiful views over open farmland, this spacious three-bedroom semi-detached family home offers generous living space, ample driveway parking and a large rear garden.

The ground floor features a welcoming lounge, a bright kitchen/dining room, a useful utility room, a cloakroom and a walk-in pantry. Upstairs, there are three well-proportioned bedrooms and a modern family bathroom.

Perfect for those seeking a peaceful rural setting with convenient access to local amenities, this charming home is ready to move into and offers fantastic potential to extend subject to planning permission.

Entrance Hall - Power points, door to.

Inner Hallway - UPVC double glazed window to rear aspect, radiator, power points, stairs rising to the first floor landing, doors to.

Utility Room/Cloakroom - 2.81 x 2.16 (9'2" x 7'1") - UPVC double glazed windows to multiple aspects, base level units with inset wink with drainer unit, W.C, floor mounted oil boiler, extractor fan, part tiled walls.

Lounge - 4.74 x 3.7 (15'6" x 12'1") - UPVC double glazed window to front aspect, feature fireplace with inset wood burning stove, radiator, power points, door to.

Dining Area - 4.75 x 3.75 (15'7" x 12'3") - UPVC double glazed French doors leading to the rear garden, tiled flooring, power points, opening to.

Kitchen - 4.97 x 1.86 (16'3" x 6'1") - Two UPVC double glazed windows to side aspect, base and eye level units with solid Oak working surface over, inset 1 1/2 bowl sink with drainer unit, freestanding cooker with extractor over, space for fridge/freezer, space for dishwasher, radiator, power points, part ti8led walls, tiled flooring, door to pantry with UPVC double glazed window to rear aspect.

First Floor Landing - Radiator, power points, doors to.

Principal Bedroom - 4.39 x 3.67 (14'4" x 12'0") - UPVC double glazed window to rear aspect, feature cast iron fireplace with inset wood burning stove, built-in wardrobe, radiator, power points.

Bedroom Two - 4.51 x 3.15 (14'9" x 10'4") - UPVC double glazed windows to multiple aspects, radiator, power points.

Bedroom Three - 3.68 x 2.31 (12'0" x 7'6") - UPVC double glazed window to front aspect, Victorian style fireplace, radiator, power points.

Family Bathroom - UPVC double glazed opaque window to front aspect, enclosed bath with mixer taps, separate shower over, W.C, wash hand basin with pedestal, radiator, inset spotlights, extractor fan.

Garden - To the rear of the property is a patio area leading to the remainder lawn with a shed to the foot of the garden. Side access is granted via a timber gate leading to the shingle driveway. The garden backs and sides onto farmland.

Driveway Parking - To the front and side of the property is a shingle driveway providing parking for several vehicles.

Property Ref: 879665_34300979

Share:

Similar Properties

Bardfield Saling, Braintree, Essex

3 Bedroom Semi-Detached House | Offers Over £400,000

***NO ONWARD CHAIN***This refurbished three bedroom semi-detached family home boasts approximately a fifth of an acre pl...

Buckthorn Road, Dunmow

3 Bedroom Terraced House | Offers Over £400,000

Set within the award-winning Woodlands Park development in the sought-after market town of Great Dunmow, this immaculate...

Almond Road, Dunmow

3 Bedroom End of Terrace House | Offers Over £400,000

Located on the award winning "Woodlands Park" development is this spacious three double bedroom end of terrace town hous...

Rayfield Close, Barnston, DUNMOW

3 Bedroom Semi-Detached House | £415,000

Located at the end of a quiet close is this immaculate three bedroom semi-detached family home boasting a modern open pl...

Deer Park View, Great Bardfield, Braintree, Essex

3 Bedroom Semi-Detached House | Offers Over £425,000

Located on a desirable small development in the highly sought after village 'Great Bardfield' is this spacious three bed...

Brewers End, Takeley, Bishop's Stortford, Essex

4 Bedroom Townhouse | Offers Over £425,000

Daniel Brewer are pleased to market this spacious four double bedroom townhouse located on a desirable development a sto...

Daniel Brewer Estate Agents (Great Dunmow)

51 High Street, Great Dunmow, Essex, CM6 1AE

01371 856 585

How much is your home worth?

Use our short form to request a valuation of your property.

Request a Valuation

Mortgage Calculator

Amount Borrowed: £
Total Amount Repayable: £
Total Monthly Payment: £
©2026 The Guild of Property Professionals. All rights reserved. Terms and Conditions | Privacy Policy | Cookie Policy | Complaints Policy | Members Login
The Guild of Property Professionals Trading Address: 121 Park Lane, London W1K 7AG. GPEA Limited. Registered in England & Wales.  Company No: 02819824.  Registered Office Address: 2 St. Stephen's Court, St. Stephen's Road, Bournemouth, Dorset, England, BH2 6LA.  VAT Registration No: 576 8795 61
Book a Property Valuation Update Cookies Preferences